Prywatne
Cena za m²: 12162.16 zł/m²
Poziom: 3
Umeblowane: Tak
Rynek: Wtórny
Rodzaj zabudowy: Apartamentowiec
Powierzchnia: 74 m²
Liczba pokoi: 3 pokoje
Opis
W cenie 900 tys. PLN otrzymujesz:
* częściowo umeblowane 74 m²:
3 pokoje (parkiet dębowy olejowany)
kuchnia
łazienka z wc
osobne wc
2 duże balkony
* garaż
* komórka piwniczna
* winda od poziomu garażu
* widok na zieleń
* blisko Galeria Północna
* przystanek autobusowy pod osiedlem.
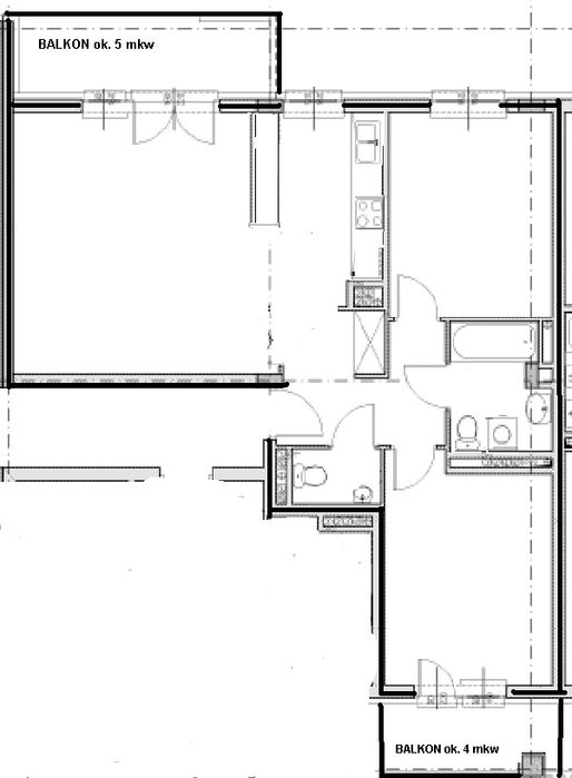
Sprzedamy bezpośrednio 3-pokojowe mieszkanie o powierzchni 74 mkw przy ul. Pomorskiej (Białołęka, Tarchomin).
Układ:
* salon ok. 24 mkw z widnym aneksem kuchennym ok. 9 mkw
* 2 oddzielne, nieprzechodnie sypialnie po ok. 13 mkw każde
* łazienka z wc 4,5 mkw
* oddzielne wc (może służyć jako pralnia/pom. gospodarcze) prawie 2 mkw
* 2 balkony na dwie różne strony mieszkania, 4-5 mkw każde
* świadectwo energetyczne
dodatkowo w cenie:
* miejsce postojowe w garażu
* komórka piwniczna wprost sąsiadująca z miejscem postojowym
* winda od poziomu garażu
* osiedle kameralne strzeżone.
Mieszkanie jest jasne, dwustronne (południowy wschód – północny zachód). Nie wychodzi na żadną ulicę - jest cisza i spokój.
Duży atut: widok na zieleń, korony drzew od strony salonu (bez bloków na wprost), z drugiej strony widok na podwórko.
Budynek: 2007 r., 3 piętro (ostatnie), winda od poziomu garaży.
Forma własności: pełna własność, KW.
Czynsz: ok. 1200 zł.
Cena: 900 000 zł.
W pobliżu:
piękna okolica, Galeria Północna, sklepy, przystanek autobusowy tuż przed osiedlem - dobry dojazd do metra czy tramwaju.
Zapraszamy do kontaktu i na prezentację.
* częściowo umeblowane 74 m²:
3 pokoje (parkiet dębowy olejowany)
kuchnia
łazienka z wc
osobne wc
2 duże balkony
* garaż
* komórka piwniczna
* winda od poziomu garażu
* widok na zieleń
* blisko Galeria Północna
* przystanek autobusowy pod osiedlem.
Sprzedamy bezpośrednio 3-pokojowe mieszkanie o powierzchni 74 mkw przy ul. Pomorskiej (Białołęka, Tarchomin).
Układ:
* salon ok. 24 mkw z widnym aneksem kuchennym ok. 9 mkw
* 2 oddzielne, nieprzechodnie sypialnie po ok. 13 mkw każde
* łazienka z wc 4,5 mkw
* oddzielne wc (może służyć jako pralnia/pom. gospodarcze) prawie 2 mkw
* 2 balkony na dwie różne strony mieszkania, 4-5 mkw każde
* świadectwo energetyczne
dodatkowo w cenie:
* miejsce postojowe w garażu
* komórka piwniczna wprost sąsiadująca z miejscem postojowym
* winda od poziomu garażu
* osiedle kameralne strzeżone.
Mieszkanie jest jasne, dwustronne (południowy wschód – północny zachód). Nie wychodzi na żadną ulicę - jest cisza i spokój.
Duży atut: widok na zieleń, korony drzew od strony salonu (bez bloków na wprost), z drugiej strony widok na podwórko.
Budynek: 2007 r., 3 piętro (ostatnie), winda od poziomu garaży.
Forma własności: pełna własność, KW.
Czynsz: ok. 1200 zł.
Cena: 900 000 zł.
W pobliżu:
piękna okolica, Galeria Północna, sklepy, przystanek autobusowy tuż przed osiedlem - dobry dojazd do metra czy tramwaju.
Zapraszamy do kontaktu i na prezentację.
ID: 1054624883
xxx xxx xxx
Dodane 11 lutego 2026
Mieszkanie piwnica garaż
900 000 zł
do negocjacji
Lokalizacja
Warszawa, Białołęka
Mazowieckie