Firmowe
Cena za m²: 10000 zł/m²
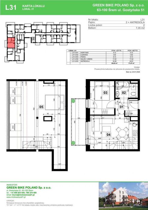
Poziom: 2
Umeblowane: Nie
Rynek: Pierwotny
Rodzaj zabudowy: Apartamentowiec
Powierzchnia: 65,65 m²
Liczba pokoi: 3 pokoje
Opis
MICKIEWICZA 21 RESIDENCE - poznaj inwestycję
Mieszkanie L31
-> 2 piętro
-> Antresola
-> 65,65 m2
-> Balkon 7,35 m2
Mickiewicza Residence to unikalna inwestycja, która łączy nowoczesną architekturę z kameralnym charakterem i wysokim standardem wykończenia. Powstające tu 40 mieszkań to propozycja dla osób ceniących wygodę, bezpieczeństwo i doskonałą lokalizację. Inwestycja została zaprojektowana z myślą o rodzinach oraz parach, które poszukują przestrzeni do życia w spokojnym otoczeniu, ale jednocześnie blisko miejskiej infrastruktury i terenów zielonych.
Położona przy ulicy Mickiewicza, inwestycja znajduje się w jednej z najbardziej atrakcyjnych części Śremu – w otoczeniu urokliwej zabudowy, w pobliżu rzeki Warty i miejskich terenów rekreacyjnych. To miejsce zapewniające równowagę między dynamicznym stylem życia a możliwością odpoczynku wśród zieleni. Zamknięty charakter osiedla gwarantuje mieszkańcom poczucie prywatności i bezpieczeństwa, a nowoczesne rozwiązania architektoniczne podkreślają charakter inwestycji.
Przestronne mieszkania o funkcjonalnych układach wyróżniają się dużymi przeszkleniami, które zapewniają doskonałe doświetlenie wnętrz. Każde z nich posiada balkon lub taras, umożliwiając mieszkańcom relaks w otoczeniu zieleni. Starannie zaprojektowane przestrzenie wspólne, elegancka architektura oraz liczne miejsca postojowe, komórki lokatorskie, winda i monitoring tworzą komfortowe warunki do codziennego życia.
Mickiewicza Residence to więcej niż mieszkanie – to przemyślana koncepcja, która łączy jakość, styl i wygodę w wyjątkowej lokalizacji. Nowoczesność spotyka się tu z harmonią natury, tworząc idealne miejsce dla tych, którzy szukają wyjątkowej przestrzeni do życia.
Zapraszamy do kontaktu!
Mieszkanie L31
-> 2 piętro
-> Antresola
-> 65,65 m2
-> Balkon 7,35 m2
Mickiewicza Residence to unikalna inwestycja, która łączy nowoczesną architekturę z kameralnym charakterem i wysokim standardem wykończenia. Powstające tu 40 mieszkań to propozycja dla osób ceniących wygodę, bezpieczeństwo i doskonałą lokalizację. Inwestycja została zaprojektowana z myślą o rodzinach oraz parach, które poszukują przestrzeni do życia w spokojnym otoczeniu, ale jednocześnie blisko miejskiej infrastruktury i terenów zielonych.
Położona przy ulicy Mickiewicza, inwestycja znajduje się w jednej z najbardziej atrakcyjnych części Śremu – w otoczeniu urokliwej zabudowy, w pobliżu rzeki Warty i miejskich terenów rekreacyjnych. To miejsce zapewniające równowagę między dynamicznym stylem życia a możliwością odpoczynku wśród zieleni. Zamknięty charakter osiedla gwarantuje mieszkańcom poczucie prywatności i bezpieczeństwa, a nowoczesne rozwiązania architektoniczne podkreślają charakter inwestycji.
Przestronne mieszkania o funkcjonalnych układach wyróżniają się dużymi przeszkleniami, które zapewniają doskonałe doświetlenie wnętrz. Każde z nich posiada balkon lub taras, umożliwiając mieszkańcom relaks w otoczeniu zieleni. Starannie zaprojektowane przestrzenie wspólne, elegancka architektura oraz liczne miejsca postojowe, komórki lokatorskie, winda i monitoring tworzą komfortowe warunki do codziennego życia.
Mickiewicza Residence to więcej niż mieszkanie – to przemyślana koncepcja, która łączy jakość, styl i wygodę w wyjątkowej lokalizacji. Nowoczesność spotyka się tu z harmonią natury, tworząc idealne miejsce dla tych, którzy szukają wyjątkowej przestrzeni do życia.
Zapraszamy do kontaktu!
ID: 997795408
xxx xxx xxx
Dodane 10 lutego 2026
Mieszkanie na sprzedaż Śrem 65,65 m2 | 3 pokoje | BALKON | CENTRUM
656 500 zł
do negocjacji
Lokalizacja
Śrem
Wielkopolskie