Prywatne
Cena za m²: 4315.48 zł/m²
Poziom: 2
Umeblowane: Tak
Rynek: Wtórny
Rodzaj zabudowy: Kamienica
Powierzchnia: 168 m²
Liczba pokoi: 4 i więcej
Opis
Atrakcyjne i gotowe do zamieszkania, nie wymaga wkładu!
Sprzedam przestronne 'postarystokratyczne' mieszkanie-apartament w sercu Kłodzka, 168m2 przy prestiżowej ulicy Bohaterów Getta. Takich urokliwych mieszkań już nie ma. Najbardziej poszukiwana lokalizacja dla ceniących wygodę i bezpieczeństwo! Jedna z najniższych cen za metr kwadratowy. Rzadka gratka. Zostań posiadaczem nieruchomości w malowniczej Kotlinie Kłodzkiej już dziś! Położone na drugim piętrze kamienicy, w której znajdują się tylko 3 mieszkania i ustanowiona jest wspólnota. Zajmuje całe drugie piętro, okna skierowane na cztery strony świata. Budynek jest przedwojenny, stylowy, klasyczny z elementami dekoracyjnymi. Dach budynku nowy!
Kamienica położona przy jednej z ważnych ulic miasta, a mimo to jest spokojnie i cicho. Wszędzie blisko: sklepy, przedszkole, szkoła, kancelarie, urzędy, rynek, przychodnie i apteki, poczta, paczkomat, basen, restauracje, OSiR, przychodnie, banki, dworzec. Doskonale skomunikowane.
Mieszkanie jest przestronne, przytulne, jasne i ciepłe. Dobre sąsiedztwo.
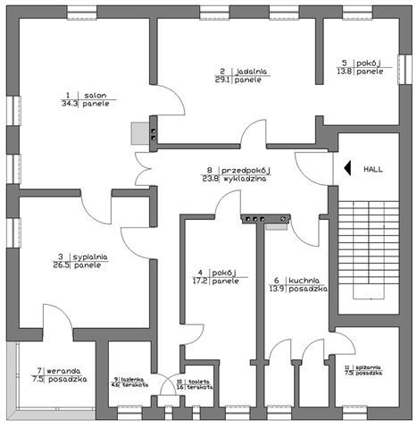
Powierzchnia całkowita to aż 168mkw: mieszkanie główne 128mkw i mieszkanie na wynajem 40mkw.
- wygodne mieszkanie główne to: przestronny salon 35m2 z funkcjonującym kominkiem, dwie duże sypialnie, ergonomiczna i ustawna kuchnia (7mb blatu!) z aneksem jadalnianym, spiżarnia, pomieszczenie gospodarcze, duży przedpokój, słoneczna weranda idealna do odpoczynku, łazienka (wybudowana kabina prysznicowa, z ciepłym kamieniem naturalnym, pomieści się cała rodzina), osobno toaleta.
- w mieszkaniu na wynajem duża kuchnia, pokój dzienny z wydzieloną częścią sypialnianą oraz łazienka z WC pompą.
Największe atuty to:
1. Doskonale ocieplone! Szokująco niski roczny koszt ogrzewania całości, tylko 2000zł (tak, słownie: dwa tysiące złotych rocznie, nie miesięcznie!), można udokumentować. Nie daj się nabrać na gigantyczne koszty grzania! Tu nie siedzisz tylko w kuchni, jak w innych zimnych mieszkaniach.
Dla domu o powierzchni użytkowej 168 m² i rocznym zużyciu gazu odpowiadającym 6061 kWh, wskaźnik zużycia energii to 36 kWh/m²/rok plasuje mieszkanie w klasie energetycznej A.
Oznacza to, że to komfortowe mieszkanie jest energooszczędne, a jego zapotrzebowanie na energię jest stosunkowo niskie w porównaniu do innych mieszkań.
2. Mieszkanie posiada wyodrębniony lokal na wynajem z osobnym wejściem z korytarza. Mieszkanie to stanowi oddzielona jadalnia (2-29,1mkw) oraz pokój (5-13,8mkw) widoczne na zamieszczonym planie. Lokal stałe wynajmowany = stały dochód. Mieszkasz za free.
Jedna KW, ale można wydzielić dwie.
3. Mieszkanie z potencjałem. Można urządzić biuro albo jeszcze podzielić na wynajem. Doskonała inwestycja! Jak każde mieszkanie i to można zaaranżować i zaadoptować wg własnego pomysłu!
4. Żadnych zadłużeń czy ukrytych kosztów.
Teren niezalewowy.
Zabezpieczenie domofonem.
Wysokość mieszkania około 2,5m. Nie ogrzewasz powietrza pod sufitem, jak w wysokich mieszkaniach.
Drzwi w mieszkaniu drewniane, oryginalne z ozdobnym przeszkleniem.
Rozprowadzona jest instalacja rtv. Znakomita większość instalacji wymieniona- w tym elektrycznej. Grzejniki aluminiowe. Okna trzyszybowe (wciąż rzadkość) i pieciokomorowe. Ogrzewanie gazowe oszczędne, oszczędny kocioł dwufunkcyjny Ariston. Kominek z rozprowadzeniem ciepłego powietrza oraz z doprowadzeniem powietrza zewnętrznego do komory spalania (jeszcze cieplej!). Sufity podwieszone i ocieplone 10cm warstwą wełny. Grubo ocieplone ściany zewnętrzne - nawet 40cm wełny i celulozy, więcej niż zalecenia. Dodatkowo ocieplone szczyty ścian. Takich ciepłych mieszkań nie ma!
Sprzedaję z meblami i wyposażeniem (znakomita część pozostanie) w cenie.
Do mieszkania przynależą dwie piwnice i strych. Razem uzyskujesz aż 215mkw!Przy budynku miejsce na samochód.
Opłaty stałe ok 1000zł pomniejszone o czynsz dzierżawny! Łatwo obliczyć.
Kotlina Kłodzka to malowniczy region w południowo-zachodniej Polsce, oferujący wiele atrakcji turystycznych. Oto kilka z nich:
Twierdza Kłodzko
Imponująca forteca z labiryntem podziemnych korytarzy, będąca świadectwem historii militarnej regionu.
Szczeliniec Wielki
Najwyższy szczyt Gór Stołowych (919 m n.p.m.) z unikalnymi formacjami skalnymi i zapierającymi dech w piersiach widokami.
Błędne Skały, rezerwat skalny.
Kopalnia Złota w Złotym Stoku
Historyczna kopalnia oferująca zwiedzanie podziemnych tras turystycznych oraz możliwość płukania złota.
Jaskinia Niedźwiedzia w Kletnie
Najdłuższa jaskinia w Sudetach, znana z bogatej szaty naciekowej i szczątków prehistorycznych zwierząt.
Duszniki-Zdrój
Uzdrowiskowe miasteczko z Muzeum Papiernictwa oraz pięknym Parkiem Zdrojowym.
Uzdrowiska Polanica Zdrój i Kudowa Zdrój.
Liczne szlaki piesze i turystyczne. Singieltraki. Liczne wieże widokowe.
Stacje narciarskie Zieleniec, Czarna Góra, Kamienica. Wiele przejść granicznych z Czechami. Wyjazdówka E67 na południową i zachodnią Europę.
Zawsze można kupić za podobne pieniądze o połowę mniejsze, głośne, zimne, kosztowne mieszkanie na peryferiach. Zawsze można zapłacić 500tys za 50mkw, ale po co? Tu masz mieszkanie większe niż dom za cenę mniejszą niż dom. A komu wciąż się wydaje, że cena jest wysoka, niech przeliczy wchodząc na otodom-kalkulator wyceny nieruchomości. Wyliczona wartość rynkowa (AI, otodom kalkulator wycen) tego mieszkania to 1.100.000zł. Sprawdź sam/a.
Najlepsza okazja w promieniu 100km.
Proszę w pierwszej kolejności o Priv lub dla poważnych ofert tel.
Proszę nie komentować ogłoszenia.
Nie sponsoruję zakupu, ale można negocjować cenę. Zamieszkaj za free, nim zrobią to inni. To koniec żmudnych poszukiwań.
Tylko teraz oszczędzasz dodatkowo 16 tys. zł. - zakup bez pośredników! Umów się już dziś na bezpłatną prezentację
Sprzedam przestronne 'postarystokratyczne' mieszkanie-apartament w sercu Kłodzka, 168m2 przy prestiżowej ulicy Bohaterów Getta. Takich urokliwych mieszkań już nie ma. Najbardziej poszukiwana lokalizacja dla ceniących wygodę i bezpieczeństwo! Jedna z najniższych cen za metr kwadratowy. Rzadka gratka. Zostań posiadaczem nieruchomości w malowniczej Kotlinie Kłodzkiej już dziś! Położone na drugim piętrze kamienicy, w której znajdują się tylko 3 mieszkania i ustanowiona jest wspólnota. Zajmuje całe drugie piętro, okna skierowane na cztery strony świata. Budynek jest przedwojenny, stylowy, klasyczny z elementami dekoracyjnymi. Dach budynku nowy!
Kamienica położona przy jednej z ważnych ulic miasta, a mimo to jest spokojnie i cicho. Wszędzie blisko: sklepy, przedszkole, szkoła, kancelarie, urzędy, rynek, przychodnie i apteki, poczta, paczkomat, basen, restauracje, OSiR, przychodnie, banki, dworzec. Doskonale skomunikowane.
Mieszkanie jest przestronne, przytulne, jasne i ciepłe. Dobre sąsiedztwo.
Powierzchnia całkowita to aż 168mkw: mieszkanie główne 128mkw i mieszkanie na wynajem 40mkw.
- wygodne mieszkanie główne to: przestronny salon 35m2 z funkcjonującym kominkiem, dwie duże sypialnie, ergonomiczna i ustawna kuchnia (7mb blatu!) z aneksem jadalnianym, spiżarnia, pomieszczenie gospodarcze, duży przedpokój, słoneczna weranda idealna do odpoczynku, łazienka (wybudowana kabina prysznicowa, z ciepłym kamieniem naturalnym, pomieści się cała rodzina), osobno toaleta.
- w mieszkaniu na wynajem duża kuchnia, pokój dzienny z wydzieloną częścią sypialnianą oraz łazienka z WC pompą.
Największe atuty to:
1. Doskonale ocieplone! Szokująco niski roczny koszt ogrzewania całości, tylko 2000zł (tak, słownie: dwa tysiące złotych rocznie, nie miesięcznie!), można udokumentować. Nie daj się nabrać na gigantyczne koszty grzania! Tu nie siedzisz tylko w kuchni, jak w innych zimnych mieszkaniach.
Dla domu o powierzchni użytkowej 168 m² i rocznym zużyciu gazu odpowiadającym 6061 kWh, wskaźnik zużycia energii to 36 kWh/m²/rok plasuje mieszkanie w klasie energetycznej A.
Oznacza to, że to komfortowe mieszkanie jest energooszczędne, a jego zapotrzebowanie na energię jest stosunkowo niskie w porównaniu do innych mieszkań.
2. Mieszkanie posiada wyodrębniony lokal na wynajem z osobnym wejściem z korytarza. Mieszkanie to stanowi oddzielona jadalnia (2-29,1mkw) oraz pokój (5-13,8mkw) widoczne na zamieszczonym planie. Lokal stałe wynajmowany = stały dochód. Mieszkasz za free.
Jedna KW, ale można wydzielić dwie.
3. Mieszkanie z potencjałem. Można urządzić biuro albo jeszcze podzielić na wynajem. Doskonała inwestycja! Jak każde mieszkanie i to można zaaranżować i zaadoptować wg własnego pomysłu!
4. Żadnych zadłużeń czy ukrytych kosztów.
Teren niezalewowy.
Zabezpieczenie domofonem.
Wysokość mieszkania około 2,5m. Nie ogrzewasz powietrza pod sufitem, jak w wysokich mieszkaniach.
Drzwi w mieszkaniu drewniane, oryginalne z ozdobnym przeszkleniem.
Rozprowadzona jest instalacja rtv. Znakomita większość instalacji wymieniona- w tym elektrycznej. Grzejniki aluminiowe. Okna trzyszybowe (wciąż rzadkość) i pieciokomorowe. Ogrzewanie gazowe oszczędne, oszczędny kocioł dwufunkcyjny Ariston. Kominek z rozprowadzeniem ciepłego powietrza oraz z doprowadzeniem powietrza zewnętrznego do komory spalania (jeszcze cieplej!). Sufity podwieszone i ocieplone 10cm warstwą wełny. Grubo ocieplone ściany zewnętrzne - nawet 40cm wełny i celulozy, więcej niż zalecenia. Dodatkowo ocieplone szczyty ścian. Takich ciepłych mieszkań nie ma!
Sprzedaję z meblami i wyposażeniem (znakomita część pozostanie) w cenie.
Do mieszkania przynależą dwie piwnice i strych. Razem uzyskujesz aż 215mkw!Przy budynku miejsce na samochód.
Opłaty stałe ok 1000zł pomniejszone o czynsz dzierżawny! Łatwo obliczyć.
Kotlina Kłodzka to malowniczy region w południowo-zachodniej Polsce, oferujący wiele atrakcji turystycznych. Oto kilka z nich:
Twierdza Kłodzko
Imponująca forteca z labiryntem podziemnych korytarzy, będąca świadectwem historii militarnej regionu.
Szczeliniec Wielki
Najwyższy szczyt Gór Stołowych (919 m n.p.m.) z unikalnymi formacjami skalnymi i zapierającymi dech w piersiach widokami.
Błędne Skały, rezerwat skalny.
Kopalnia Złota w Złotym Stoku
Historyczna kopalnia oferująca zwiedzanie podziemnych tras turystycznych oraz możliwość płukania złota.
Jaskinia Niedźwiedzia w Kletnie
Najdłuższa jaskinia w Sudetach, znana z bogatej szaty naciekowej i szczątków prehistorycznych zwierząt.
Duszniki-Zdrój
Uzdrowiskowe miasteczko z Muzeum Papiernictwa oraz pięknym Parkiem Zdrojowym.
Uzdrowiska Polanica Zdrój i Kudowa Zdrój.
Liczne szlaki piesze i turystyczne. Singieltraki. Liczne wieże widokowe.
Stacje narciarskie Zieleniec, Czarna Góra, Kamienica. Wiele przejść granicznych z Czechami. Wyjazdówka E67 na południową i zachodnią Europę.
Zawsze można kupić za podobne pieniądze o połowę mniejsze, głośne, zimne, kosztowne mieszkanie na peryferiach. Zawsze można zapłacić 500tys za 50mkw, ale po co? Tu masz mieszkanie większe niż dom za cenę mniejszą niż dom. A komu wciąż się wydaje, że cena jest wysoka, niech przeliczy wchodząc na otodom-kalkulator wyceny nieruchomości. Wyliczona wartość rynkowa (AI, otodom kalkulator wycen) tego mieszkania to 1.100.000zł. Sprawdź sam/a.
Najlepsza okazja w promieniu 100km.
Proszę w pierwszej kolejności o Priv lub dla poważnych ofert tel.
Proszę nie komentować ogłoszenia.
Nie sponsoruję zakupu, ale można negocjować cenę. Zamieszkaj za free, nim zrobią to inni. To koniec żmudnych poszukiwań.
Tylko teraz oszczędzasz dodatkowo 16 tys. zł. - zakup bez pośredników! Umów się już dziś na bezpłatną prezentację
ID: 988055633
Skontaktuj się
xxx xxx xxx
Dodane 29 listopada 2025
Mieszkanie, Kłodzko. Dochodowe
725 000 zł
do negocjacji
Lokalizacja
Kłodzko
Dolnośląskie