Firmowe
Cena za m²: 7500 zł/m²
Poziom: 1
Umeblowane: Nie
Rynek: Pierwotny
Rodzaj zabudowy: Blok
Powierzchnia: 56,86 m²
Liczba pokoi: 3 pokoje
Opis
O lokalu
Jeżeli myślisz o kupnie mieszkania, to zapraszamy do zapoznania się z naszą ofertą lokalu mieszkalnego bezpośrednio od Dewelopera
Kupując od nas masz pewność, że jesteś pierwszym właścicielem i masz realny wpływ na wykończenie i wyposażenie własnego mieszkania.
Osiedle Błękitne blok C – Jarosław, ul. Konfederacka
Rozpoczęcie budowy nastąpiło w styczniu 2024 roku.
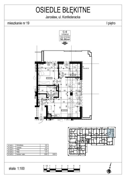
Lokal mieszkalny w stanie deweloperskim M19 usytuowany jest na I piętrze w bloku C, o powierzchni 56,86 m² składa się z:
- 2 pokoi (11,93 m² i 7,77 m²)
- kuchni z salonem ( 26,69 m²)
- łazienki (5,15 m²)
- komunikacji (5,32 m²)
Mieszkanie jest narożne a balkon znajduje się na całej szerokości i długości mieszkania, w kierunku północnym (część sypialniana) i wschodnim (część dzienna). Z każdego pokoju jak i z salonu jest wyjście na balkon.
Do lokalu mieszkalnego można dokupić komórkę lokatorską oraz miejsce postojowe.
Zakończenie budowy planowane jest na koniec marca 2026 roku
O inwestycji
Inwestycja „Osiedle Błękitne” przy ul. Konfederackiej w Jarosławiu to krok w przyszłość. Wysoki standard i jakość wykończenia, dopracowane detale, nowoczesny styl oraz dbałość o każdy szczegół to cechy wyróżniające tę inwestycję.
W planowanym sześciokondygnacyjnym budynku będzie mieścić się 90 lokali mieszkalnych w metrażu od 32 do 77 m2.
Budynek z parkingiem podziemnym (52 miejsc postojowych) będzie wyposażony w windę.
W bliskim sąsiedztwie inwestycji usytuowana jest przychodnia, sklep spożywczy, lokale gastronomiczne, przedszkole i siłownia.
Lokalizacja inwestycji mieści się w atrakcyjnej i spokojnej części miasta z niedalekim dostępem do Parku Miejskiego.
O firmie
MBM-INVEST jest dynamicznie rozwijającą się firmą na rynku budownictwa komercyjnego i mieszkaniowego na terenie województwa podkarpackiego.
Firma MBM-INVEST posiada doświadczenie oraz kapitał finansowy co gwarantuje, iż prowadzone inwestycje są zawsze realizowane terminowo. Działając na rynku już od 2014 roku zakończyliśmy inwestycje takie jak: ”Morelowy Sad”, i „Apartamenty za Parkiem” w Jarosławiu, oraz „Osiedle Panorama” w Przemyślu
Dla poprawy bezpieczeństwa finansowania realizacji i odpowiedniego zabezpieczenia Państwa wkładu finansowego nasze projekty realizujemy w znacznym udziale z własnych środków finansowych.
Nasz zespół złożony z młodej i pełnej entuzjazmu kadry na każdym etapie projektowania, poprzez realizacje i stała opiekę nad klientem, do momentu przeniesienia własności nieruchomości i odbioru kluczy dokłada wszelkich starań byście Państwo dołączając do grona naszych klientów byli w pełni usatysfakcjonowani ze współpracy z MBM-INVEST
Nasza strona: www.mbm-invest.pl
Biuro sprzedaży czynne
od poniedziałku do piątku od godz. 8:00 do 16:00
Jeżeli myślisz o kupnie mieszkania, to zapraszamy do zapoznania się z naszą ofertą lokalu mieszkalnego bezpośrednio od Dewelopera
Kupując od nas masz pewność, że jesteś pierwszym właścicielem i masz realny wpływ na wykończenie i wyposażenie własnego mieszkania.
Osiedle Błękitne blok C – Jarosław, ul. Konfederacka
Rozpoczęcie budowy nastąpiło w styczniu 2024 roku.
Lokal mieszkalny w stanie deweloperskim M19 usytuowany jest na I piętrze w bloku C, o powierzchni 56,86 m² składa się z:
- 2 pokoi (11,93 m² i 7,77 m²)
- kuchni z salonem ( 26,69 m²)
- łazienki (5,15 m²)
- komunikacji (5,32 m²)
Mieszkanie jest narożne a balkon znajduje się na całej szerokości i długości mieszkania, w kierunku północnym (część sypialniana) i wschodnim (część dzienna). Z każdego pokoju jak i z salonu jest wyjście na balkon.
Do lokalu mieszkalnego można dokupić komórkę lokatorską oraz miejsce postojowe.
Zakończenie budowy planowane jest na koniec marca 2026 roku
O inwestycji
Inwestycja „Osiedle Błękitne” przy ul. Konfederackiej w Jarosławiu to krok w przyszłość. Wysoki standard i jakość wykończenia, dopracowane detale, nowoczesny styl oraz dbałość o każdy szczegół to cechy wyróżniające tę inwestycję.
W planowanym sześciokondygnacyjnym budynku będzie mieścić się 90 lokali mieszkalnych w metrażu od 32 do 77 m2.
Budynek z parkingiem podziemnym (52 miejsc postojowych) będzie wyposażony w windę.
W bliskim sąsiedztwie inwestycji usytuowana jest przychodnia, sklep spożywczy, lokale gastronomiczne, przedszkole i siłownia.
Lokalizacja inwestycji mieści się w atrakcyjnej i spokojnej części miasta z niedalekim dostępem do Parku Miejskiego.
O firmie
MBM-INVEST jest dynamicznie rozwijającą się firmą na rynku budownictwa komercyjnego i mieszkaniowego na terenie województwa podkarpackiego.
Firma MBM-INVEST posiada doświadczenie oraz kapitał finansowy co gwarantuje, iż prowadzone inwestycje są zawsze realizowane terminowo. Działając na rynku już od 2014 roku zakończyliśmy inwestycje takie jak: ”Morelowy Sad”, i „Apartamenty za Parkiem” w Jarosławiu, oraz „Osiedle Panorama” w Przemyślu
Dla poprawy bezpieczeństwa finansowania realizacji i odpowiedniego zabezpieczenia Państwa wkładu finansowego nasze projekty realizujemy w znacznym udziale z własnych środków finansowych.
Nasz zespół złożony z młodej i pełnej entuzjazmu kadry na każdym etapie projektowania, poprzez realizacje i stała opiekę nad klientem, do momentu przeniesienia własności nieruchomości i odbioru kluczy dokłada wszelkich starań byście Państwo dołączając do grona naszych klientów byli w pełni usatysfakcjonowani ze współpracy z MBM-INVEST
Nasza strona: www.mbm-invest.pl
Biuro sprzedaży czynne
od poniedziałku do piątku od godz. 8:00 do 16:00
ID: 1027136529
xxx xxx xxx
Dodane 21 października 2025
Mieszkanie 56,86 m2 oś. Błękitne blok C M19 stan deweloperski
426 450 zł
Lokalizacja
Jarosław
Podkarpackie