Prywatne
Zwierzęta: Nie
Winda: Nie
Parking: brak
Poziom: 1
Umeblowane: Tak
Rodzaj zabudowy: Kamienica
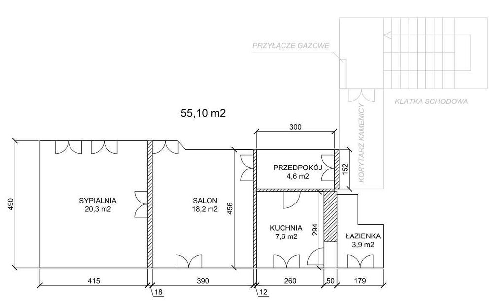
Powierzchnia: 55 m²
Liczba pokoi: 2 pokoje
Czynsz (dodatkowo): 380 zł
Opis
Do wynajęcia bezpośrednio od właściciela w pełni umeblowane i wyposażone dwupokojowe mieszkanie o powierzchni 55 m2, zlokalizowane na ul. Starowiślnej w Krakowie.
Mieszkanie znajduje się w odremontowanej w 2020 roku kamienicy, oddzielonej od ruchliwej ulicy głębokim, zielonym podwórzem.
MIESZKANIE:
Sypialnia (20m2)
Pokój dzienny (18m2)
Łazienka (4m2)
Kuchnia (8m2)
Przedpokój (5m2)
WYPOSAŻENIE:
Nowa instalacja gazowa
Wymienione okna
AGD (pralka, lodówka, zmywarka, mikrofala)
W łazience kabina prysznicowa oraz wanna
LOKALIZACJA (czas pieszo):
Przystanek MPK (Starowiślna/Miodowa) - 3 min.
Plac Nowy - 5 min.
Hala Targowa - 5 min.
Rynek Główny - 10 min.
Bulwary Wiślane - 10 min.
Dworzec Główny - 15 min.
Galeria Kazimierz - 15 min.
Kładka o. Bernatka - 15 min.
OPŁATY:
Cena najmu: 2800 zł
Czynsz+internet: 430 zł
Media (prąd, gaz, woda) - wg zużycia (ok. 300 zł/mc)
DOSTĘPNOŚĆ DO OGLĄDANIA I WYNAJĘCIA:
Od ok. 15.10.2025
Preferowany najem długoterminowy.
Mieszkanie znajduje się w odremontowanej w 2020 roku kamienicy, oddzielonej od ruchliwej ulicy głębokim, zielonym podwórzem.
MIESZKANIE:
Sypialnia (20m2)
Pokój dzienny (18m2)
Łazienka (4m2)
Kuchnia (8m2)
Przedpokój (5m2)
WYPOSAŻENIE:
Nowa instalacja gazowa
Wymienione okna
AGD (pralka, lodówka, zmywarka, mikrofala)
W łazience kabina prysznicowa oraz wanna
LOKALIZACJA (czas pieszo):
Przystanek MPK (Starowiślna/Miodowa) - 3 min.
Plac Nowy - 5 min.
Hala Targowa - 5 min.
Rynek Główny - 10 min.
Bulwary Wiślane - 10 min.
Dworzec Główny - 15 min.
Galeria Kazimierz - 15 min.
Kładka o. Bernatka - 15 min.
OPŁATY:
Cena najmu: 2800 zł
Czynsz+internet: 430 zł
Media (prąd, gaz, woda) - wg zużycia (ok. 300 zł/mc)
DOSTĘPNOŚĆ DO OGLĄDANIA I WYNAJĘCIA:
Od ok. 15.10.2025
Preferowany najem długoterminowy.
ID: 1028781345
xxx xxx xxx
Dodane 26 września 2025
Mieszkanie 55m2 na wynajem / ul. Starowiślna, Kraków
2 800 zł
Lokalizacja
Kraków, Stare Miasto
Małopolskie