Prywatne
Cena za m²: 5972.22 zł/m²
Poziom: 4
Umeblowane: Tak
Rynek: Wtórny
Rodzaj zabudowy: Blok
Powierzchnia: 36 m²
Liczba pokoi: 2 pokoje
Opis
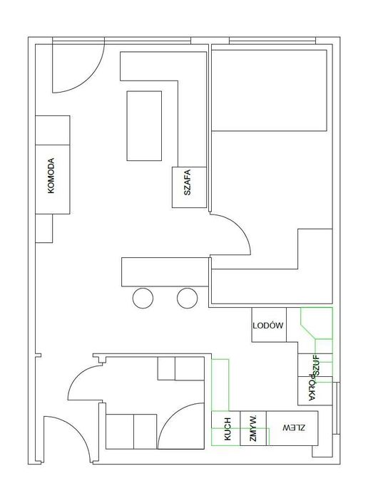
Mieszkanie 2-pokojowe, usytuowane na IV piętrze w bloku przy ul. Bohaterów Września 4a - bez pośrednika.
W skład mieszkania wchodzą: przedpokój, kuchnia, łazienka oraz 2 pokoje, w tym salon z balkonem. Całkowita powierzchnia mieszkania – 35,90 m2 + piwnica 3,08 m2.
Opłaty do spółdzielnia „Transportowiec” – ok. 540 zł / miesiąc.
Stan mieszkania – ostatni remont kapitalny wykonano ok. 10 lat temu, w tym.:
- wymieniono instalację wod-kan,
- wymieniono instalację elektryczną,
- wymieniono drzwi balkonowe,
- wykonano nowe gładzie,
- okna nowego typu,
- ogrzewanie miejskie - grzejniki bez podzielników ciepła - płatność w ryczałcie bez dodatkowych opłat,
- podgrzewanie wody – własny piec gazowy (jednofunkcyjny),
- ściany pomiędzy pokojami i kuchnią – działowe – możliwość usunięcia / przeniesienia bez pozwoleń budowlanych.
Mieszkanie wymaga odświeżenia.
Parking - darmowy na terenie spółdzielni, bezpośrednio przy bloku (są dostępne miejsca),
Lokalizacja:
- mieszkanie ciche - zlokalizowane w głębi terenu, tj. w oddaleniu od ulic,
- wystawa okien pokojowych i balkonu – na zachód,
- w promieniu dojścia (do 500 m) znajdują się: lokalne centrum usługowe (Biedronka, Lidl, Netto i wiele innych drobnych punktów usługowych), szkoła podstawowa, park wodny, centrum kultury z kinem, JuraPark z restauracją oraz dworzec PKP, który zapewnia dogodne połączenia z Bydgoszczą i Toruniem (ok. 20 min. podróży pociągiem).
Zapraszam
Łukasz Majewski
Kom. 79*******42
W skład mieszkania wchodzą: przedpokój, kuchnia, łazienka oraz 2 pokoje, w tym salon z balkonem. Całkowita powierzchnia mieszkania – 35,90 m2 + piwnica 3,08 m2.
Opłaty do spółdzielnia „Transportowiec” – ok. 540 zł / miesiąc.
Stan mieszkania – ostatni remont kapitalny wykonano ok. 10 lat temu, w tym.:
- wymieniono instalację wod-kan,
- wymieniono instalację elektryczną,
- wymieniono drzwi balkonowe,
- wykonano nowe gładzie,
- okna nowego typu,
- ogrzewanie miejskie - grzejniki bez podzielników ciepła - płatność w ryczałcie bez dodatkowych opłat,
- podgrzewanie wody – własny piec gazowy (jednofunkcyjny),
- ściany pomiędzy pokojami i kuchnią – działowe – możliwość usunięcia / przeniesienia bez pozwoleń budowlanych.
Mieszkanie wymaga odświeżenia.
Parking - darmowy na terenie spółdzielni, bezpośrednio przy bloku (są dostępne miejsca),
Lokalizacja:
- mieszkanie ciche - zlokalizowane w głębi terenu, tj. w oddaleniu od ulic,
- wystawa okien pokojowych i balkonu – na zachód,
- w promieniu dojścia (do 500 m) znajdują się: lokalne centrum usługowe (Biedronka, Lidl, Netto i wiele innych drobnych punktów usługowych), szkoła podstawowa, park wodny, centrum kultury z kinem, JuraPark z restauracją oraz dworzec PKP, który zapewnia dogodne połączenia z Bydgoszczą i Toruniem (ok. 20 min. podróży pociągiem).
Zapraszam
Łukasz Majewski
Kom. 79*******42
ID: 1028091991
xxx xxx xxx
Dodane 29 września 2025
Mieszkanie 2-pokojowe, IV piętro, przy ul. Bohaterów Września 4a
215 000 zł
do negocjacji
Lokalizacja
Solec Kujawski
Kujawsko-pomorskie