Firmowe
Poziom: Parter
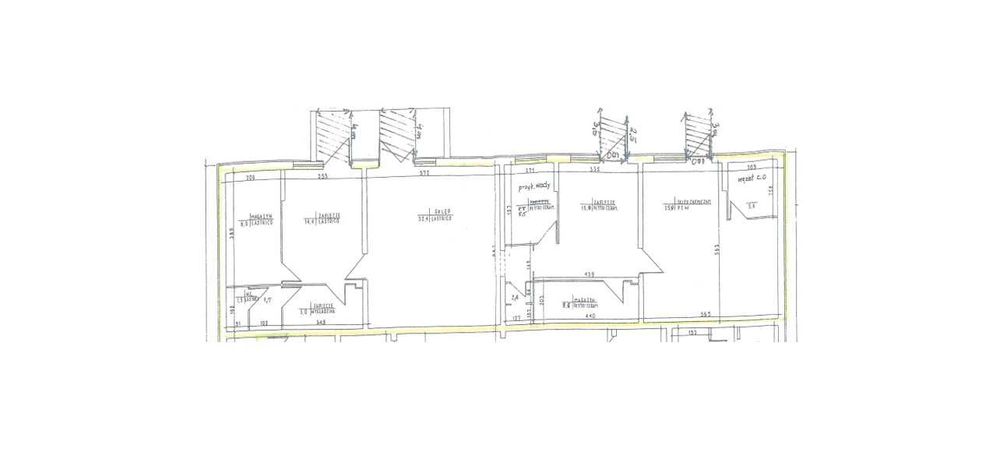
Powierzchnia: 114,35 m²
Przeznaczenie lokalu: Usługowe
Opis
Zapraszamy do wynajęcia lokalu użytkowego zlokalizowanego w budynku mieszkalnym przy ul. Panewnickiej 341-341A. Lokal znajduje się w centrum dużego osiedla, które cały czas się rozbudowuje. Na osiedlu funkcjonuje sklep spożywczy, salon fryzjerski, przedszkole, plac zabaw oraz plenerowa siłownia.
Lokal składa się z sali sprzedaży z wydzielonym pomieszczeniem sanitarnym oraz zaplecza socjalnego . Do lokalu jest łatwy dojazd zarówno samochodem jak i komunikacją miejską. Wokół lokalu znajdują się miejsca parkingowe.
Istnieje możliwość podziału lokalu
Media: energia elektryczna, woda, CO
Cena nie obejmuje zaliczki na media i podatku vat
Lokal składa się z sali sprzedaży z wydzielonym pomieszczeniem sanitarnym oraz zaplecza socjalnego . Do lokalu jest łatwy dojazd zarówno samochodem jak i komunikacją miejską. Wokół lokalu znajdują się miejsca parkingowe.
Istnieje możliwość podziału lokalu
Media: energia elektryczna, woda, CO
Cena nie obejmuje zaliczki na media i podatku vat
ID: 1005351200
Dodane 01 października 2025
Lokal użytkowy Panewnicka 341-341A pow. 114,35 m2
4 002,25 zł
do negocjacji
Lokalizacja
Katowice, Ligota-Panewniki
Śląskie