Prywatne
Poziom: Parter
Powierzchnia: 65 m²
Przeznaczenie lokalu: Usługowe
Opis
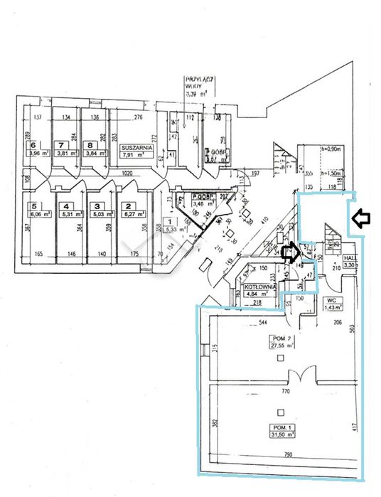
Kraków – ul. Barska – lokal użytkowy – 65 m2
Nieruchomość: Proponujemy Państwu lokal na cele usługowe. Lokal położony w suterenie trzypiętrowej kamienicy na rogu ulic Barskiej i Madalińskiego, o powierzchni użytkowej 65m2, składający się z 2 osobnych pomieszczeń, hallu i WC. Wejście do lokalu od ul. Barskiej, schodkami w dół. Nieruchomość doświetlona naturalnym światłem, okienkami na poziomie ulicy (od strony ul. Barskiej i od strony dziedzińca).
Stan nieruchomości: Lokal jest w stanie do remontu generalnego, który może zostać przeprowadzony przez właściciela LUB w modelu, gdzie najemca pokrywa całkowity koszt remontu, co zostanie rozliczone w czynszu.
Lokalizacja: Nieruchomość zlokalizowana jest w obszarze bardzo dynamicznie rozwijającej się lokalizacji – Starych Dębnik, w bezpośrednim sąsiedztwie Rynek Dębnicki, Most Dębnicki, Rondo Grunwaldzkie oraz Centrum Kongresowe ICE Kraków. Znajdują się tu liczne sklepy, punkty handlowo-usługowe, placówki użyteczności publicznej, a także przystanki komunikacji miejskiej, zarówno tramwajowej, jak i autobusowej, umożliwiające bezproblemowe dotarcie do wybranej części Krakowa.
Komunikacja miejska: Około 2 minuty pieszo do przystanku autobusowego i tramwajowego Rondo Grunwaldzkie, ok. 2 minuty pieszo do przystanku autobusowego przy ul. Konopnickiej.
Cena: 3500 zł.
Nieruchomość: Proponujemy Państwu lokal na cele usługowe. Lokal położony w suterenie trzypiętrowej kamienicy na rogu ulic Barskiej i Madalińskiego, o powierzchni użytkowej 65m2, składający się z 2 osobnych pomieszczeń, hallu i WC. Wejście do lokalu od ul. Barskiej, schodkami w dół. Nieruchomość doświetlona naturalnym światłem, okienkami na poziomie ulicy (od strony ul. Barskiej i od strony dziedzińca).
Stan nieruchomości: Lokal jest w stanie do remontu generalnego, który może zostać przeprowadzony przez właściciela LUB w modelu, gdzie najemca pokrywa całkowity koszt remontu, co zostanie rozliczone w czynszu.
Lokalizacja: Nieruchomość zlokalizowana jest w obszarze bardzo dynamicznie rozwijającej się lokalizacji – Starych Dębnik, w bezpośrednim sąsiedztwie Rynek Dębnicki, Most Dębnicki, Rondo Grunwaldzkie oraz Centrum Kongresowe ICE Kraków. Znajdują się tu liczne sklepy, punkty handlowo-usługowe, placówki użyteczności publicznej, a także przystanki komunikacji miejskiej, zarówno tramwajowej, jak i autobusowej, umożliwiające bezproblemowe dotarcie do wybranej części Krakowa.
Komunikacja miejska: Około 2 minuty pieszo do przystanku autobusowego i tramwajowego Rondo Grunwaldzkie, ok. 2 minuty pieszo do przystanku autobusowego przy ul. Konopnickiej.
Cena: 3500 zł.
ID: 1036005319
xxx xxx xxx
Dodane 02 listopada 2025
Lokal użytkowy do wynajęcia w samym sercu Starych Dębnik
3 500 zł
Lokalizacja
Kraków, Stare Miasto
Małopolskie
