Firmowe
Poziom: 1
Powierzchnia: 42 m²
Przeznaczenie lokalu: Usługowe
Opis
Wynajmę lokal użytkowy w nowo otwartym budynku rezonansu magnetycznego, na pierwszym piętrze. W Giżycku przy ul. Armii Krajowej 3.
W otoczeniu bloki mieszkalne, parkingi, sklepy, apteki.
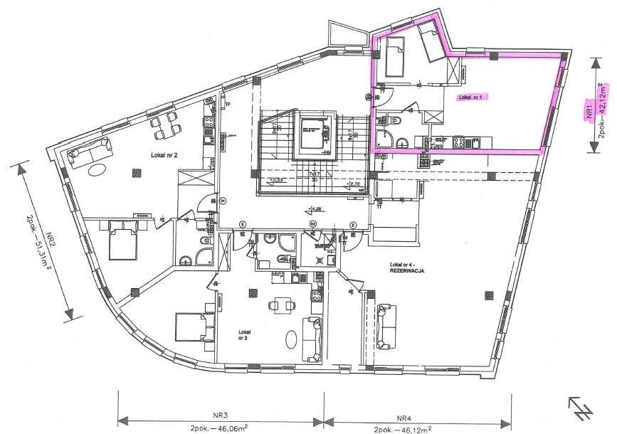
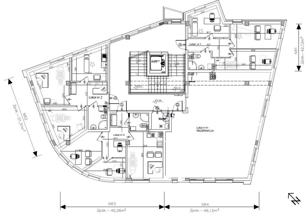
Lokal NR 1 o powierzchni 42,12 m2 - jesteśmy w stanie wydzielić powierzchnię pod Państwa potrzeby. Zadzwoń.
Możliwość wykończenia lokalu pod preferencje wynajmującego, preferowane gabinety lekarskie, zabiegowe, fizjoterapeutyczne, dentystyczne itp. Możliwość wynajęcia przez innych specjalistów.
W razie jakich kol wiek pytań proszę o kontakt pod numerem telefonu: 51*******50
W otoczeniu bloki mieszkalne, parkingi, sklepy, apteki.
Lokal NR 1 o powierzchni 42,12 m2 - jesteśmy w stanie wydzielić powierzchnię pod Państwa potrzeby. Zadzwoń.
Możliwość wykończenia lokalu pod preferencje wynajmującego, preferowane gabinety lekarskie, zabiegowe, fizjoterapeutyczne, dentystyczne itp. Możliwość wynajęcia przez innych specjalistów.
W razie jakich kol wiek pytań proszę o kontakt pod numerem telefonu: 51*******50
ID: 847885364
xxx xxx xxx
Dodane 05 stycznia 2026
Lokal usługowy do wynajęcia 42,12 m2
3 500 zł
Lokalizacja
Giżycko
Warmińsko-mazurskie
