Firmowe
Poziom: Parter
Powierzchnia: 80 m²
Przeznaczenie lokalu: Usługowe
Opis
Opis
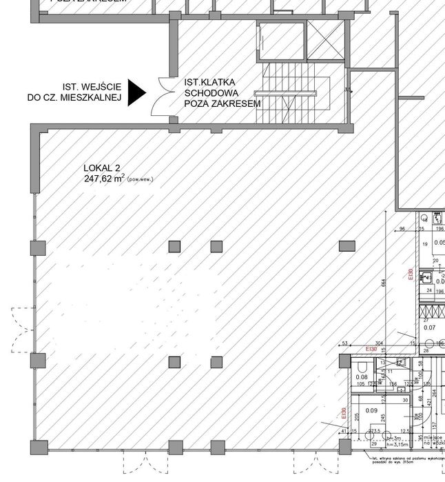
Apartamenty Dobra Nocka przy ul. Misiągiewicza 84 w Przeworsku.
Lokal Usługowo-Handlowy z możliwością podziału na mniejsze, minimum do zakupu to 80 m².
Powierzchni całego lokalu wynosi 247,62 m² (parter blok A) na nowo wybudowanym osiedlu
Budynek oddany do użytku w maju 2023 r.
Na osiedlu jest 177 lokali mieszkalnych co daje około 400 mieszkańców i potencjalnych klientów korzystających ze sklepu lub usług w które zainwestujecie. W sąsiedztwie osiedla Dobra Nocka zlokalizowane jest osiedle bloków jak i domy jednorodzinne, więc zainteresowanych nie będzie brakowało.
Przestronny parking zewnętrzny jest dodatkowym atutem oferty, gdzie dostawcy lub klienci będą mogli zaparkować na czas pobytu/zakupów.
Inwestycja "Dobra Nocka" położona przy ul. Misiągiewicza w Przeworsku to kompleks 3 budynków (A, B i C) wielorodzinnych o nowoczesnej architekturze z dobrze przemyślanym układem pomieszczeń, które idealnie wpisują się w potrzeby przyszłych mieszkańców.
Budynki wyróżniają się nowoczesną architekturą. Na elewacji oprócz bieli i szarości zastosowano elementy o strukturze drewna. Przestronne balkony wyposażone w przeszklone balustrady, które nadają bryłom lekkości. Całość dopełnią tereny zielone wokół budynków oraz plac zabaw dla najmłodszych.
Biuro sprzedaży czynne:
od poniedziałku do piątku w godz. 8:00 - 16:00
Apartamenty Dobra Nocka przy ul. Misiągiewicza 84 w Przeworsku.
Lokal Usługowo-Handlowy z możliwością podziału na mniejsze, minimum do zakupu to 80 m².
Powierzchni całego lokalu wynosi 247,62 m² (parter blok A) na nowo wybudowanym osiedlu
Budynek oddany do użytku w maju 2023 r.
Na osiedlu jest 177 lokali mieszkalnych co daje około 400 mieszkańców i potencjalnych klientów korzystających ze sklepu lub usług w które zainwestujecie. W sąsiedztwie osiedla Dobra Nocka zlokalizowane jest osiedle bloków jak i domy jednorodzinne, więc zainteresowanych nie będzie brakowało.
Przestronny parking zewnętrzny jest dodatkowym atutem oferty, gdzie dostawcy lub klienci będą mogli zaparkować na czas pobytu/zakupów.
Inwestycja "Dobra Nocka" położona przy ul. Misiągiewicza w Przeworsku to kompleks 3 budynków (A, B i C) wielorodzinnych o nowoczesnej architekturze z dobrze przemyślanym układem pomieszczeń, które idealnie wpisują się w potrzeby przyszłych mieszkańców.
Budynki wyróżniają się nowoczesną architekturą. Na elewacji oprócz bieli i szarości zastosowano elementy o strukturze drewna. Przestronne balkony wyposażone w przeszklone balustrady, które nadają bryłom lekkości. Całość dopełnią tereny zielone wokół budynków oraz plac zabaw dla najmłodszych.
Biuro sprzedaży czynne:
od poniedziałku do piątku w godz. 8:00 - 16:00
ID: 1054411212
Skontaktuj się
xxx xxx xxx
Dodane 12 lutego 2026
Lokal usługowo-handlowy 80 m2 Przeworsk sprzedaż
400 000 zł
Lokalizacja
Przeworsk
Podkarpackie