Prywatne
Poziom: Parter
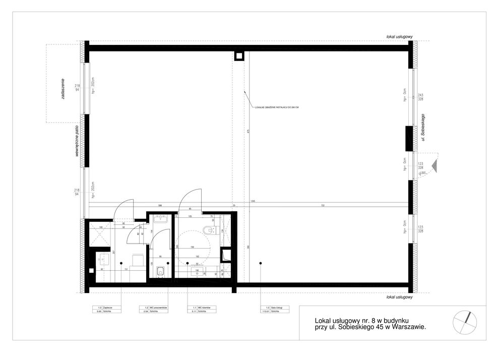
Powierzchnia: 128,45 m²
Przeznaczenie lokalu: Usługowe
Opis
LOKAL UŻYTKOWY WYKOŃCZONY 128,45 m2
dzielnica
Mokotów -Stegny, kompleks Mangalia
ul. Jana III Sobieskiego 45
WSPANIALY NOWY WYKOŃCZONY !!
Lokal użytkowy o powierzchni 128,45 m2 położony na Warszawskich Stegnach przy dwóch ruchliwych ulicach.
Nowa trasa tramwajowa do Wilanowa, przy lokalu przystanek tramwajowy i autobusowy. Wejście do lokalu od ulicy Sobieskiego .
Podstawowe informacje:
- lokal z witrynami znajduje się na parterze w nowym apartamentowcu na Mokotowie. Wszystkie okna typu " fix".
- przeznaczenie lokalu: handlowo-usługowe, biurowe, punkt przedszkolny , medyczne ,kosmetyczne, małe coffee shop
- media: energia elektr. ( 25 kW) ( umowa z E.ON), woda, kanalizacja, światłowód
- witryna, wejście z ulicy, wysokość pomieszczeń 3,27 m max.
- klimatyzacja 3 jednostki wewnętrzne ,kurtyna powietrzna ,światłowód ,energia, podłączenie elektr. pod reklamę zewnętrzną , monitoring -podpisana umowa z Solid Group
- dwa rodzaje ciepła c.o. plus ciepło technologiczne, dwa żródła każde podlicznikowane.
Lokal z podziałem na jedno pomieszczenie socjalne plus toaleta ,druga toaleta z opcją dla inwalidy , duży open space .
Najemca akceptuje stan lub dostosowuje lokal na własny koszt do swojej działalności.
Główne zalety:
- dobra lokalizacja, dojazd komunikacją miejską - przystanek autobusowy i tramwajowy przy budynku
- witryny lokalu gwarantują widoczność z ulicy
- ogólnodostępne miejsca parkingowe od ul Mangalii, Sobieskiego
Koszt wynajmu 12 800 zł netto +VAT(23 %) plus czynsz za lokal (około 10zł -12 zł/m2), w czynszu zaliczkowe zużycie wody i c.o. rozliczane co pewien okres z uwzględnieniem wskażnika liczników wody,c.o. ,opłata do Solid Group -ochrona ( 60 zł netto) .
Kaucja to jednomiesięczna kwota za wynajem plus VAT 23 %.
dzielnica
Mokotów -Stegny, kompleks Mangalia
ul. Jana III Sobieskiego 45
WSPANIALY NOWY WYKOŃCZONY !!
Lokal użytkowy o powierzchni 128,45 m2 położony na Warszawskich Stegnach przy dwóch ruchliwych ulicach.
Nowa trasa tramwajowa do Wilanowa, przy lokalu przystanek tramwajowy i autobusowy. Wejście do lokalu od ulicy Sobieskiego .
Podstawowe informacje:
- lokal z witrynami znajduje się na parterze w nowym apartamentowcu na Mokotowie. Wszystkie okna typu " fix".
- przeznaczenie lokalu: handlowo-usługowe, biurowe, punkt przedszkolny , medyczne ,kosmetyczne, małe coffee shop
- media: energia elektr. ( 25 kW) ( umowa z E.ON), woda, kanalizacja, światłowód
- witryna, wejście z ulicy, wysokość pomieszczeń 3,27 m max.
- klimatyzacja 3 jednostki wewnętrzne ,kurtyna powietrzna ,światłowód ,energia, podłączenie elektr. pod reklamę zewnętrzną , monitoring -podpisana umowa z Solid Group
- dwa rodzaje ciepła c.o. plus ciepło technologiczne, dwa żródła każde podlicznikowane.
Lokal z podziałem na jedno pomieszczenie socjalne plus toaleta ,druga toaleta z opcją dla inwalidy , duży open space .
Najemca akceptuje stan lub dostosowuje lokal na własny koszt do swojej działalności.
Główne zalety:
- dobra lokalizacja, dojazd komunikacją miejską - przystanek autobusowy i tramwajowy przy budynku
- witryny lokalu gwarantują widoczność z ulicy
- ogólnodostępne miejsca parkingowe od ul Mangalii, Sobieskiego
Koszt wynajmu 12 800 zł netto +VAT(23 %) plus czynsz za lokal (około 10zł -12 zł/m2), w czynszu zaliczkowe zużycie wody i c.o. rozliczane co pewien okres z uwzględnieniem wskażnika liczników wody,c.o. ,opłata do Solid Group -ochrona ( 60 zł netto) .
Kaucja to jednomiesięczna kwota za wynajem plus VAT 23 %.
ID: 1040689128
xxx xxx xxx
Dodane 25 listopada 2025
Lokal Mokotów -Stegny 128 m2 ul . Sobieskiego
12 800 zł
Lokalizacja
Warszawa, Mokotów
Mazowieckie
