Prywatne
Cena za m²: 6900 zł/m²
Poziom: Parter
Umeblowane: Nie
Rynek: Wtórny
Rodzaj zabudowy: Kamienica
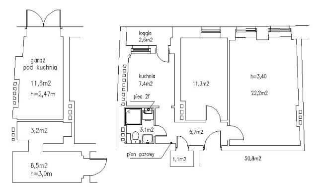
Powierzchnia: 50 m²
Liczba pokoi: 2 pokoje
Opis
7 tys za m2 za kompletnie odnowione mieszkanie - wprowadzasz się i mieszkasz
Mieszkanie w Centrum Legnicy ul. Złotoryjska 68
SPRZEDAM BEZPOŚREDNOI
Cena do niewielkiej negocjacji
Okna od podwórka strona południowo-wschodnia - bardzo ciche
wysokość 3,40 m - możliwość zbudowania antresoli
stan po generalnym remoncie
ODNOWIONY PARKIET
KUCHNIA - meble kolor drewna + blaty pod kolor płytek podłogowych + czarny zlew z wylewką Franke i kuchenka gazowa z elektrycznym piekarnikiem na gwarancji
ogrzewanie gazowe - cała nowa instalacja i piec Viessmann nowy na gwarancji
podłoga - pokoje i przedpokój parkiet
łazienka odnowiona w całości
całe wyposażenie na gwarancji
wspaniała lokalizacja - w kilka minut do Rynku, przystanek autobusowy pod bramą wejściową
2 piwnice, pod mieszkaniem z czego jedna z wyjsciem na podworko wykorzystywana jako garaż - sa dokumenty uprawniajace do takiego
garderoba jako osobne pomieszczenie zamykane drzwiami
Mieszkanie w Centrum Legnicy ul. Złotoryjska 68
SPRZEDAM BEZPOŚREDNOI
Cena do niewielkiej negocjacji
Okna od podwórka strona południowo-wschodnia - bardzo ciche
wysokość 3,40 m - możliwość zbudowania antresoli
stan po generalnym remoncie
ODNOWIONY PARKIET
KUCHNIA - meble kolor drewna + blaty pod kolor płytek podłogowych + czarny zlew z wylewką Franke i kuchenka gazowa z elektrycznym piekarnikiem na gwarancji
ogrzewanie gazowe - cała nowa instalacja i piec Viessmann nowy na gwarancji
podłoga - pokoje i przedpokój parkiet
łazienka odnowiona w całości
całe wyposażenie na gwarancji
wspaniała lokalizacja - w kilka minut do Rynku, przystanek autobusowy pod bramą wejściową
2 piwnice, pod mieszkaniem z czego jedna z wyjsciem na podworko wykorzystywana jako garaż - sa dokumenty uprawniajace do takiego
garderoba jako osobne pomieszczenie zamykane drzwiami
ID: 902268037
xxx xxx xxx
Dodane 30 listopada 2025
Legnica-Centrum - CICHE po general remoncie kamienica garaż
345 000 zł
do negocjacji
Lokalizacja
Legnica
Dolnośląskie
