Prywatne
Cena za m²: 17591.42 zł/m²
Poziom: Parter
Umeblowane: Tak
Rynek: Wtórny
Rodzaj zabudowy: Kamienica
Powierzchnia: 79,30 m²
Liczba pokoi: 3 pokoje
Opis
Przedstawiam do sprzedaży 3 pokojowe mieszkanie o powierzchni 79,3m2 w Centrum na Starym Mieście – KAZIMIERZ przy ul. Orzeszkowej. ( zamieszczony link - obraz kamienicy i Apartamentu i okolicy )
Mieszkanie mieści się na wysokim parterze w zadbanej i odnowionej 4-ro piętrowej kamienicy.
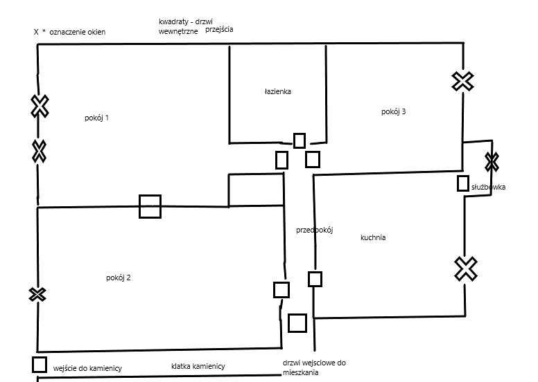
Apartament o powierzchni 79.3 m2 składa się z:
- 3 osobne pokoje,
- kuchnia osobna z wejściem do tzw służbówki-spiżarki
- łazienka z WC
- korytarz
- piwnica o powierzchni 6,8m2
Wnętrza, pokoje od ulicy jasne z klimatem. Okna pokoi skierowane na spokojną ulicę oraz podwórko. Mieszkanie z wymienionymi oknami Plastikowymi oraz instalacją elektryczną i gazową. Ogrzewane jest za pomocą dwufunkcyjnego pieca gazowego.
Układ Apartamentu świetnie sprawdzi się zarówno do zamieszkania, jak również jako lokal biurowy lub usługi medycyny estetycznej.
Kamienica monitorowana, zadbana, po remontach. Elewacja od strony ulicy i podwórka jest po remoncie kilka lat wcześniej. Od strony podwórka dodatkowo z ociepleniem. Klatka schodowa z wymienionymi specjalnymi energochłonnymi wejściami na balkony, budynek utrzymany w bardzo dobrym stanie technicznym. 70% mieszkań jest zamieszkana przez ich właścicieli.
Apartament tj 2 pokoje od strony ulicy są słoneczne pomimo wysokiego parteru.
Czynsz administracyjny: około 448,00 Pln.
Lokalizacja zapewnia pełną wygodę życia: w bezpośrednim sąsiedztwie liczne sklepy, punkty usługowe, kawiarnie i restauracje oraz Szpital i przychodnia.
Dojście do :
- najbliższego przystanku tramwajowego 1 minutę ( ul. Dietla )
- plant nad Wisłą 3 minuty
- Rynku Głównego - 15 minut,
- najbliższego Pubu, restauracji - 4 minuty
- Placu Żydowskiego ( Nowy ) - 5 minut
Doskonały dojazd środkami komunikacji Miejskiej w różne miejsca Krakowa.
Cena do negocjacji.
pozdrawiam,
Mieszkanie mieści się na wysokim parterze w zadbanej i odnowionej 4-ro piętrowej kamienicy.
Apartament o powierzchni 79.3 m2 składa się z:
- 3 osobne pokoje,
- kuchnia osobna z wejściem do tzw służbówki-spiżarki
- łazienka z WC
- korytarz
- piwnica o powierzchni 6,8m2
Wnętrza, pokoje od ulicy jasne z klimatem. Okna pokoi skierowane na spokojną ulicę oraz podwórko. Mieszkanie z wymienionymi oknami Plastikowymi oraz instalacją elektryczną i gazową. Ogrzewane jest za pomocą dwufunkcyjnego pieca gazowego.
Układ Apartamentu świetnie sprawdzi się zarówno do zamieszkania, jak również jako lokal biurowy lub usługi medycyny estetycznej.
Kamienica monitorowana, zadbana, po remontach. Elewacja od strony ulicy i podwórka jest po remoncie kilka lat wcześniej. Od strony podwórka dodatkowo z ociepleniem. Klatka schodowa z wymienionymi specjalnymi energochłonnymi wejściami na balkony, budynek utrzymany w bardzo dobrym stanie technicznym. 70% mieszkań jest zamieszkana przez ich właścicieli.
Apartament tj 2 pokoje od strony ulicy są słoneczne pomimo wysokiego parteru.
Czynsz administracyjny: około 448,00 Pln.
Lokalizacja zapewnia pełną wygodę życia: w bezpośrednim sąsiedztwie liczne sklepy, punkty usługowe, kawiarnie i restauracje oraz Szpital i przychodnia.
Dojście do :
- najbliższego przystanku tramwajowego 1 minutę ( ul. Dietla )
- plant nad Wisłą 3 minuty
- Rynku Głównego - 15 minut,
- najbliższego Pubu, restauracji - 4 minuty
- Placu Żydowskiego ( Nowy ) - 5 minut
Doskonały dojazd środkami komunikacji Miejskiej w różne miejsca Krakowa.
Cena do negocjacji.
pozdrawiam,
ID: 1040177835
xxx xxx xxx
Dodane Dzisiaj o 13:14
Kraków Stare Miasto-Kazimierz, 3 pokoje - na GABINET - PRYWATNIE
1 395 000 zł
do negocjacji
Lokalizacja
Kraków, Stare Miasto
Małopolskie