Prywatne
Stan: Nowe
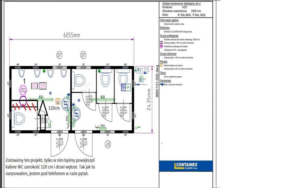
Opis
Wykończenie
- Konstrukcja Zbudowany
- Konstrukcja Zbudowany
- Wysokość zewnętrzna
kontenera
2800 mm
- Wysokość wewnętrzna 2540 mm
- Wersja ramy dachowej Wersja standardowa
- Wersja słupka narożnego Wersja standardowa
- Wersja konstrukcji podłogowej Standardowe poprzeczne belki nośne podłogi
- Miejsce podłączenia dopływu i odpływu
wody
W konstrukcji ściany (zagłębione)
Lakierowanie
- Kolor kontenera RAL 9002 biały karpacki
Wykończenie wnętrza
- Wykończenie wnętrza Patrz szkic
- Wykończenie wnętrza - sufit Płyta wiórowa, kolor biały
Izolacja
- Izolacja ścian Wełna mineralna 60 mm
- Izolacja dachu Wełna mineralna 100 mm
- Izolacja podłogi Wełna mineralna 100 mm
- Izolacja ścianek działowych Bez izolacji
Elektryka
- Wersja przyłącza elektrycznego Z wpustami CEE, ze skrzynką rozdzielczą
- Elektryka Norma CZ (400V/32A/5-biegunowy)
Wersja konstrukcji podłogowej
- Rozstaw otworów dla wózka widłowego 2050 mm
- Płyta podłogowa Standardowa płyta podłogowa
- Wykładzina podłogowa SURESTEP, 2 mm, R10/C
- Wykładzina PCV podciągnięta SURESTEP, 2 mm, R10/C
Wyposażenie
9 szt Wzmocnienie ściany
3 szt Okno sanitarne uchylne
Wysokość parapetu: 1525 mm nad górną krawędzią okna
Wymiar piętra od zewnątrz: 652 X 714 mm
Wymiar otworu okiennego w świetle: 590 X 528 mm
Standartowa izolacja szkleń z wypełnieniem gazowym
2 szt Drzwi stalowe
Wymiar (szerokość): 875 mm
Wymiar szerokości otworu drzwiowego w świetle: 811 mm
Wymiar wysokości otworu drzwiowego w świetle: 2065 mm
Otwierane do zewnątrz
Ścianki działowe
2 LFM Wewnętrzna ściana działowa
Bez izolacji
Płyta wiórowa, kolor biały
7 LFM Ścianka działowa WC
4 szt Drzwi wewnętrzne WC, ścianka działowa 625X2000 mm
Wyposażenie elektryczne
1 szt Gniazdo elektryczne, pojedyncze
1 szt Gniazdo elektryczne, pojedyncze
350 mm nad górną krawędzią podłogi (GKP)
2 szt Gniazdo elektryczne, pojedyncze
Elektryka do pomieszczeń wilgotnych
480 mm nad górną krawędzią podłogi (GKP)
2 szt Gniazdo elektryczne, pojedyncze
Elektryka do pomieszczeń wilgotnych
1800 mm nad górną krawędzią podłogi (GKP)
2 szt Wyłącznik szeregowy
Wyposażenie sanitarne
2 szt Umywalka ceramiczna, 500 X 410 mm
Z baterią jednouchwytową
Z 5-litrowym zbiornikiem podumywalkowym
Z lustrem metalowym
Z hakiem metalowym
Z mydelniczką
2 szt Kran z zaworem kulowym 1/2"
4 szt Kontener WC z toaletą i uchwytem na papier toaletowy
4 szt Pisuar ze spłuczką
2 szt Studzienka ściekowa
1 szt Zawór redukcyjny
1"
Wyposażenie w zakresie
ogrzewania, wentylacji i chłodzenia
2 szt Wentylator wyciągowy, 170 mł
2 szt Ogrzewacz przewiewowy 2kW
Oświetlenie
2 szt Oświetlenie mocowane LED 36 W
tel. 50*******05
- Konstrukcja Zbudowany
- Konstrukcja Zbudowany
- Wysokość zewnętrzna
kontenera
2800 mm
- Wysokość wewnętrzna 2540 mm
- Wersja ramy dachowej Wersja standardowa
- Wersja słupka narożnego Wersja standardowa
- Wersja konstrukcji podłogowej Standardowe poprzeczne belki nośne podłogi
- Miejsce podłączenia dopływu i odpływu
wody
W konstrukcji ściany (zagłębione)
Lakierowanie
- Kolor kontenera RAL 9002 biały karpacki
Wykończenie wnętrza
- Wykończenie wnętrza Patrz szkic
- Wykończenie wnętrza - sufit Płyta wiórowa, kolor biały
Izolacja
- Izolacja ścian Wełna mineralna 60 mm
- Izolacja dachu Wełna mineralna 100 mm
- Izolacja podłogi Wełna mineralna 100 mm
- Izolacja ścianek działowych Bez izolacji
Elektryka
- Wersja przyłącza elektrycznego Z wpustami CEE, ze skrzynką rozdzielczą
- Elektryka Norma CZ (400V/32A/5-biegunowy)
Wersja konstrukcji podłogowej
- Rozstaw otworów dla wózka widłowego 2050 mm
- Płyta podłogowa Standardowa płyta podłogowa
- Wykładzina podłogowa SURESTEP, 2 mm, R10/C
- Wykładzina PCV podciągnięta SURESTEP, 2 mm, R10/C
Wyposażenie
9 szt Wzmocnienie ściany
3 szt Okno sanitarne uchylne
Wysokość parapetu: 1525 mm nad górną krawędzią okna
Wymiar piętra od zewnątrz: 652 X 714 mm
Wymiar otworu okiennego w świetle: 590 X 528 mm
Standartowa izolacja szkleń z wypełnieniem gazowym
2 szt Drzwi stalowe
Wymiar (szerokość): 875 mm
Wymiar szerokości otworu drzwiowego w świetle: 811 mm
Wymiar wysokości otworu drzwiowego w świetle: 2065 mm
Otwierane do zewnątrz
Ścianki działowe
2 LFM Wewnętrzna ściana działowa
Bez izolacji
Płyta wiórowa, kolor biały
7 LFM Ścianka działowa WC
4 szt Drzwi wewnętrzne WC, ścianka działowa 625X2000 mm
Wyposażenie elektryczne
1 szt Gniazdo elektryczne, pojedyncze
1 szt Gniazdo elektryczne, pojedyncze
350 mm nad górną krawędzią podłogi (GKP)
2 szt Gniazdo elektryczne, pojedyncze
Elektryka do pomieszczeń wilgotnych
480 mm nad górną krawędzią podłogi (GKP)
2 szt Gniazdo elektryczne, pojedyncze
Elektryka do pomieszczeń wilgotnych
1800 mm nad górną krawędzią podłogi (GKP)
2 szt Wyłącznik szeregowy
Wyposażenie sanitarne
2 szt Umywalka ceramiczna, 500 X 410 mm
Z baterią jednouchwytową
Z 5-litrowym zbiornikiem podumywalkowym
Z lustrem metalowym
Z hakiem metalowym
Z mydelniczką
2 szt Kran z zaworem kulowym 1/2"
4 szt Kontener WC z toaletą i uchwytem na papier toaletowy
4 szt Pisuar ze spłuczką
2 szt Studzienka ściekowa
1 szt Zawór redukcyjny
1"
Wyposażenie w zakresie
ogrzewania, wentylacji i chłodzenia
2 szt Wentylator wyciągowy, 170 mł
2 szt Ogrzewacz przewiewowy 2kW
Oświetlenie
2 szt Oświetlenie mocowane LED 36 W
tel. 50*******05
ID: 1031470431
xxx xxx xxx
Dodane Dzisiaj o 05:48
Kontener sanitarny toaleta damsko/męska 6x2,5 wc pisuar bojler kabiny
41 000 zł
do negocjacji
Lokalizacja