Firmowe
Stan: Nowe
Opis
KONSTRUKCJA NADMUCHOWA NA WĘGIEL
KOTŁY PIEC PIECE NADMUCHOWY na WĘGIEL 5 KLASA 12kW
Kocioł dolnego spalania na węgiel kamienny - orzech
Unieko Plus
Moc kotła: 12kW
Klasa energetyczna B
5 KLASA
Powierzchnia: 70 - 110 m2
Kocioł UNIEKO PLUS to najnowszej konstrukcji nadmuchowy piec na węgiel, spełniający wysokie wymagania normy PN-EN 303-5:2012 dla 5 klasy, oraz programów ochrony środowiska Ecodesign. Aby ten kocioł spełniał wymogi 5 klasy należy zamontować bufor.
Wytwarzany w nowoczesnej technologii produkcji z atestowanych materiałów. Konstrukcja kotła oparta jest na wysoce wydajnym wymienniku ciepła. Wykorzystuje technikę dolnego spalania zapewniającą ekonomiczne i czyste spalanie paliwa.
Uniwersalność - możliwość montażu miarkownika ciągu, regulowane przepustnice powietrza wtórnego.
Solidna konstrukcja oraz wykonanie kotła - atestowana stal kotłowa P265Gh 6mm.
Bezproblemowa obsługa - łatwo dostępne wszystkie elementy kotła, pojemna skrzynka na popiół, łatwość czyszczenia wymiennika, nóżki montażowe pozwalające na wypoziomowanie kotła
Łatwy w obsłudze sterownik "ATOS"
Dmuchawa WPA 120
Niska emisja zanieczyszczenia do atmosfery - 5 klasa, ECODESIGN.
Ekonomia i wygoda - technika dolnego spalania pozwala na efektywne oraz ekonomiczne spalanie węgla kamiennego - orzech.
Wysoka sprawność - komora spalania z katalizatorami ceramicznymi, sprawność kotła.
Ergonomia - kompaktowa budowa kotła, osprzęt kotła wykonany z żeliwa.
UWAGA!
Proces spalania w kotle Unieko Plus powinien zachodzić w tylnym kanale!
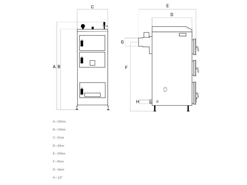
A - Głębokość paleniska - 25cm
B - Wysokość paleniska - 53cm
Szerokość paleniska - 33cm
Zalety kotła UNIEKO PLUS:
- sterownik ATOS
- dmuchawa wpa 120
- wysoka sprawność cieplna
- wbudowany termometr
- tulejkowe regulowane klamki z naciągiem
- regulowane zawiasy
- kratka żeliwna w palenisku
- wydłużona stałopalność (duża komora zasypowa)
- bardzo wysoka wydajność pieca i małe spalanie
- prosta obsługa
- miarkownik ciągu
- dostosowany do nowych przepisów 5 klasy i Ecodesign
- wymiennik ciepła wykonany z atestowanej blachy kotłowej P265GH o grubości 6mm
- wysoka sprawność spalania oraz wymiany ciepła
- kompaktowa budowa kotła
- komora spalania z katalizatorami ceramicznymi
- regulowana dysza powietrza wtórnego
Moc kotła grzewczego powinna być dopasowana do zapotrzebowania na energie potrzebną do ogrzewania budynku (i ewentualnie podgrzewania ciepłej wody użytkowej) wyliczoną zgodnie obowiązującymi normami budowlanymi.
KOTŁY PIEC PIECE NADMUCHOWY na WĘGIEL 5 KLASA 12kW Klasa kotła 5/ecodesign
STEROWNIK "ATOS"
Regulator "ATOS" jest przeznaczony do sterowania wentylatorem nadmuchowym w kotłach c.o. oraz do załączania pompy obiegowej. Wyposażony w dodatkowe wyjście umożliwiające podłączenie termostatu pokojowego pozwala także na utrzymywanie zadanej temperatury w pomieszczeniu. Sterownik charakteryzuje się prostą obsługą oraz niezawodnym działaniem.
Wentylator WPA 120
Moc pobierana: 83 W
Typ silnika: R2E 120-AR38-40
Prędkość obrotowa: 2350 obr/min
Napięcie: 230 V / 50 Hz
Sprężanie maksymalne: 360 Pa
Wydatek maksymalny: 285 m3/h
KOTŁY PIEC PIECE NADMUCHOWY na WĘGIEL 5 KLASA 12kW
Kocioł dolnego spalania na węgiel kamienny - orzech
Unieko Plus
Moc kotła: 12kW
Klasa energetyczna B
5 KLASA
Powierzchnia: 70 - 110 m2
Kocioł UNIEKO PLUS to najnowszej konstrukcji nadmuchowy piec na węgiel, spełniający wysokie wymagania normy PN-EN 303-5:2012 dla 5 klasy, oraz programów ochrony środowiska Ecodesign. Aby ten kocioł spełniał wymogi 5 klasy należy zamontować bufor.
Wytwarzany w nowoczesnej technologii produkcji z atestowanych materiałów. Konstrukcja kotła oparta jest na wysoce wydajnym wymienniku ciepła. Wykorzystuje technikę dolnego spalania zapewniającą ekonomiczne i czyste spalanie paliwa.
Uniwersalność - możliwość montażu miarkownika ciągu, regulowane przepustnice powietrza wtórnego.
Solidna konstrukcja oraz wykonanie kotła - atestowana stal kotłowa P265Gh 6mm.
Bezproblemowa obsługa - łatwo dostępne wszystkie elementy kotła, pojemna skrzynka na popiół, łatwość czyszczenia wymiennika, nóżki montażowe pozwalające na wypoziomowanie kotła
Łatwy w obsłudze sterownik "ATOS"
Dmuchawa WPA 120
Niska emisja zanieczyszczenia do atmosfery - 5 klasa, ECODESIGN.
Ekonomia i wygoda - technika dolnego spalania pozwala na efektywne oraz ekonomiczne spalanie węgla kamiennego - orzech.
Wysoka sprawność - komora spalania z katalizatorami ceramicznymi, sprawność kotła.
Ergonomia - kompaktowa budowa kotła, osprzęt kotła wykonany z żeliwa.
UWAGA!
Proces spalania w kotle Unieko Plus powinien zachodzić w tylnym kanale!
A - Głębokość paleniska - 25cm
B - Wysokość paleniska - 53cm
Szerokość paleniska - 33cm
Zalety kotła UNIEKO PLUS:
- sterownik ATOS
- dmuchawa wpa 120
- wysoka sprawność cieplna
- wbudowany termometr
- tulejkowe regulowane klamki z naciągiem
- regulowane zawiasy
- kratka żeliwna w palenisku
- wydłużona stałopalność (duża komora zasypowa)
- bardzo wysoka wydajność pieca i małe spalanie
- prosta obsługa
- miarkownik ciągu
- dostosowany do nowych przepisów 5 klasy i Ecodesign
- wymiennik ciepła wykonany z atestowanej blachy kotłowej P265GH o grubości 6mm
- wysoka sprawność spalania oraz wymiany ciepła
- kompaktowa budowa kotła
- komora spalania z katalizatorami ceramicznymi
- regulowana dysza powietrza wtórnego
Moc kotła grzewczego powinna być dopasowana do zapotrzebowania na energie potrzebną do ogrzewania budynku (i ewentualnie podgrzewania ciepłej wody użytkowej) wyliczoną zgodnie obowiązującymi normami budowlanymi.
KOTŁY PIEC PIECE NADMUCHOWY na WĘGIEL 5 KLASA 12kW Klasa kotła 5/ecodesign
STEROWNIK "ATOS"
Regulator "ATOS" jest przeznaczony do sterowania wentylatorem nadmuchowym w kotłach c.o. oraz do załączania pompy obiegowej. Wyposażony w dodatkowe wyjście umożliwiające podłączenie termostatu pokojowego pozwala także na utrzymywanie zadanej temperatury w pomieszczeniu. Sterownik charakteryzuje się prostą obsługą oraz niezawodnym działaniem.
Wentylator WPA 120
Moc pobierana: 83 W
Typ silnika: R2E 120-AR38-40
Prędkość obrotowa: 2350 obr/min
Napięcie: 230 V / 50 Hz
Sprężanie maksymalne: 360 Pa
Wydatek maksymalny: 285 m3/h
ID: 780048035
xxx xxx xxx
Dodane 28 października 2025
Kocioł piec NADMUCHOWY na WĘGIEL + DREWNO + CHRUST 5 klasa 12kW
5 999 zł
Lokalizacja