Firmowe
Stan: Nowe
Opis
KONSTRUKCJA NADMUCHOWA NA WĘGIEL, DREWNO
PROMOCJA - 10%!!
KOTŁY PIEC PIECE NADMUCHOWY na WĘGIEL 5 KLASA 27kW
Kocioł dolnego spalania na węgiel kamienny - orzech, drewno, chrust
Unieko Plus
Moc kotła: 27kW
Klasa energetyczna B
Podana lokalizacja dotyczy wysyłki GRATIS. Możliwy odbiór osobisty w Pleszewie.
Powierzchnia: 180 - 250 m2
Dostępne moce 12, 18, 27, 35kw
Kocioł UNIEKO PLUS to najnowszej konstrukcji nadmuchowy piec na węgiel, spełniający wysokie wymagania normy PN-EN 303-5:2012 dla 5 klasy, oraz programów ochrony środowiska Ecodesign.
Wytwarzany w nowoczesnej technologii produkcji z atestowanych materiałów. Konstrukcja kotła oparta jest na wysoce wydajnym wymienniku ciepła. Wykorzystuje technikę dolnego spalania zapewniającą ekonomiczne i czyste spalanie paliwa.
Uniwersalność - możliwość montażu miarkownika ciągu, regulowane przepustnice powietrza wtórnego.
Solidna konstrukcja oraz wykonanie kotła - atestowana stal kotłowa P265Gh 6mm.
Bezproblemowa obsługa - łatwo dostępne wszystkie elementy kotła, pojemna skrzynka na popiół, łatwość czyszczenia wymiennika, nóżki montażowe pozwalające na wypoziomowanie kotła
Łatwy w obsłudze sterownik "ATOS"
Dmuchawa WPA 120
Niska emisja zanieczyszczenia do atmosfery - 5 klasa, ECODESIGN.
Ekonomia i wygoda - technika dolnego spalania pozwala na efektywne oraz ekonomiczne spalanie węgla kamiennego -orzech.
Wysoka sprawność - komora spalania z katalizatorami ceramicznymi, sprawność kotła.
Ergonomia - kompaktowa budowa kotła, osprzęt kotła wykonany z żeliwa.
UWAGA!
Proces spalania w kotle Unieko PLUS powinien zachodzić w tylnym kanale!
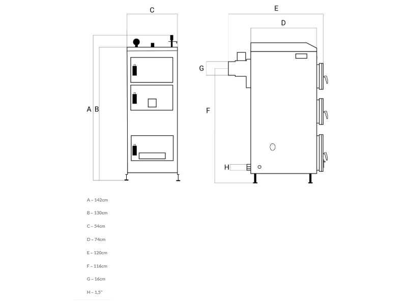
A - Głębokość paleniska - 31cm
B - Wysokość paleniska - 58cm
Szerokość paleniska - 38cm
KOTŁY PIEC PIECE NADMUCHOWY na WĘGIEL 5 KLASA 27kW Informacje dodatkowe dopuszczalna praca w układzie zamkniętym
Zalety kotła UNIEKO PLUS
Sterownik ATOS
Dmuchawa wpa 120
wysoka sprawność cieplna
wbudowany termometr
tulejkowe regulowane klamki z naciągiem
regulowane zawiasy
kratka żeliwna w palenisku
wydłużona stałopalność (duża komora zasypowa)
bardzo wysoka wydajność pieca i małe spalanie
prosta obsługa
miarkownik ciągu
dostosowany do nowych przepisów 5 klasy i Ecodesign
Wymiennik ciepła wykonany z atestowanej blachy kotłowej P265GH grubość blach: 6mm.
Wysoka sprawność spalania oraz wymiany ciepła
Kompaktowa budowa kotła
Komora spalania z katalizatorami ceramicznymi
Regulowana dysza powietrza wtórnego
Moc kotła grzewczego powinna być dopasowana do zapotrzebowania na energie potrzebną do ogrzewania budynku (i ewentualnie podgrzewania ciepłej wody użytkowej) wyliczoną zgodnie obowiązującymi normami budowlanymi.
KOTŁY PIEC PIECE NADMUCHOWY na WĘGIEL 5 KLASA 27kW Klasa kotła 5/ecodesign
STEROWNIK "ATOS"
Regulator "ATOS" jest przeznaczony do sterowania wentylatorem nadmuchowym w kotłach c.o. oraz do załączania pompy obiegowej. Wyposażony w dodatkowe wyjście umożliwiające podłączenie termostatu pokojowego pozwala także na utrzymywanie zadanej temperatury w pomieszczeniu. Sterownik charakteryzuje się prostą obsługą oraz niezawodnym działaniem.
KOTŁY PIEC PIECE NADMUCHOWY na WĘGIEL 5 KLASA 27kW Stan opakowania oryginalne
Wentylator WPA 120
Moc pobierana: 83 W
Typ silnika: R2E 120-AR38-40
Prędkość obrotowa: 2350 obr/min
Napięcie: 230 V / 50 Hz
Sprężanie maksymalne: 360 Pa
Wydatek maksymalny: 285 m3/h
PROMOCJA - 10%!!
KOTŁY PIEC PIECE NADMUCHOWY na WĘGIEL 5 KLASA 27kW
Kocioł dolnego spalania na węgiel kamienny - orzech, drewno, chrust
Unieko Plus
Moc kotła: 27kW
Klasa energetyczna B
Podana lokalizacja dotyczy wysyłki GRATIS. Możliwy odbiór osobisty w Pleszewie.
Powierzchnia: 180 - 250 m2
Dostępne moce 12, 18, 27, 35kw
Kocioł UNIEKO PLUS to najnowszej konstrukcji nadmuchowy piec na węgiel, spełniający wysokie wymagania normy PN-EN 303-5:2012 dla 5 klasy, oraz programów ochrony środowiska Ecodesign.
Wytwarzany w nowoczesnej technologii produkcji z atestowanych materiałów. Konstrukcja kotła oparta jest na wysoce wydajnym wymienniku ciepła. Wykorzystuje technikę dolnego spalania zapewniającą ekonomiczne i czyste spalanie paliwa.
Uniwersalność - możliwość montażu miarkownika ciągu, regulowane przepustnice powietrza wtórnego.
Solidna konstrukcja oraz wykonanie kotła - atestowana stal kotłowa P265Gh 6mm.
Bezproblemowa obsługa - łatwo dostępne wszystkie elementy kotła, pojemna skrzynka na popiół, łatwość czyszczenia wymiennika, nóżki montażowe pozwalające na wypoziomowanie kotła
Łatwy w obsłudze sterownik "ATOS"
Dmuchawa WPA 120
Niska emisja zanieczyszczenia do atmosfery - 5 klasa, ECODESIGN.
Ekonomia i wygoda - technika dolnego spalania pozwala na efektywne oraz ekonomiczne spalanie węgla kamiennego -orzech.
Wysoka sprawność - komora spalania z katalizatorami ceramicznymi, sprawność kotła.
Ergonomia - kompaktowa budowa kotła, osprzęt kotła wykonany z żeliwa.
UWAGA!
Proces spalania w kotle Unieko PLUS powinien zachodzić w tylnym kanale!
A - Głębokość paleniska - 31cm
B - Wysokość paleniska - 58cm
Szerokość paleniska - 38cm
KOTŁY PIEC PIECE NADMUCHOWY na WĘGIEL 5 KLASA 27kW Informacje dodatkowe dopuszczalna praca w układzie zamkniętym
Zalety kotła UNIEKO PLUS
Sterownik ATOS
Dmuchawa wpa 120
wysoka sprawność cieplna
wbudowany termometr
tulejkowe regulowane klamki z naciągiem
regulowane zawiasy
kratka żeliwna w palenisku
wydłużona stałopalność (duża komora zasypowa)
bardzo wysoka wydajność pieca i małe spalanie
prosta obsługa
miarkownik ciągu
dostosowany do nowych przepisów 5 klasy i Ecodesign
Wymiennik ciepła wykonany z atestowanej blachy kotłowej P265GH grubość blach: 6mm.
Wysoka sprawność spalania oraz wymiany ciepła
Kompaktowa budowa kotła
Komora spalania z katalizatorami ceramicznymi
Regulowana dysza powietrza wtórnego
Moc kotła grzewczego powinna być dopasowana do zapotrzebowania na energie potrzebną do ogrzewania budynku (i ewentualnie podgrzewania ciepłej wody użytkowej) wyliczoną zgodnie obowiązującymi normami budowlanymi.
KOTŁY PIEC PIECE NADMUCHOWY na WĘGIEL 5 KLASA 27kW Klasa kotła 5/ecodesign
STEROWNIK "ATOS"
Regulator "ATOS" jest przeznaczony do sterowania wentylatorem nadmuchowym w kotłach c.o. oraz do załączania pompy obiegowej. Wyposażony w dodatkowe wyjście umożliwiające podłączenie termostatu pokojowego pozwala także na utrzymywanie zadanej temperatury w pomieszczeniu. Sterownik charakteryzuje się prostą obsługą oraz niezawodnym działaniem.
KOTŁY PIEC PIECE NADMUCHOWY na WĘGIEL 5 KLASA 27kW Stan opakowania oryginalne
Wentylator WPA 120
Moc pobierana: 83 W
Typ silnika: R2E 120-AR38-40
Prędkość obrotowa: 2350 obr/min
Napięcie: 230 V / 50 Hz
Sprężanie maksymalne: 360 Pa
Wydatek maksymalny: 285 m3/h
ID: 781708775
xxx xxx xxx
Dodane 06 października 2025
Kocioł piec NADMUCHOWY na WĘGIEL 5 klasa 27 kW PROMOCJA -10%
7 199 zł
Lokalizacja