Prywatne
Cena za m²: 8911.16 zł/m²
Poziom: 6
Umeblowane: Nie
Rynek: Wtórny
Rodzaj zabudowy: Blok
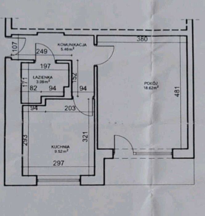
Powierzchnia: 36,92 m²
Liczba pokoi: 1 pokój
Opis
Szukasz mieszkania że świetnym widokiem w doskonałe skomunikowanej okolicy? Oferuję na sprzedaż kawalerkę z oddzielną kuchnią w samym centrum Białegostoku. To idealna propozycja dla singla, pary albo jako inwestycja pod wynajem.
Szczegóły oferty:
- Lokalizacja: Bialystok, Centrum, al. Józefa Piłsudskiego 12
- Powierzchnia: 36, 92 m²
- Liczba pokoi: 1, oddzielna kuchnia, łazienka z WC, korytarz (istnieje możliwość aranżacji na 2 pokoje - salon z aneksem +sypialnia)
- Piętro: 6/7 z windą
- Rok budowy: 1960
- Ekspozycja: wschodnia
- Okna: plastikowe
- Dodatkowe atuty: duży balkon, piwnica, możliwość uzytkowania komórki lokatorskiej
- Stan: do remontu
Okolica i komunikacja
W bliskim sąsiedztwie znajdziesz:
- sklepy spożywcze min. Biedronka 3 min spacerem, Galeria Jurowiecka 10 min spacerem/ 3 min samochodem
- placówki edukacyjne (szkoły, przedszkola)
- przystanki komunikacji miejskiej zapewniające szybki dojazd do innych dzielnic miasta
- Rynek Kościuszki, Ratusz - 10 min spacerem
- Kościół Rzymskokatolicki - 10 min spacerem
- tereny zielone np. Pałac Branickich, Planty - 12 min spacerem
Forma własności: pełna własność z księgą wieczystą
SPRZEDAM BEZPOŚREDNIO
Szczegóły oferty:
- Lokalizacja: Bialystok, Centrum, al. Józefa Piłsudskiego 12
- Powierzchnia: 36, 92 m²
- Liczba pokoi: 1, oddzielna kuchnia, łazienka z WC, korytarz (istnieje możliwość aranżacji na 2 pokoje - salon z aneksem +sypialnia)
- Piętro: 6/7 z windą
- Rok budowy: 1960
- Ekspozycja: wschodnia
- Okna: plastikowe
- Dodatkowe atuty: duży balkon, piwnica, możliwość uzytkowania komórki lokatorskiej
- Stan: do remontu
Okolica i komunikacja
W bliskim sąsiedztwie znajdziesz:
- sklepy spożywcze min. Biedronka 3 min spacerem, Galeria Jurowiecka 10 min spacerem/ 3 min samochodem
- placówki edukacyjne (szkoły, przedszkola)
- przystanki komunikacji miejskiej zapewniające szybki dojazd do innych dzielnic miasta
- Rynek Kościuszki, Ratusz - 10 min spacerem
- Kościół Rzymskokatolicki - 10 min spacerem
- tereny zielone np. Pałac Branickich, Planty - 12 min spacerem
Forma własności: pełna własność z księgą wieczystą
SPRZEDAM BEZPOŚREDNIO
ID: 1032413524
xxx xxx xxx
Dodane 15 października 2025
Kawalerka/ Białystok Centrum/ z widokiem
329 000 zł
do negocjacji
Lokalizacja
Białystok, Centrum
Podlaskie