Prywatne
Cena za m²: 7244.5 zł/m²
Rynek: Pierwotny
Powierzchnia: 123,68 m²
Powierzchnia działki: 300 m²
Rodzaj zabudowy: Bliźniak
Liczba pięter: Parterowy z użytkowym poddaszem
Opis
Dom w zabudowie dwulokalowej w stanie deweloperskim położony pięknej i cenionej okolicy - jednej z najbardziej pożądanych osiedli Zielonej Góry – Jędrzychowie.
(Oferta bezpośrednia: bez kosztów pośrednictwa oraz podatku PCC 2%). Oferta dotyczy lewego segmentu, (prawy sprzedany).
Dom położony jest cichej i spokojnej części miasta a jednocześnie blisko centrum miasta i pełnej infrastruktury. Jego powierzchnia 134m2, (z garażem jednostanowiskowym) a przemyślany projekt pozwoli komfortowo zamieszkać rodzinie. (Powierzchnia działki dla jednego segmentu to ~ 300m2).
Dom posiada garaż jednostanowiskowy w bryle budynku oraz wybrukowane dwa miejsca postojowe przed wejściem. Dodatkowo, ponad 40m2 strychu na szczycie domu do którego prowadzą drewniane, rozkładane schody dachowe pomieści wiele dodatkowych akcesoriów domowników czyniąc część mieszkalną uporządkowaną i jeszcze bardziej komfortową. Wysokość ścianki kolankowej ~ 115cm co oznacza, że skosy nie ograniczają funkcjonalności przestrzeni.
Dla dodatkowego komfortu mieszkańców oraz oszczędności ciepła dom wyposażony jest w rekuperację, (zamiast wentylacji grawitacyjnej). Oznacza to mniej strat ciepła, filtrowane powietrze w pomieszczeniach mieszkalnych oraz skuteczniej wymieniane, (kompletna instalacja rekuperacji z rekuperatorem co oznacza żadnych dopłat przez kupującego po zakupie).
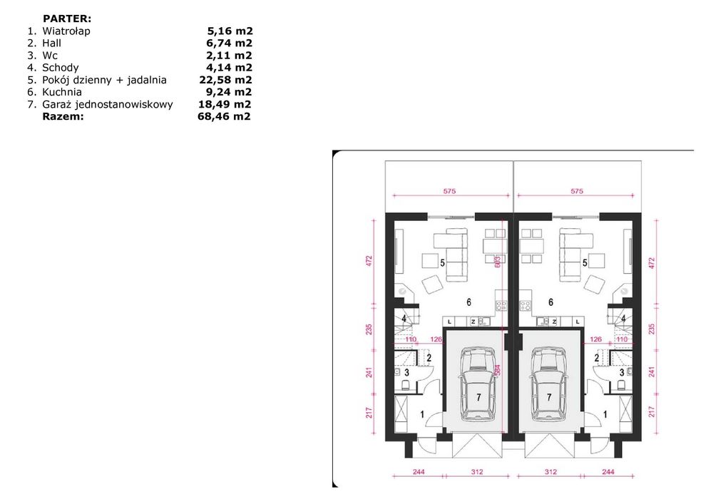
Na parterze domu rozmieszczony jest obszerny salon z jadalnią oraz wyjściem na taras, toaleta, przedsionek z dodatkową częścią komunikacyjną oraz garaż, (salon przygotowany do ewentualnego montażu kominka).
Na piętrze usytuowane są 3 komfortowe pokoje z czego jeden przystosowany jest do ewentualnego wydzielenia dodatkowego, niewielkiego biura z oknem, (lub garderoby) łazienka z toaletą i pomieszczenie gospodarcze, (pomieszczenie gospodarcze/pralnia).
(Sufity na piętrze zostały wykonane oraz są gotowe do szpachlowania i malowania co oznacza brak dodatkowych kosztów dla kupującego po zakupie).
Dom w sprawdzonej, tradycyjnej technologii postawiony na ławie fundamentowej wymurowany z ciepłego bloczka silikatowego o grubości 24cm oraz ocieplonego dodatkowo grafitowym styropianem o izolacji 20cm.
W całym domu ekonomiczne ogrzewanie podłogowe z ekologicznej i wydajnej pompy ciepła wraz z zasobnikiem ciepłej wody i dodatkową jej cyrkulacją, (ciepła woda w każdym zakątku domu natychmiast po odkręceniu kurka – brak zwłoki).
W domu zamontowany jest kompletny system grzewczy razem z urządzeniem, (pompą ciepła) co oznacza brak jakichkolwiek dopłat przez kupującego. (Instalacja elektryczna dodatkowo przygotowana jest pod ewentualny montaż fotowoltaiki). W każdym pokoju rozprowadzona jest instalacja internetowa i telewizyjna a na zewnątrz dodatkowo przygotowane przewody do kamer monitorujących.
Wszystkie media z sieci miejskiej: woda, odprowadzenie nieczystości oraz prąd.
Dom pokryty dachówką ceramiczną Creaton, wszystkie okna ciepłe 3 szybowe na renomowanych profilach Salamander z roletami i granitowymi parapetami, ocieplana brama garażowa Krispol z napędem elektrycznym, ocieplane drzwi wejściowe antywłamaniowe Gerda. Dom z ogrodzeniem panelowym bez części frontowej oraz wykonanym tarasem, wybrukowanym bokiem domu oraz części frontowej. Elewacja najwyższej klasy rodzajem tynku: silikonowego firmy Atlas odpornego przez długie lata na zabrudzenia organiczne i mechaniczne.
Na terenie zewnętrznym domu zostało wykonane podziemne rozsączanie wody deszczowej z rynien. (Wszystkie rynny są wpięte w niewidoczny system podziemnego rozsączania i woda z rynien nie wylewa się na teren działki).
Dom jest zaprojektowany i wykonany w taki sposób, aby kupujący mógł od razu po zakupie przystąpić do jego wykończenia i zamieszkania nie angażując dodatkowych środków oraz czasu.
Chętnie odpowiem na dodatkowe pytania.
(Oferta bezpośrednia: bez kosztów pośrednictwa oraz podatku PCC 2%). Oferta dotyczy lewego segmentu, (prawy sprzedany).
Dom położony jest cichej i spokojnej części miasta a jednocześnie blisko centrum miasta i pełnej infrastruktury. Jego powierzchnia 134m2, (z garażem jednostanowiskowym) a przemyślany projekt pozwoli komfortowo zamieszkać rodzinie. (Powierzchnia działki dla jednego segmentu to ~ 300m2).
Dom posiada garaż jednostanowiskowy w bryle budynku oraz wybrukowane dwa miejsca postojowe przed wejściem. Dodatkowo, ponad 40m2 strychu na szczycie domu do którego prowadzą drewniane, rozkładane schody dachowe pomieści wiele dodatkowych akcesoriów domowników czyniąc część mieszkalną uporządkowaną i jeszcze bardziej komfortową. Wysokość ścianki kolankowej ~ 115cm co oznacza, że skosy nie ograniczają funkcjonalności przestrzeni.
Dla dodatkowego komfortu mieszkańców oraz oszczędności ciepła dom wyposażony jest w rekuperację, (zamiast wentylacji grawitacyjnej). Oznacza to mniej strat ciepła, filtrowane powietrze w pomieszczeniach mieszkalnych oraz skuteczniej wymieniane, (kompletna instalacja rekuperacji z rekuperatorem co oznacza żadnych dopłat przez kupującego po zakupie).
Na parterze domu rozmieszczony jest obszerny salon z jadalnią oraz wyjściem na taras, toaleta, przedsionek z dodatkową częścią komunikacyjną oraz garaż, (salon przygotowany do ewentualnego montażu kominka).
Na piętrze usytuowane są 3 komfortowe pokoje z czego jeden przystosowany jest do ewentualnego wydzielenia dodatkowego, niewielkiego biura z oknem, (lub garderoby) łazienka z toaletą i pomieszczenie gospodarcze, (pomieszczenie gospodarcze/pralnia).
(Sufity na piętrze zostały wykonane oraz są gotowe do szpachlowania i malowania co oznacza brak dodatkowych kosztów dla kupującego po zakupie).
Dom w sprawdzonej, tradycyjnej technologii postawiony na ławie fundamentowej wymurowany z ciepłego bloczka silikatowego o grubości 24cm oraz ocieplonego dodatkowo grafitowym styropianem o izolacji 20cm.
W całym domu ekonomiczne ogrzewanie podłogowe z ekologicznej i wydajnej pompy ciepła wraz z zasobnikiem ciepłej wody i dodatkową jej cyrkulacją, (ciepła woda w każdym zakątku domu natychmiast po odkręceniu kurka – brak zwłoki).
W domu zamontowany jest kompletny system grzewczy razem z urządzeniem, (pompą ciepła) co oznacza brak jakichkolwiek dopłat przez kupującego. (Instalacja elektryczna dodatkowo przygotowana jest pod ewentualny montaż fotowoltaiki). W każdym pokoju rozprowadzona jest instalacja internetowa i telewizyjna a na zewnątrz dodatkowo przygotowane przewody do kamer monitorujących.
Wszystkie media z sieci miejskiej: woda, odprowadzenie nieczystości oraz prąd.
Dom pokryty dachówką ceramiczną Creaton, wszystkie okna ciepłe 3 szybowe na renomowanych profilach Salamander z roletami i granitowymi parapetami, ocieplana brama garażowa Krispol z napędem elektrycznym, ocieplane drzwi wejściowe antywłamaniowe Gerda. Dom z ogrodzeniem panelowym bez części frontowej oraz wykonanym tarasem, wybrukowanym bokiem domu oraz części frontowej. Elewacja najwyższej klasy rodzajem tynku: silikonowego firmy Atlas odpornego przez długie lata na zabrudzenia organiczne i mechaniczne.
Na terenie zewnętrznym domu zostało wykonane podziemne rozsączanie wody deszczowej z rynien. (Wszystkie rynny są wpięte w niewidoczny system podziemnego rozsączania i woda z rynien nie wylewa się na teren działki).
Dom jest zaprojektowany i wykonany w taki sposób, aby kupujący mógł od razu po zakupie przystąpić do jego wykończenia i zamieszkania nie angażując dodatkowych środków oraz czasu.
Chętnie odpowiem na dodatkowe pytania.
ID: 915638270
xxx xxx xxx
Dodane 17 października 2025
Jędrzychów. Nowy bliźniak. Blisko CENTRUM.
896 000 zł
Lokalizacja
Zielona Góra
Lubuskie