Prywatne
Stan: Nowe
Opis
Mam do odsprzedania autorski, zatem jedyny, projekt techniczny domu w ciekawym układzie dwóch brył i funkcjonalnym układzie. Jestem właścicielem praw autorskich na podstawie umowy z architektem, posiadam też OŚWIADCZENIE O PRZENIESIENIU AUTORSKICH PRAW MAJATKOWYCH od architekta. Projekt nie został zrealizowany w tej formie z powodów proceduralnych (różnice w interpretacji zapisów w miejscowym planie zagospodarowania przestrzennego), przystąpiliśmy zatem do zaprojektowana nowego "od zera", ale w zbliżonym układzie i identycznym stylu. Dom jest już w trakcie budowy.
Ideą projektu było stworzenie nowoczesnego budynku o skali dostosowanej do lokalnej zabudowy warmińskiej, wpisującego się w naturalne otoczenie materiałowo i kompozycyjnie. Powstały projekt jest odpowiedzią na potrzeby Inwestorów poszukujących funkcjonalnych i ekologicznych rozwiązań oraz nowoczesnego podejścia do architektury, z poszanowaniem jej tradycyjnej formy.
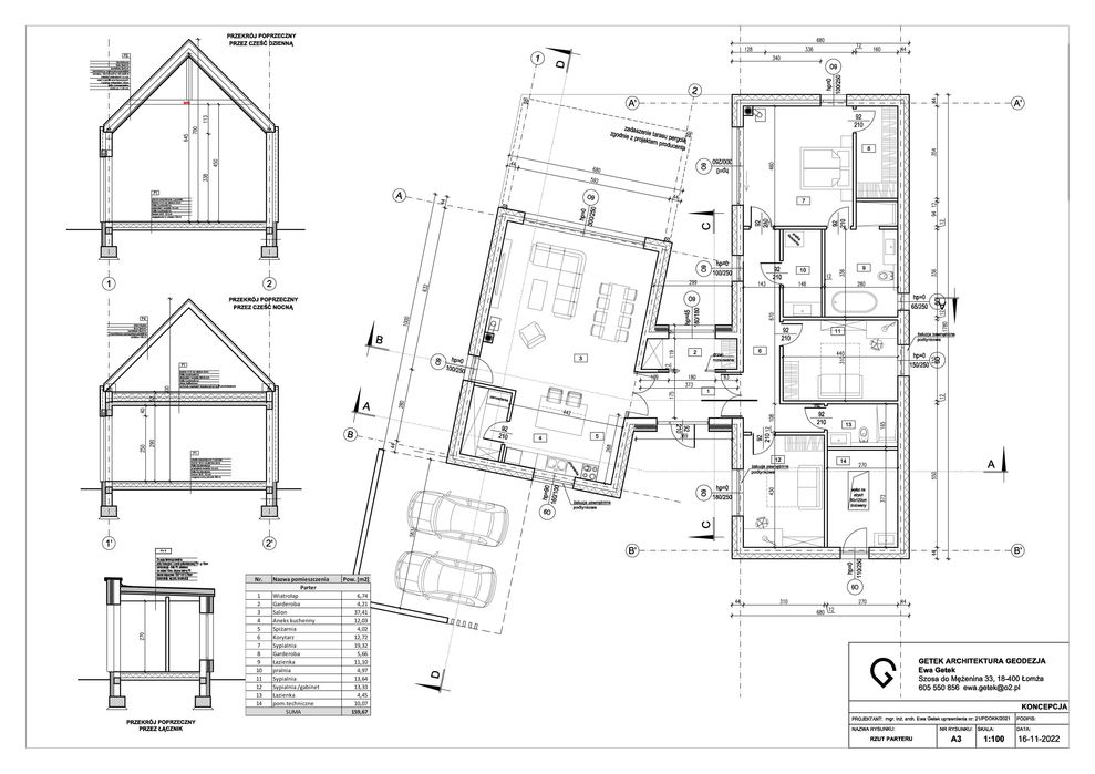
Program funkcjonalny obiektu rozdzielono na część dzienną i nocną. Części te zamknięto w bryłach na planie prostokąta, o powtarzalnych wymiarach elewacji frontowej. Z ograniczeń wynikających z geometrii nieruchomości powstała koncepcja nachylenia ich względem siebie. Dzięki temu powstała spójna, ale niebanalna całość. Pomiędzy bryłami zaprojektowano łącznik – wiatrołap z garderobą odzieży wierzchniej. Główną część stanowi bryła południowa, której kalenicę zaprojektowano prostopadle do linii zabudowy. Północna bryła rozszerzona została o część garażową od frontu obiektu oraz taras zewnętrzny z ekspozycją wschodnią. W projekcie zastosowano system rynny ukrytej, a odprowadzona nim woda opadowa będzie retencjonowana w zbiorniku podziemnym i przeznaczona do ponownego jej wykorzystania na nieruchomości. W tym celu zaprojektowano szczelny zbiornik podziemny o pojemności 9,8m3 w zachodniej części działki. Inwestycja zakłada budowę terenów utwardzonych z kostki granitowej oraz tarasów na gruncie. Inwestycja zakłada budowę miejsc postojowych dla użytkowników budynku.
Ideą projektu było stworzenie nowoczesnego budynku o skali dostosowanej do lokalnej zabudowy warmińskiej, wpisującego się w naturalne otoczenie materiałowo i kompozycyjnie. Powstały projekt jest odpowiedzią na potrzeby Inwestorów poszukujących funkcjonalnych i ekologicznych rozwiązań oraz nowoczesnego podejścia do architektury, z poszanowaniem jej tradycyjnej formy.
Program funkcjonalny obiektu rozdzielono na część dzienną i nocną. Części te zamknięto w bryłach na planie prostokąta, o powtarzalnych wymiarach elewacji frontowej. Z ograniczeń wynikających z geometrii nieruchomości powstała koncepcja nachylenia ich względem siebie. Dzięki temu powstała spójna, ale niebanalna całość. Pomiędzy bryłami zaprojektowano łącznik – wiatrołap z garderobą odzieży wierzchniej. Główną część stanowi bryła południowa, której kalenicę zaprojektowano prostopadle do linii zabudowy. Północna bryła rozszerzona została o część garażową od frontu obiektu oraz taras zewnętrzny z ekspozycją wschodnią. W projekcie zastosowano system rynny ukrytej, a odprowadzona nim woda opadowa będzie retencjonowana w zbiorniku podziemnym i przeznaczona do ponownego jej wykorzystania na nieruchomości. W tym celu zaprojektowano szczelny zbiornik podziemny o pojemności 9,8m3 w zachodniej części działki. Inwestycja zakłada budowę terenów utwardzonych z kostki granitowej oraz tarasów na gruncie. Inwestycja zakłada budowę miejsc postojowych dla użytkowników budynku.
ID: 910832522
xxx xxx xxx
Dodane 02 października 2025
Indywidualny/autorski projekt domu parterowego, 160 m2
13 000 zł
do negocjacji
Lokalizacja