Prywatne
Cena za m²: 2485.71 zł/m²
Rynek: Wtórny
Powierzchnia: 70 m²
Powierzchnia działki: 1 957 m²
Rodzaj zabudowy: Wolnostojący
Liczba pięter: Parterowy
Opis
Dzień dobry,
Na sprzedaż mamy działkę o powierzchni 1957 m2 na której znajdują się 2 budynki. Pierwszy budynek ma okolo 70m2, drugi, gospodarczy ok. 55 m2.
Działka położona jest przy malowniczej rzece Wężnicy i stawie rybnym administrowanym przez Skarb Państwa. Do działki można dostać się z drogi krajowej.
Do działki doprowadzona jest sieć energetyczna, a także woda z wodociągu gminnego. Do działki przynależy szambo bezodpływowe.
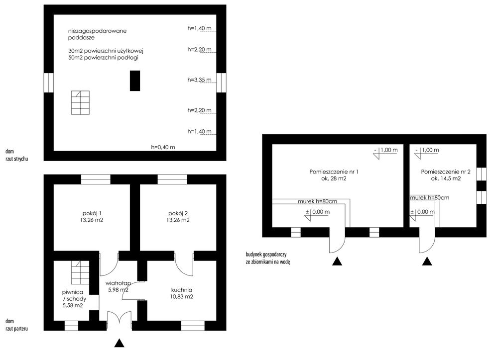
Pierwszy budynek to dom wolnostojący o obrysie w kształcie zbliżonym do kwadratu, który ma powierzchnię zabudowy około 70 m2. Budynek jest parterowy z nieużytkowym strychem. Budynek postawiony został w technologii murowanej, posiada grube, suche mury, które są w dobrym stanie technicznym. Dach jest dwuspadowy i wymaga remontu.
Wewnątrz domu znajdują się następujące pomieszczenia:
Kuchnia - 10,83 m2
Pokój nr 1 – 13,26 m2
Pokój nr 2 – 13,26 m2
Wiatrołap – 5,98 m2
Schody na strych z magazynem częściowo podpiwniczonym – 5,58 m2
Schody prowadzą na niezagospodarowy strych, który po remoncie może stanowić dodatkową powierzchnię użytkową – ok. 30 m2.
Oprócz domu na działce znajduje się budynek gospodarczy o powierzchni zabudowy ok. 55 m2, który kilka lat temu służył do hodowli ryb. Budynek posiada 2 zbiorniki na ryby, jest w dobrym stanie technicznym, można zmienić jego funkcję zostawiając mury i dach. Dach wymieniony parę lat temu, w bardzo dobrym stanie, zarówno konstrukcja drewniana jak i okrycie z papy.
Możliwa również adaptacji przestrzeni pod dachem na poddasze.
Zapraszam do kontaktu
Jerzy
Na sprzedaż mamy działkę o powierzchni 1957 m2 na której znajdują się 2 budynki. Pierwszy budynek ma okolo 70m2, drugi, gospodarczy ok. 55 m2.
Działka położona jest przy malowniczej rzece Wężnicy i stawie rybnym administrowanym przez Skarb Państwa. Do działki można dostać się z drogi krajowej.
Do działki doprowadzona jest sieć energetyczna, a także woda z wodociągu gminnego. Do działki przynależy szambo bezodpływowe.
Pierwszy budynek to dom wolnostojący o obrysie w kształcie zbliżonym do kwadratu, który ma powierzchnię zabudowy około 70 m2. Budynek jest parterowy z nieużytkowym strychem. Budynek postawiony został w technologii murowanej, posiada grube, suche mury, które są w dobrym stanie technicznym. Dach jest dwuspadowy i wymaga remontu.
Wewnątrz domu znajdują się następujące pomieszczenia:
Kuchnia - 10,83 m2
Pokój nr 1 – 13,26 m2
Pokój nr 2 – 13,26 m2
Wiatrołap – 5,98 m2
Schody na strych z magazynem częściowo podpiwniczonym – 5,58 m2
Schody prowadzą na niezagospodarowy strych, który po remoncie może stanowić dodatkową powierzchnię użytkową – ok. 30 m2.
Oprócz domu na działce znajduje się budynek gospodarczy o powierzchni zabudowy ok. 55 m2, który kilka lat temu służył do hodowli ryb. Budynek posiada 2 zbiorniki na ryby, jest w dobrym stanie technicznym, można zmienić jego funkcję zostawiając mury i dach. Dach wymieniony parę lat temu, w bardzo dobrym stanie, zarówno konstrukcja drewniana jak i okrycie z papy.
Możliwa również adaptacji przestrzeni pod dachem na poddasze.
Zapraszam do kontaktu
Jerzy
ID: 998710693
xxx xxx xxx
Dodane 25 października 2025
Gospodarstwo przy rzeczce
174 000 zł
Lokalizacja
Kuźnica Strobińska
Łódzkie