Firmowe
Opis
Sprzedam działkę inwestycyjną z funkcjonującą myjnią bezdotykową i pozwoleniem na stację paliw.
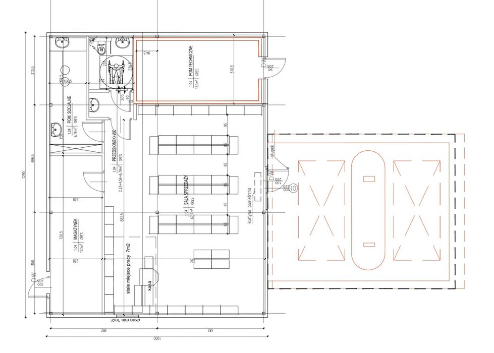
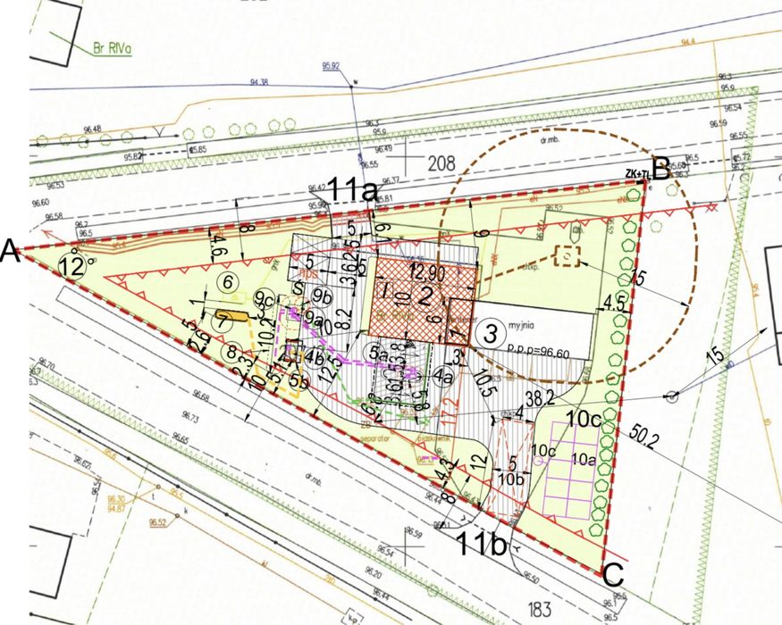
Na sprzedaż działka o powierzchni 2029 m², położona w miejscowości Nowe Miasto, 09-120, w bardzo atrakcyjnej lokalizacji – na rozjeździe dwóch tras: DW 620 i DW 632.
Dodatkowe atuty nieruchomości:
* Działka w kształcie trójkąta, z bezpośrednim zjazdem z obu tras – wjazdy dostosowane do samochodów ciężarowych,
* Na terenie działki funkcjonuje nowoczesna myjnia bezdotykowa z dwoma stanowiskami zadaszonymi i jednym odkrytym,
* Dodatkowo na terenie znajduje się odkurzacz do samochodów,
* Myjnia działa od 3 lat – jest w bardzo dobrym stanie technicznym, gotowa do przejęcia i dalszego prowadzenia działalności,
* Działka sprzedawana jest z aktualnym pozwoleniem na budowę stacji paliw – projekt i zagospodarowanie terenu dostępne w ogłoszeniu (na ostatnich zdjęciach).
* Tuż przy myjni powstaje market spożywczy Biedronka
Idealna propozycja dla inwestora – gotowy, działający biznes z możliwością rozbudowy o stację paliw, w świetnej lokalizacji z dużym ruchem samochodowym.
Na sprzedaż działka o powierzchni 2029 m², położona w miejscowości Nowe Miasto, 09-120, w bardzo atrakcyjnej lokalizacji – na rozjeździe dwóch tras: DW 620 i DW 632.
Dodatkowe atuty nieruchomości:
* Działka w kształcie trójkąta, z bezpośrednim zjazdem z obu tras – wjazdy dostosowane do samochodów ciężarowych,
* Na terenie działki funkcjonuje nowoczesna myjnia bezdotykowa z dwoma stanowiskami zadaszonymi i jednym odkrytym,
* Dodatkowo na terenie znajduje się odkurzacz do samochodów,
* Myjnia działa od 3 lat – jest w bardzo dobrym stanie technicznym, gotowa do przejęcia i dalszego prowadzenia działalności,
* Działka sprzedawana jest z aktualnym pozwoleniem na budowę stacji paliw – projekt i zagospodarowanie terenu dostępne w ogłoszeniu (na ostatnich zdjęciach).
* Tuż przy myjni powstaje market spożywczy Biedronka
Idealna propozycja dla inwestora – gotowy, działający biznes z możliwością rozbudowy o stację paliw, w świetnej lokalizacji z dużym ruchem samochodowym.
ID: 877657527
xxx xxx xxx
Dodane 28 listopada 2025
Działka 2029m2 myjnia bezdotykowa poz. bud. Stacja Paliw Benzynowa LPG
999 000 zł
Lokalizacja
Nowe Miasto
Mazowieckie