Firmowe
Stan: Nowe
Opis
Witam,
na sprzedaż posiadam NOWY domek drewniany, letniskowy
UWAGA: możliwość wykonania wersji CAŁOROCZNEJ
Drewniany domek w konstrukcji szkieletowej to sprawdzona formuła na udany wypoczynek zarówno na prywatnej działce jak i w ośrodku wypoczynkowym. Dzięki antresoli domek jest w stanie zapewnić wypoczynek nawet kilku osobom! Domek można wybudować na zgłoszenie, ponieważ posiada powierzchnię zabudowy mniejszą niż 35 m2.
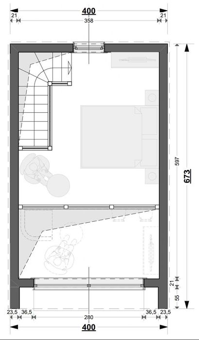
Ten model ma 25 m2 powierzchni części zamkniętej - parteru, plus antresolę o powierzchni około 16 m2 . Na antresoli która jest zabezpieczona balustradą prowadzą wygodne schody zabiegowe. Licząc najbardziej wysuniętą część zadaszenia przed wejściem - domek ma wymiar 400x673 cm. Ściany zostały wykonane w konstrukcji szkieletowej ze świerku skandynawskiego o najlepszej jakości. Drewno zanim zostanie poddane cyfrowej obróbce jest czterostronnie strugane a następnie suszone. Podłoga domku ma 28 mm grubości, a wykonany z tego samego surowca, co ściany legar podwalinowy ma wymiar 45x95 mm. Domek został zwieńczony symetrycznym, dwuspadowym dachem o nachyleniu 45 stopni, który w standardzie jest deskowany deską świerkową o grubości 19 mm.
Wymiar z el. wystającymi: 400x673 cm
Wymiar bez el. wystających: 400x600 cm
Grubość ściany: 19 + 140 mm
Wysokość ściany: 250 cm
Wysokość w szczycie: 600 cm
Powierzchnia zabudowy: 25 m2
Powierzchnia dachu: 45 m2
Kubatura konstrukcji: -
Kąt nachylenia dachu: 45o
Wypust dachu: 55 cm
Grubość deski dachowej: 19 mm
Grubosć deski podłogowej: 28 mm
Wymiar belki podwalinowej: 45x95 mm
Ilość drzwi: 1x 1000x2150 mm, 1x 800x2000 mm
Ilość okien nieotwieralnych: 2x 900x2150 mm, 1x 800x2100 mm, 2x 1400x2000 mm
Ilość okien uchylnych: -
Ilość okien rozwieranych: -
Ilość okien uch. rozw.: 1x 900x2050 mm
Cena domku to oferta do samodzielnego montażu
Dodatkowo płatne - zapraszamy do kontaktu na biuro(małpa)domkiletniskowe.org:
Montaż
Malowanie zewnętrzne
Pokrycie dachu
Ocieplenie podłogi
Ocieplenie ścian
Ocieplenie dachu
Rynny
Okiennice
Instalacja elektryczna
Instalacja WOD-KAN
Przygotowanie podłoża (fundamentu)
Wymiana stolarki na PVC
Transport
www.domkiletniskowe.org
WOODPOL Michał Chrzan
Julianpol 81B,
46-325 Rudniki
www.domkiletniskowe.org
na sprzedaż posiadam NOWY domek drewniany, letniskowy
UWAGA: możliwość wykonania wersji CAŁOROCZNEJ
Drewniany domek w konstrukcji szkieletowej to sprawdzona formuła na udany wypoczynek zarówno na prywatnej działce jak i w ośrodku wypoczynkowym. Dzięki antresoli domek jest w stanie zapewnić wypoczynek nawet kilku osobom! Domek można wybudować na zgłoszenie, ponieważ posiada powierzchnię zabudowy mniejszą niż 35 m2.
Ten model ma 25 m2 powierzchni części zamkniętej - parteru, plus antresolę o powierzchni około 16 m2 . Na antresoli która jest zabezpieczona balustradą prowadzą wygodne schody zabiegowe. Licząc najbardziej wysuniętą część zadaszenia przed wejściem - domek ma wymiar 400x673 cm. Ściany zostały wykonane w konstrukcji szkieletowej ze świerku skandynawskiego o najlepszej jakości. Drewno zanim zostanie poddane cyfrowej obróbce jest czterostronnie strugane a następnie suszone. Podłoga domku ma 28 mm grubości, a wykonany z tego samego surowca, co ściany legar podwalinowy ma wymiar 45x95 mm. Domek został zwieńczony symetrycznym, dwuspadowym dachem o nachyleniu 45 stopni, który w standardzie jest deskowany deską świerkową o grubości 19 mm.
Wymiar z el. wystającymi: 400x673 cm
Wymiar bez el. wystających: 400x600 cm
Grubość ściany: 19 + 140 mm
Wysokość ściany: 250 cm
Wysokość w szczycie: 600 cm
Powierzchnia zabudowy: 25 m2
Powierzchnia dachu: 45 m2
Kubatura konstrukcji: -
Kąt nachylenia dachu: 45o
Wypust dachu: 55 cm
Grubość deski dachowej: 19 mm
Grubosć deski podłogowej: 28 mm
Wymiar belki podwalinowej: 45x95 mm
Ilość drzwi: 1x 1000x2150 mm, 1x 800x2000 mm
Ilość okien nieotwieralnych: 2x 900x2150 mm, 1x 800x2100 mm, 2x 1400x2000 mm
Ilość okien uchylnych: -
Ilość okien rozwieranych: -
Ilość okien uch. rozw.: 1x 900x2050 mm
Cena domku to oferta do samodzielnego montażu
Dodatkowo płatne - zapraszamy do kontaktu na biuro(małpa)domkiletniskowe.org:
Montaż
Malowanie zewnętrzne
Pokrycie dachu
Ocieplenie podłogi
Ocieplenie ścian
Ocieplenie dachu
Rynny
Okiennice
Instalacja elektryczna
Instalacja WOD-KAN
Przygotowanie podłoża (fundamentu)
Wymiana stolarki na PVC
Transport
www.domkiletniskowe.org
WOODPOL Michał Chrzan
Julianpol 81B,
46-325 Rudniki
www.domkiletniskowe.org
ID: 983444712
xxx xxx xxx

