Firmowe
Stan: Nowe
Opis
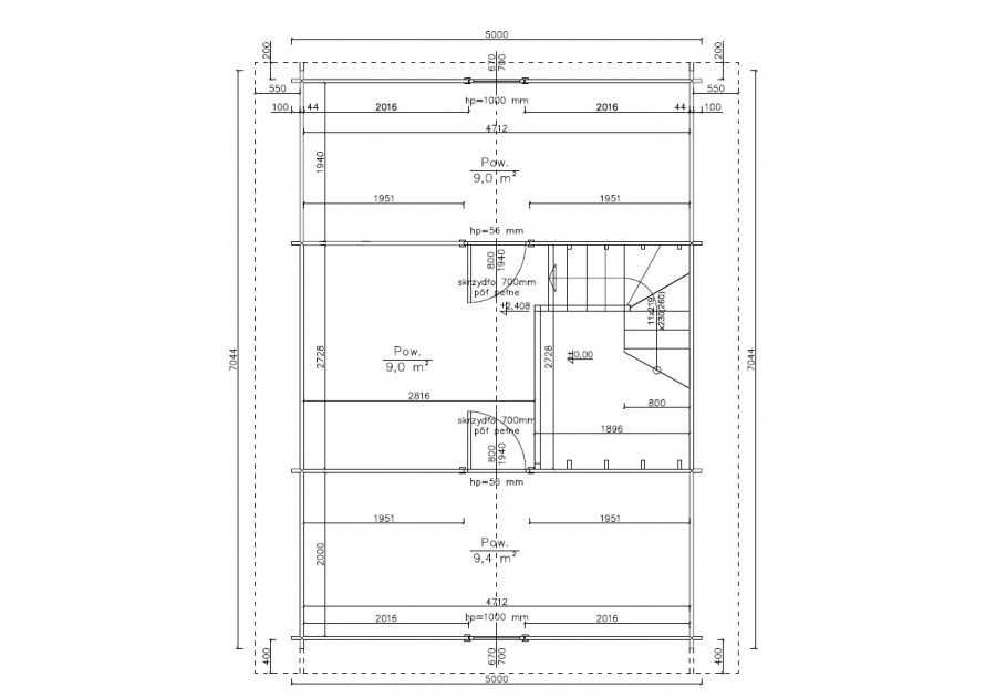
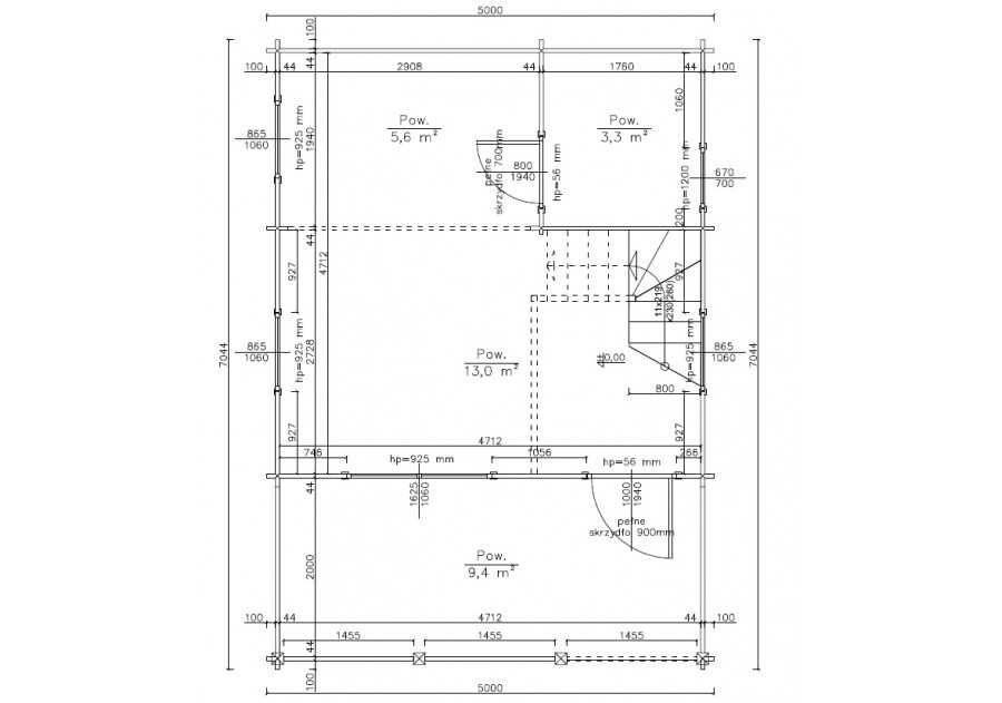
Domek letniskowy IBIZA2 5,0m x7,0 m posiada cztery pomieszczeń i taras. Przeznaczony do ogrodu lub na działkę. Świetnie sprawdzi się jako miejsce do wypoczynku z rodziną lub przyjaciółmi. Domek solidny, wykonany z drewna świerkowego.
Miejsce pod domek: wylewka, kostka brukowa lub bloczki. Ponadto teren pod domek powinien być wypoziomowany, utwardzony, wyrównany, wolny od trawy, chwastów czy krzaków.
Dane techniczne:
Rozmiar zewnętrzny (m): 5,0x7,04
Rozmiar wewnętrzny (m): 4,71x6,75
Materiał naturalny: Nordic świerk
Grubość ściany (mm): 44
Powierzchnia domku (m2): 22,0 + 27,4=49,4
Deski dachowe (mm): 19
Powierzchnia dachu (m2): 51,0
Wypust dachu (m): 0,40
Pokrycia dachu: brak (opcja dodatkowa)
Taras (m): 4,71x2,0
Powierzchnia tarasu(m2): 9,4
Piętro (m): 4,71x6,75
Powierzchnia piętra (m2): 27,4
Wysokość ściany bocznej (m): 3,38
Wysokość w szczycie (m): 4,96
Kąt dachu: 30 stopni
Drzwi zewnętrzne wymiar (cm): 90x194
3 x Drzwi wewnętrzne wymiar (cm): 70x194
6 x Okna wymiar (cm):
- 5szt 85x108,
- 2szt 67x70
Schody zabiegowe
Podwaliny (legary): Tak nie impregnowane
Podłoga (mm): 28
Okiena z szybą zespoloną uchylno/rozwierane w technologii ECO-ISO
Na specjalne życzenie klienta możemy wykonać również następujące usługi:
- Montaż domku
- Montaż podłogi
- Pokrycie dachu gontem bitumicznym
- Impregnacja domku
- Montaż rynien
- Ocieplenie podłogi
- Ocieplenie dachu
- Przeróbka drzwi z przeszklonych na pełne
- Dodatkowe okno pojedyńcze lub podwójne
Wiele różnych modeli na naszej stronie internetowej:
www.domki-sodas.pl
STAŁA EKSPOZYCJA:
0 5 - 0 7 4 Wielgolas Duchnowski
ul. Inżynierska 5
Zapraszamy!!!
www.domki-sodas.pl
FILMY Z DOMKAMI Z NASZEJ OFERTY: https:// www.youtube.com/channel/UCjmWdOB2b76eDC1mMI34CMw/
Mamy to, czego potrzebuje Twój ogród…
Zapraszamy!
Miejsce pod domek: wylewka, kostka brukowa lub bloczki. Ponadto teren pod domek powinien być wypoziomowany, utwardzony, wyrównany, wolny od trawy, chwastów czy krzaków.
Dane techniczne:
Rozmiar zewnętrzny (m): 5,0x7,04
Rozmiar wewnętrzny (m): 4,71x6,75
Materiał naturalny: Nordic świerk
Grubość ściany (mm): 44
Powierzchnia domku (m2): 22,0 + 27,4=49,4
Deski dachowe (mm): 19
Powierzchnia dachu (m2): 51,0
Wypust dachu (m): 0,40
Pokrycia dachu: brak (opcja dodatkowa)
Taras (m): 4,71x2,0
Powierzchnia tarasu(m2): 9,4
Piętro (m): 4,71x6,75
Powierzchnia piętra (m2): 27,4
Wysokość ściany bocznej (m): 3,38
Wysokość w szczycie (m): 4,96
Kąt dachu: 30 stopni
Drzwi zewnętrzne wymiar (cm): 90x194
3 x Drzwi wewnętrzne wymiar (cm): 70x194
6 x Okna wymiar (cm):
- 5szt 85x108,
- 2szt 67x70
Schody zabiegowe
Podwaliny (legary): Tak nie impregnowane
Podłoga (mm): 28
Okiena z szybą zespoloną uchylno/rozwierane w technologii ECO-ISO
Na specjalne życzenie klienta możemy wykonać również następujące usługi:
- Montaż domku
- Montaż podłogi
- Pokrycie dachu gontem bitumicznym
- Impregnacja domku
- Montaż rynien
- Ocieplenie podłogi
- Ocieplenie dachu
- Przeróbka drzwi z przeszklonych na pełne
- Dodatkowe okno pojedyńcze lub podwójne
Wiele różnych modeli na naszej stronie internetowej:
www.domki-sodas.pl
STAŁA EKSPOZYCJA:
0 5 - 0 7 4 Wielgolas Duchnowski
ul. Inżynierska 5
Zapraszamy!!!
www.domki-sodas.pl
FILMY Z DOMKAMI Z NASZEJ OFERTY: https:// www.youtube.com/channel/UCjmWdOB2b76eDC1mMI34CMw/
Mamy to, czego potrzebuje Twój ogród…
Zapraszamy!
ID: 751391722
xxx xxx xxx

