Firmowe
Stan: Nowe
Opis
Witam,
na sprzedaż posiadam NOWY domek drewniany, letniskowy HORYZONT
UWAGA: możliwość wykonania wersji CAŁOROCZNEJ
Horyzont to nowy model, który został zaprojektowany na podstawie naszego najpopularniejszego domku Jan III. Unowocześniony w modne lamele oraz mocno przeszklony front doskonale dopasował się w dzisiejsze standardy domku typu stodoła.
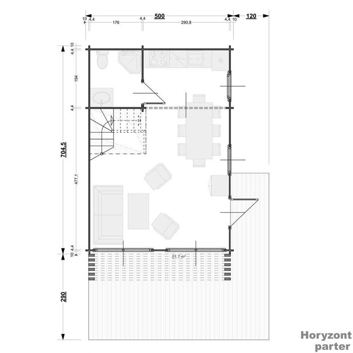
Horyzont został wykonany z litego bala świerkowego, jego wymiary bez wypustów to 684,3x480 cm, dzięki czemu niecałe 33 m2 ułatwiają procedurę zgłoszonego budynku. Dwuspadowy dach domku o powierzchni 51 m2 pokryty został deską o grubości 19 mm oraz ma kąt nachylenia 30 stopni. Horyzont w linii szczytowej sięga 482 cm. W pomieszczeniach, których ściany mają grubość 44 mm, wysokość wynosi 250 cm. Taras w kształcie litery L odznacza się powierzchnią 21,7 m2. Wejście znajduje się na bocznej części tarasu, z którego kierujemy się wprost do głównego pomieszczenia, dzieli się ono na większą otwartą przestrzeń oraz mniejszą zamkniętą, która sprawdzi się znakomicie w roli przytulnej łazienki. Dwa dwuskrzydłowe okna balkonowe na froncie o wymiarach 1900x2049 mm oraz dwa na bocznej elewacji okna jednoskrzydłowe 900x2049 mm doskonale rozświetlają wnętrze, którego duża powierzchnia umożliwia aranżację na kuchnię, część jadalną oraz salon. W rogu znajdują się schody prowadzące na piętro, które składa się z dwóch dużych sypialni, jedna z nich posiada wysokie okno balkonowe o wymiarach 900x2049 mm, a druga duże okna w kształcie trapezów prostokątnych o wymiarach 1900x1900 mm. Dopełnieniem na górze jest niewielka otwarta przestrzeń między pokojami, którą można zaaranżować na schowek.
Wymiar z el. wystającymi: 500x704,3 cm
Wymiar bez el. wystających: 480x684,3 cm
Grubość ściany: 44 mm
Wysokość ściany: 250 cm
Wysokość w szczycie: 521 cm
Powierzchnia zabudowy: 65 + 21 m2
Powierzchnia dachu: 51 m2
Kubatura konstrukcji: -
Kąt nachylenia dachu: 30o
Wypust dachu: 40 cm
Grubość deski dachowej: 19 mm
Grubosć deski podłogowej: 28 mm
Wymiar belki podwalinowej: 45x95 mm
Ilość drzwi: 1x 900x2050 mm, 3x 800x2050 mm
Ilość okien nieotwieralnych: 2x 900x2050mm (ISO), 2x 1900x1900 mm
Ilość okien uchylnych: -
Ilość okien rozwieranych: -
Ilość okien uch. rozw.: 1x 900x2050 mm (ISO)
Ilość podw. okien uch. rozw.: 2x 1900x2050 mm (ISO)
Cena domku to oferta do samodzielnego montażu
Dodatkowo płatne - zapraszamy do kontaktu na biuro(małpa)domkiletniskowe.org:
Montaż
Malowanie zewnętrzne
Pokrycie dachu
Ocieplenie podłogi
Ocieplenie ścian
Ocieplenie dachu
Rynny
Okiennice
Instalacja elektryczna
Instalacja WOD-KAN
Przygotowanie podłoża (fundamentu)
Wymiana stolarki na PVC trzyszybową
Transport
www.domkiletniskowe.org
WOODPOL Michał Chrzan
Julianpol 81B,
46-325 Rudniki
www.domkiletniskowe.org
na sprzedaż posiadam NOWY domek drewniany, letniskowy HORYZONT
UWAGA: możliwość wykonania wersji CAŁOROCZNEJ
Horyzont to nowy model, który został zaprojektowany na podstawie naszego najpopularniejszego domku Jan III. Unowocześniony w modne lamele oraz mocno przeszklony front doskonale dopasował się w dzisiejsze standardy domku typu stodoła.
Horyzont został wykonany z litego bala świerkowego, jego wymiary bez wypustów to 684,3x480 cm, dzięki czemu niecałe 33 m2 ułatwiają procedurę zgłoszonego budynku. Dwuspadowy dach domku o powierzchni 51 m2 pokryty został deską o grubości 19 mm oraz ma kąt nachylenia 30 stopni. Horyzont w linii szczytowej sięga 482 cm. W pomieszczeniach, których ściany mają grubość 44 mm, wysokość wynosi 250 cm. Taras w kształcie litery L odznacza się powierzchnią 21,7 m2. Wejście znajduje się na bocznej części tarasu, z którego kierujemy się wprost do głównego pomieszczenia, dzieli się ono na większą otwartą przestrzeń oraz mniejszą zamkniętą, która sprawdzi się znakomicie w roli przytulnej łazienki. Dwa dwuskrzydłowe okna balkonowe na froncie o wymiarach 1900x2049 mm oraz dwa na bocznej elewacji okna jednoskrzydłowe 900x2049 mm doskonale rozświetlają wnętrze, którego duża powierzchnia umożliwia aranżację na kuchnię, część jadalną oraz salon. W rogu znajdują się schody prowadzące na piętro, które składa się z dwóch dużych sypialni, jedna z nich posiada wysokie okno balkonowe o wymiarach 900x2049 mm, a druga duże okna w kształcie trapezów prostokątnych o wymiarach 1900x1900 mm. Dopełnieniem na górze jest niewielka otwarta przestrzeń między pokojami, którą można zaaranżować na schowek.
Wymiar z el. wystającymi: 500x704,3 cm
Wymiar bez el. wystających: 480x684,3 cm
Grubość ściany: 44 mm
Wysokość ściany: 250 cm
Wysokość w szczycie: 521 cm
Powierzchnia zabudowy: 65 + 21 m2
Powierzchnia dachu: 51 m2
Kubatura konstrukcji: -
Kąt nachylenia dachu: 30o
Wypust dachu: 40 cm
Grubość deski dachowej: 19 mm
Grubosć deski podłogowej: 28 mm
Wymiar belki podwalinowej: 45x95 mm
Ilość drzwi: 1x 900x2050 mm, 3x 800x2050 mm
Ilość okien nieotwieralnych: 2x 900x2050mm (ISO), 2x 1900x1900 mm
Ilość okien uchylnych: -
Ilość okien rozwieranych: -
Ilość okien uch. rozw.: 1x 900x2050 mm (ISO)
Ilość podw. okien uch. rozw.: 2x 1900x2050 mm (ISO)
Cena domku to oferta do samodzielnego montażu
Dodatkowo płatne - zapraszamy do kontaktu na biuro(małpa)domkiletniskowe.org:
Montaż
Malowanie zewnętrzne
Pokrycie dachu
Ocieplenie podłogi
Ocieplenie ścian
Ocieplenie dachu
Rynny
Okiennice
Instalacja elektryczna
Instalacja WOD-KAN
Przygotowanie podłoża (fundamentu)
Wymiana stolarki na PVC trzyszybową
Transport
www.domkiletniskowe.org
WOODPOL Michał Chrzan
Julianpol 81B,
46-325 Rudniki
www.domkiletniskowe.org
ID: 983424530
xxx xxx xxx

