Firmowe
Stan: Nowe
Opis
Witam,
na sprzedaż posiadam NOWY domek drewniany, letniskowy
UWAGA: możliwość wykonania wersji CAŁOROCZNEJ
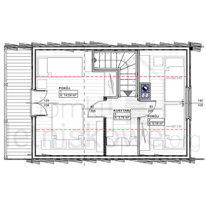
Drewniany domek letniskowy z poddaszem użytkowym Alicja doskonale sprawdzi się jako domek letni na działce rekreacyjnej lub domek na wynajem w ośrodku wypoczynkowym. Pięć pomieszczeń, taras i balkon umożliwią komfortowy wypoczynek dla kilku osób. Równa 35 m2 powierzchnia zabudowy umożliwia budowę bez pozwolenia.
Ściany Alicji zostały wykonane z grubych na 58 milimetrów litych bali świerkowych, co sprawia, że całość konstrukcji jest stabilna i daje bardzo dobre możliwości modyfikacji. Ściany parteru są wysokie na 232 cm, a na poddaszu w najwyższym punkcie mierzą 282 cm. Razem z wypustami ścian i tarasem Alicja ma wymiar 970x530 cm, bez tarasu i wypustów 700x500 cm. Dach domku jest dwuspadowy. Ma 45 stopni nachylenia, symetryczną budowę i powierzchnię równą 77 m2. Alicja w najwyższym punkcie mierzy 625 cm. Dach został wykonany z deski o grubości 19 mm, a podłoga 28 mm. Dodatkowo, domek został oddzielony od podłoża belkami podwalinowymi o profilu 45x95 mm.
Wymiar z el. wystającymi: 970x530 cm
Wymiar bez el. wystających: 940x500 cm
Grubość ściany: 58 mm
Wysokość ściany: 232 cm
Wysokość w szczycie: 625 cm
Powierzchnia zabudowy: 35 + 12 m2 (parter), 27 + 6 m2 (poddasze)
Powierzchnia dachu: 77,2 m2
Kubatura konstrukcji: -
Kąt nachylenia dachu: 45o
Wypust dachu: 120 cm
Grubość deski dachowej: 19 mm
Grubosć deski podłogowej: 28 mm
Wymiar belki podwalinowej: 45x95 mm
Ilość drzwi: 1x 1200x2000 mm, 2x 1300x2100 mm, 3x 800x2050 mm
Ilość okien nieotwieralnych: -
Ilość okien uchylnych: -
Ilość okien rozwieranych: 1x 550x550 mm
Ilość okien uch. rozw.: -
Ilość podw. okien uch. rozw.: 2x 1600x1080 mm, 1x 1400x1080 mm
Cena domku to oferta do samodzielnego montażu
Dodatkowo płatne - zapraszamy do kontaktu na biuro(małpa)domkiletniskowe.org:
Montaż
Malowanie zewnętrzne
Pokrycie dachu
Ocieplenie podłogi
Ocieplenie ścian
Ocieplenie dachu
Rynny
Okiennice
Instalacja elektryczna
Instalacja WOD-KAN
Przygotowanie podłoża (fundamentu)
Wymiana stolarki na PVC
Transport
www.domkiletniskowe.org
WOODPOL Michał Chrzan
Julianpol 81B,
46-325 Rudniki
www.domkiletniskowe.org
na sprzedaż posiadam NOWY domek drewniany, letniskowy
UWAGA: możliwość wykonania wersji CAŁOROCZNEJ
Drewniany domek letniskowy z poddaszem użytkowym Alicja doskonale sprawdzi się jako domek letni na działce rekreacyjnej lub domek na wynajem w ośrodku wypoczynkowym. Pięć pomieszczeń, taras i balkon umożliwią komfortowy wypoczynek dla kilku osób. Równa 35 m2 powierzchnia zabudowy umożliwia budowę bez pozwolenia.
Ściany Alicji zostały wykonane z grubych na 58 milimetrów litych bali świerkowych, co sprawia, że całość konstrukcji jest stabilna i daje bardzo dobre możliwości modyfikacji. Ściany parteru są wysokie na 232 cm, a na poddaszu w najwyższym punkcie mierzą 282 cm. Razem z wypustami ścian i tarasem Alicja ma wymiar 970x530 cm, bez tarasu i wypustów 700x500 cm. Dach domku jest dwuspadowy. Ma 45 stopni nachylenia, symetryczną budowę i powierzchnię równą 77 m2. Alicja w najwyższym punkcie mierzy 625 cm. Dach został wykonany z deski o grubości 19 mm, a podłoga 28 mm. Dodatkowo, domek został oddzielony od podłoża belkami podwalinowymi o profilu 45x95 mm.
Wymiar z el. wystającymi: 970x530 cm
Wymiar bez el. wystających: 940x500 cm
Grubość ściany: 58 mm
Wysokość ściany: 232 cm
Wysokość w szczycie: 625 cm
Powierzchnia zabudowy: 35 + 12 m2 (parter), 27 + 6 m2 (poddasze)
Powierzchnia dachu: 77,2 m2
Kubatura konstrukcji: -
Kąt nachylenia dachu: 45o
Wypust dachu: 120 cm
Grubość deski dachowej: 19 mm
Grubosć deski podłogowej: 28 mm
Wymiar belki podwalinowej: 45x95 mm
Ilość drzwi: 1x 1200x2000 mm, 2x 1300x2100 mm, 3x 800x2050 mm
Ilość okien nieotwieralnych: -
Ilość okien uchylnych: -
Ilość okien rozwieranych: 1x 550x550 mm
Ilość okien uch. rozw.: -
Ilość podw. okien uch. rozw.: 2x 1600x1080 mm, 1x 1400x1080 mm
Cena domku to oferta do samodzielnego montażu
Dodatkowo płatne - zapraszamy do kontaktu na biuro(małpa)domkiletniskowe.org:
Montaż
Malowanie zewnętrzne
Pokrycie dachu
Ocieplenie podłogi
Ocieplenie ścian
Ocieplenie dachu
Rynny
Okiennice
Instalacja elektryczna
Instalacja WOD-KAN
Przygotowanie podłoża (fundamentu)
Wymiana stolarki na PVC
Transport
www.domkiletniskowe.org
WOODPOL Michał Chrzan
Julianpol 81B,
46-325 Rudniki
www.domkiletniskowe.org
ID: 983474990
xxx xxx xxx

