Firmowe
Stan: Nowe
Opis
DREWNIANY DOMEK CAŁOROCZNY HORYZONT 65 + 21 M2
Podstawowe informacje:
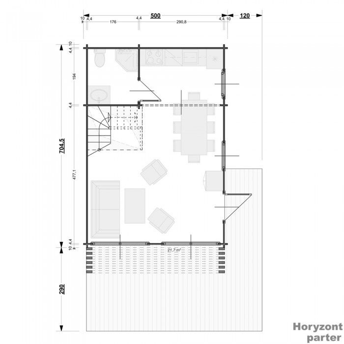
Powierzchnia całkowita: 65 m2 + 21 m2
Powierzchnia wewnątrz domku: 65 m2
Powierzchnia tarasu: 21 m2
Grubość bala: 44 mm
Wysokość w szczycie: 482 cm
Ilość drzwi: 1x 900x2050 mm, 3x 800x2050 mm
Ilość okien nieotwieralnych: 2x 900x2050mm (ISO), 2x 1900x1900 mm
Ilość okien uch. rozw.: 1x 900x2050 mm (ISO)
Ilość podw. okien uch. rozw.: 2x 1900x2050 mm (ISO)
Grubość deski dachowej: 19 mm
Grubość deski podłogowej: 28 mm
Horyzont to nowy model, który został zaprojektowany na podstawie naszego najpopularniejszego domku Jan III. Unowocześniony w modne lamele oraz mocno przeszklony front doskonale dopasował się w dzisiejsze standardy domku typu stodoła. Powierzchnia do 35 m2 pozwala na budowę domku bez pozwolenia.
Horyzont został wykonany z litego bala świerkowego, jego wymiary bez wypustów to 684,3x480 cm, dzięki czemu niecałe 33 m2 ułatwiają procedurę zgłoszonego budynku. Dwuspadowy dach domku o powierzchni 51 m2 pokryty został deską o grubości 19 mm oraz ma kąt nachylenia 30 stopni. Horyzont w linii szczytowej sięga 482 cm. W pomieszczeniach, których ściany mają grubość 44 mm, wysokość wynosi 250 cm. Taras w kształcie litery L odznacza się powierzchnią 21,7 m2. Wejście znajduje się na bocznej części tarasu, z którego kierujemy się wprost do głównego pomieszczenia, dzieli się ono na większą otwartą przestrzeń oraz mniejszą zamkniętą, która sprawdzi się znakomicie w roli przytulnej łazienki. Dwa dwuskrzydłowe okna balkonowe na froncie o wymiarach 1900x2049 mm oraz dwa na bocznej elewacji okna jednoskrzydłowe 900x2049 mm doskonale rozświetlają wnętrze, którego duża powierzchnia umożliwia aranżację na kuchnię, część jadalną oraz salon. W rogu znajdują się schody prowadzące na piętro, które składa się z dwóch dużych sypialni, jedna z nich posiada wysokie okno balkonowe o wymiarach 900x2049 mm, a druga duże okna w kształcie trapezów prostokątnych o wymiarach 1900x1900 mm. Dopełnieniem na górze jest niewielka otwarta przestrzeń między pokojami, którą można zaaranżować na schowek.
Posiadamy również szeroką gamę usług dodatkowych dostosowaną do indywidualnych potrzeb naszych klientów.
Uwaga! W cenie Horyzontu w wersji całorocznej nie mieści się fundament, instalacja elektryczna oraz instalacja wodno-kanalizacyjna.
–Montaż
Montaż z impregnacją legarów – W CENIE
–Malowanie zewnętrzne
Dwukrotne Remmers HK Lasur/Grey Protect – W CENIE
–Pokrycie dachu
Blacha na rąbek – W CENIE
–Ocieplenie podłogi
Wełna 150 mm – W CENIE
–Ocieplenie ścian od zewnątrz
Wełna 150 mm – W CENIE
–Ocieplenie dachu
Wełna 150 mm – W CENIE
–Rynny
Rynny stalowe – W CENIE
–Obicie ścian blachą
Obicie ścian blachą na rąbek- W CENIE
Transport DO 600 km- W CENIE
Najważniejsze cechy:
Nowoczesny design
Duże przeszklenia oraz modne lamele
Duży taras w kształcie litery L
Przestronne pomieszczenia
Pokrycie dachu blachą na rąbek Retro 38
Wersja całoroczna
Bez pozwolenia budowlanego
Wykonane z wysokiej klasy świerku
24-miesięczna gwarancja
Zdjęcia i wizualizacja na stronie mają charakter wyłącznie poglądowy
Gwarantujemy krótkie terminy oraz najwyższą jakość realizacji usług.
UWAGA! Wysyłka cała polska
Transport - jest liczony indywidualnie w zależności od lokalizacji i ilości zamówionych domków.
Inne modyfikacje - zmiana szerokości pomieszczeń, rezygnacja z pomieszczenia, okna czy innych elementów konstrukcji - liczone indywidualnie.
Podstawowe informacje:
Powierzchnia całkowita: 65 m2 + 21 m2
Powierzchnia wewnątrz domku: 65 m2
Powierzchnia tarasu: 21 m2
Grubość bala: 44 mm
Wysokość w szczycie: 482 cm
Ilość drzwi: 1x 900x2050 mm, 3x 800x2050 mm
Ilość okien nieotwieralnych: 2x 900x2050mm (ISO), 2x 1900x1900 mm
Ilość okien uch. rozw.: 1x 900x2050 mm (ISO)
Ilość podw. okien uch. rozw.: 2x 1900x2050 mm (ISO)
Grubość deski dachowej: 19 mm
Grubość deski podłogowej: 28 mm
Horyzont to nowy model, który został zaprojektowany na podstawie naszego najpopularniejszego domku Jan III. Unowocześniony w modne lamele oraz mocno przeszklony front doskonale dopasował się w dzisiejsze standardy domku typu stodoła. Powierzchnia do 35 m2 pozwala na budowę domku bez pozwolenia.
Horyzont został wykonany z litego bala świerkowego, jego wymiary bez wypustów to 684,3x480 cm, dzięki czemu niecałe 33 m2 ułatwiają procedurę zgłoszonego budynku. Dwuspadowy dach domku o powierzchni 51 m2 pokryty został deską o grubości 19 mm oraz ma kąt nachylenia 30 stopni. Horyzont w linii szczytowej sięga 482 cm. W pomieszczeniach, których ściany mają grubość 44 mm, wysokość wynosi 250 cm. Taras w kształcie litery L odznacza się powierzchnią 21,7 m2. Wejście znajduje się na bocznej części tarasu, z którego kierujemy się wprost do głównego pomieszczenia, dzieli się ono na większą otwartą przestrzeń oraz mniejszą zamkniętą, która sprawdzi się znakomicie w roli przytulnej łazienki. Dwa dwuskrzydłowe okna balkonowe na froncie o wymiarach 1900x2049 mm oraz dwa na bocznej elewacji okna jednoskrzydłowe 900x2049 mm doskonale rozświetlają wnętrze, którego duża powierzchnia umożliwia aranżację na kuchnię, część jadalną oraz salon. W rogu znajdują się schody prowadzące na piętro, które składa się z dwóch dużych sypialni, jedna z nich posiada wysokie okno balkonowe o wymiarach 900x2049 mm, a druga duże okna w kształcie trapezów prostokątnych o wymiarach 1900x1900 mm. Dopełnieniem na górze jest niewielka otwarta przestrzeń między pokojami, którą można zaaranżować na schowek.
Posiadamy również szeroką gamę usług dodatkowych dostosowaną do indywidualnych potrzeb naszych klientów.
Uwaga! W cenie Horyzontu w wersji całorocznej nie mieści się fundament, instalacja elektryczna oraz instalacja wodno-kanalizacyjna.
–Montaż
Montaż z impregnacją legarów – W CENIE
–Malowanie zewnętrzne
Dwukrotne Remmers HK Lasur/Grey Protect – W CENIE
–Pokrycie dachu
Blacha na rąbek – W CENIE
–Ocieplenie podłogi
Wełna 150 mm – W CENIE
–Ocieplenie ścian od zewnątrz
Wełna 150 mm – W CENIE
–Ocieplenie dachu
Wełna 150 mm – W CENIE
–Rynny
Rynny stalowe – W CENIE
–Obicie ścian blachą
Obicie ścian blachą na rąbek- W CENIE
Transport DO 600 km- W CENIE
Najważniejsze cechy:
Nowoczesny design
Duże przeszklenia oraz modne lamele
Duży taras w kształcie litery L
Przestronne pomieszczenia
Pokrycie dachu blachą na rąbek Retro 38
Wersja całoroczna
Bez pozwolenia budowlanego
Wykonane z wysokiej klasy świerku
24-miesięczna gwarancja
Zdjęcia i wizualizacja na stronie mają charakter wyłącznie poglądowy
Gwarantujemy krótkie terminy oraz najwyższą jakość realizacji usług.
UWAGA! Wysyłka cała polska
Transport - jest liczony indywidualnie w zależności od lokalizacji i ilości zamówionych domków.
Inne modyfikacje - zmiana szerokości pomieszczeń, rezygnacja z pomieszczenia, okna czy innych elementów konstrukcji - liczone indywidualnie.
ID: 871394395
xxx xxx xxx
Dodane 08 grudnia 2025
Drewniany Domek Całoroczny HORYZONT 65 + 21 M2
232 000 zł
Lokalizacja
