Prywatne
Cena za m²: 5373.93 zł/m²
Rynek: Pierwotny
Powierzchnia: 124,49 m²
Powierzchnia działki: 1 213 m²
Rodzaj zabudowy: Bliźniak
Liczba pięter: Parterowy z użytkowym poddaszem
Opis
Na sprzedaż komfortowy dom w Dzierżążnie – idealny dla rodziny!
Oferuję na sprzedaż dom jednorodzinny w zabudowie bliźniaczej o powierzchni 124,49 m² położony w malowniczej miejscowości Dzierżążno, w otoczeniu jezior i lasów, a jednocześnie z doskonałym dojazdem do Gdańska, Kartuz i całego Trójmiasta.
Do każdego domu przynależy prywatny ogródek o pow. od 90 m2 do 180 m2.
Auty inwestycji:
Położenie: Bliskość do Kaszubskiego Parku Krajobrazowego, jezior (Jezioro Dzierżąskie i Mezowskie Małe), lasów - idealne dla osób ceniących aktywny wypoczynek.
Spokojna okolica – spokojna, zielona okolica z dala od miejskiego zgiełku, a jednocześnie z dobrym dojazdem do Gdańska, Kartuz i Trójmiasta. Zabudowa jednorodzinna, przyjazne otoczenie i kameralny charakter mogą być zaletą dla osób szukających ciszy i spokoju.
Infrastruktura: Posiadanie stacji kolejowej, co ułatwia dojazd do większych miast.
Nowoczesne rozwiązania – solidne materiały, energooszczędne instalacje i estetyczne wykończenie.
LOKALIZACJA:
Inwestycja realizowana jest w atrakcyjnej lokalizacji przy ul. Kartuskiej bardzo blisko centrum Dzierzążna.
Przykładowe odległości:
- szkoła podstawowa – 5 minut pieszo,
- stacja PKP – 10 minut pieszo,
- sklep spożywczy - 400 metrów,
- Gdańsk – 25 minut autem
- Kartuzy – 5 minut autem,
Możliwość zakupu przez obcokrajowców bez zezwolenia Ministerstwa Spraw Wewnętrznych i Administracji.
Niewątpliwym atutem nieruchomości jest niewielka odległość dwóch malowniczych jezior:
Jezioro Dzierżąskie - 700metrów,
Jezioro Mezowskie Małe - 900 metrów
Liczne punkty usługowe: przedszkola, przychodnia lekarska, apteki, bank, inne sklepy, przystanek komunikacji miejskiej w równie niedalekiej odległości.
MEDIA:
- prąd,
- woda miejska,
- ogrzewanie gazowe,
- kanalizacja miejska.
BUDYNEK:
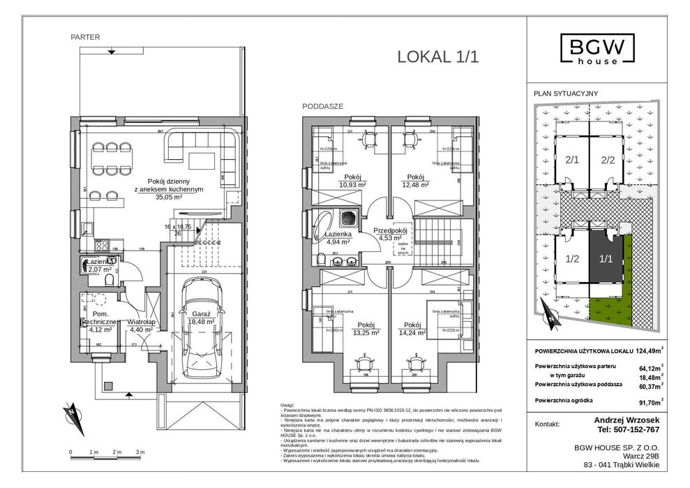
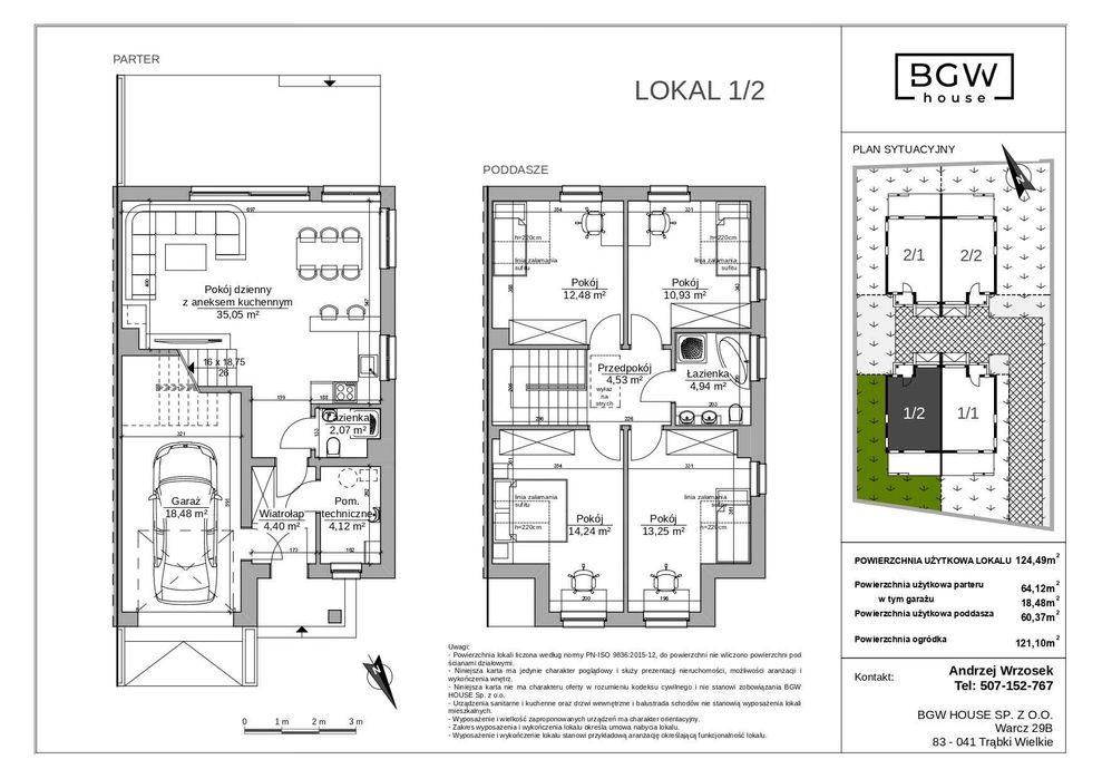
Powierzchnia 124,49 m² – przestronny i funkcjonalny układ pomieszczeń.
5 pokoi – idealne rozwiązanie dla rodziny z dziećmi lub osób potrzebujących dodatkowego miejsca na biuro czy gabinet.
2 łazienki – wygoda dla całej rodziny.
Garaż – bezpieczne miejsce dla samochodu oraz dodatkowa przestrzeń gospodarcza.
Ogródek – doskonały do relaksu, spotkań z bliskimi czy zabaw dla dzieci.
DODATKOWO – poddasze do własnej aranżacji ok 50m2 po podłodze.
W inwestycji przewidziano do sprzedaży 4 budynki:
* 1.1 - cena 669 000 zł (pow. ogródka ok 90 m2), pow. użytkowa 124,49 m2 - 5 373,92 zł/m2
* 1.2 - cena 699 000 zł (pow. ogródka ok 120 m2), pow. użytkowa 124,49 m2 - 5 614,90 zł/m2
* 2.1 - cena 719 000 zł (pow. ogródka ok 120 m2), pow. użytkowa 124,49 m2 - 5 775,56 zł/m2
* 2.2 - sprzedany.
Zapraszam do kontaktu i umówienia się na prezentację nieruchomości!
Oferta bezpośrednio od dewelopera.
Serdecznie zapraszamy na prezentację (również w weekendy).
Oferuję na sprzedaż dom jednorodzinny w zabudowie bliźniaczej o powierzchni 124,49 m² położony w malowniczej miejscowości Dzierżążno, w otoczeniu jezior i lasów, a jednocześnie z doskonałym dojazdem do Gdańska, Kartuz i całego Trójmiasta.
Do każdego domu przynależy prywatny ogródek o pow. od 90 m2 do 180 m2.
Auty inwestycji:
Położenie: Bliskość do Kaszubskiego Parku Krajobrazowego, jezior (Jezioro Dzierżąskie i Mezowskie Małe), lasów - idealne dla osób ceniących aktywny wypoczynek.
Spokojna okolica – spokojna, zielona okolica z dala od miejskiego zgiełku, a jednocześnie z dobrym dojazdem do Gdańska, Kartuz i Trójmiasta. Zabudowa jednorodzinna, przyjazne otoczenie i kameralny charakter mogą być zaletą dla osób szukających ciszy i spokoju.
Infrastruktura: Posiadanie stacji kolejowej, co ułatwia dojazd do większych miast.
Nowoczesne rozwiązania – solidne materiały, energooszczędne instalacje i estetyczne wykończenie.
LOKALIZACJA:
Inwestycja realizowana jest w atrakcyjnej lokalizacji przy ul. Kartuskiej bardzo blisko centrum Dzierzążna.
Przykładowe odległości:
- szkoła podstawowa – 5 minut pieszo,
- stacja PKP – 10 minut pieszo,
- sklep spożywczy - 400 metrów,
- Gdańsk – 25 minut autem
- Kartuzy – 5 minut autem,
Możliwość zakupu przez obcokrajowców bez zezwolenia Ministerstwa Spraw Wewnętrznych i Administracji.
Niewątpliwym atutem nieruchomości jest niewielka odległość dwóch malowniczych jezior:
Jezioro Dzierżąskie - 700metrów,
Jezioro Mezowskie Małe - 900 metrów
Liczne punkty usługowe: przedszkola, przychodnia lekarska, apteki, bank, inne sklepy, przystanek komunikacji miejskiej w równie niedalekiej odległości.
MEDIA:
- prąd,
- woda miejska,
- ogrzewanie gazowe,
- kanalizacja miejska.
BUDYNEK:
Powierzchnia 124,49 m² – przestronny i funkcjonalny układ pomieszczeń.
5 pokoi – idealne rozwiązanie dla rodziny z dziećmi lub osób potrzebujących dodatkowego miejsca na biuro czy gabinet.
2 łazienki – wygoda dla całej rodziny.
Garaż – bezpieczne miejsce dla samochodu oraz dodatkowa przestrzeń gospodarcza.
Ogródek – doskonały do relaksu, spotkań z bliskimi czy zabaw dla dzieci.
DODATKOWO – poddasze do własnej aranżacji ok 50m2 po podłodze.
W inwestycji przewidziano do sprzedaży 4 budynki:
* 1.1 - cena 669 000 zł (pow. ogródka ok 90 m2), pow. użytkowa 124,49 m2 - 5 373,92 zł/m2
* 1.2 - cena 699 000 zł (pow. ogródka ok 120 m2), pow. użytkowa 124,49 m2 - 5 614,90 zł/m2
* 2.1 - cena 719 000 zł (pow. ogródka ok 120 m2), pow. użytkowa 124,49 m2 - 5 775,56 zł/m2
* 2.2 - sprzedany.
Zapraszam do kontaktu i umówienia się na prezentację nieruchomości!
Oferta bezpośrednio od dewelopera.
Serdecznie zapraszamy na prezentację (również w weekendy).
ID: 1029786878
Skontaktuj się
xxx xxx xxx
Odświeżono dzisiaj o 12:56
Domy w Dzierżążnie. Nowa inwestycja. 5 pokoi, garaż, ogródek.
669 000 zł
do negocjacji
Lokalizacja
Dzierżążno
Pomorskie