Firmowe
Cena za m²: 7114.24 zł/m²
Rynek: Pierwotny
Powierzchnia: 112,31 m²
Powierzchnia działki: 400 m²
Rodzaj zabudowy: Bliźniak
Liczba pięter: Jednopiętrowy
Opis
Domy przy ul. Kamiennej w Krośnie to idealne miejsce dla rodzin oraz osób ceniących spokój i bliskość natury. Sąsiedztwo rozległych terenów zielonych jest idealne do spacerów oraz do uprawiania licznych aktywności fizycznych.
Nieruchomość z ogromnym potencjałem oraz z funkcjonalnym układem pomieszczeń. Znajduje się w cichym miejscu, z dala od ruchu ulicznego, co gwarantuje komfort i prywatność. Dom o powierzchni 112,31 m² jest w stanie deweloperskim, co daje możliwość wykończenia według własnych upodobań.
Działki przynależne do lokali wynoszą ok 400 m².
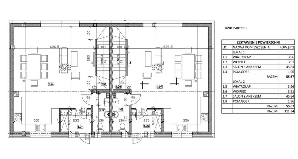
Na poziomie parteru znajduje się:
wiatrołap 3,96 m2
wc 3,91 m2
salon z aneksem kuchennym 45,84 m2
pomieszczenie gospodarcze 1,96
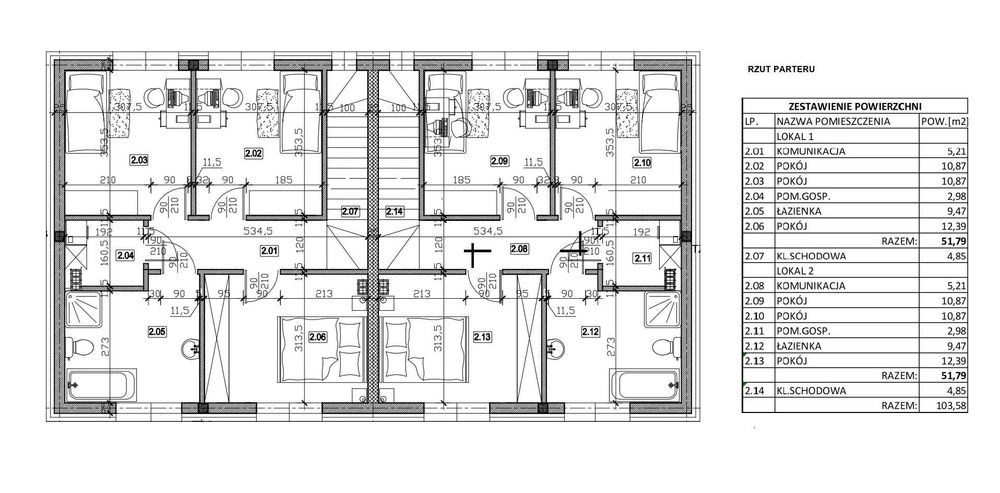
Piętro:
komunikacja 5,21 m2
pokój 10,87 m2
pokój 10,87 m2
pomieszczenie gospodarcze 2,98 m2
łazienka 9,47 m2
pokój 12,39 m2
klatka schodowa 4,85 m2
POWIERZCHNIA ŁĄCZNIE Z KLATKĄ SCHODOWĄ WYNOSI 112,31 m2
Dodatkowo każdy lokal posiada powierzchnię strychową do zagospodarowania (7,38m²).
Atutem nieruchomości jest w pełni ustawne piętro, bez skosów.
Wysoki standard wykończenia obejmuje:
- funkcjonalny rozkład pomieszczeń,
- projekt domu przygotowany z myślą o zapewnieniu oszczędności w codziennej eksploatacji,
- instalacja centralnego ogrzewania podłogowego w całym domu,
- posadzki przygotowane pod płytki oraz panele
- okna trzyszybowe, wyposażone w rolety na parterze
- głównym źródłem ciepła jest gaz
- lokale są wyposażone w kotły gazowe
- w lokalach zostaną zamontowane gniazdka elektryczne oraz wykonane zostaną pomiary elektryczne,
- na poddaszu zostanie wyprowadzony dodatkowy peszel, który daje możliwość wprowadzenia dodatkowej instalacji elektrycznej
- dostępna media: prąd, gaz, woda, kanalizacja
W najbliższej okolicy znajdują się m.in.
- Sklep spożywczy (otwarty również w ndz) ok 200m
- Kościół ok 200m
- Market budowlany ok 500 m
- Szkoły podstawowe w odległościach ok: 1,6 km, 1,4 km
- Przedszkola i żłobki w odległościach ok: 200m, 300m, 1 km
- Świetlica wiejska ok 70 m
- Galeria familijna (m.in.biedronka,piekarnia,apteka,jubiler ,kwiaciarnia) ok 700m
- Najbliższy plac zabaw ok 70m
- Dworzec kolejowy ok 3 km
Nieruchomość położona jest zaledwie 3 km od centrum Mosiny.
Oferta z rynku pierwotnego. Klient nie płaci 2% PCC oraz prowizji.
W ramach współpracy z Leroy Merlin Komorniki oraz OBI, każdy nasz klient otrzymuje 10% rabatu na zakupy w obu sklepach.
Zapraszamy do obejrzenia
Nieruchomość z ogromnym potencjałem oraz z funkcjonalnym układem pomieszczeń. Znajduje się w cichym miejscu, z dala od ruchu ulicznego, co gwarantuje komfort i prywatność. Dom o powierzchni 112,31 m² jest w stanie deweloperskim, co daje możliwość wykończenia według własnych upodobań.
Działki przynależne do lokali wynoszą ok 400 m².
Na poziomie parteru znajduje się:
wiatrołap 3,96 m2
wc 3,91 m2
salon z aneksem kuchennym 45,84 m2
pomieszczenie gospodarcze 1,96
Piętro:
komunikacja 5,21 m2
pokój 10,87 m2
pokój 10,87 m2
pomieszczenie gospodarcze 2,98 m2
łazienka 9,47 m2
pokój 12,39 m2
klatka schodowa 4,85 m2
POWIERZCHNIA ŁĄCZNIE Z KLATKĄ SCHODOWĄ WYNOSI 112,31 m2
Dodatkowo każdy lokal posiada powierzchnię strychową do zagospodarowania (7,38m²).
Atutem nieruchomości jest w pełni ustawne piętro, bez skosów.
Wysoki standard wykończenia obejmuje:
- funkcjonalny rozkład pomieszczeń,
- projekt domu przygotowany z myślą o zapewnieniu oszczędności w codziennej eksploatacji,
- instalacja centralnego ogrzewania podłogowego w całym domu,
- posadzki przygotowane pod płytki oraz panele
- okna trzyszybowe, wyposażone w rolety na parterze
- głównym źródłem ciepła jest gaz
- lokale są wyposażone w kotły gazowe
- w lokalach zostaną zamontowane gniazdka elektryczne oraz wykonane zostaną pomiary elektryczne,
- na poddaszu zostanie wyprowadzony dodatkowy peszel, który daje możliwość wprowadzenia dodatkowej instalacji elektrycznej
- dostępna media: prąd, gaz, woda, kanalizacja
W najbliższej okolicy znajdują się m.in.
- Sklep spożywczy (otwarty również w ndz) ok 200m
- Kościół ok 200m
- Market budowlany ok 500 m
- Szkoły podstawowe w odległościach ok: 1,6 km, 1,4 km
- Przedszkola i żłobki w odległościach ok: 200m, 300m, 1 km
- Świetlica wiejska ok 70 m
- Galeria familijna (m.in.biedronka,piekarnia,apteka,jubiler ,kwiaciarnia) ok 700m
- Najbliższy plac zabaw ok 70m
- Dworzec kolejowy ok 3 km
Nieruchomość położona jest zaledwie 3 km od centrum Mosiny.
Oferta z rynku pierwotnego. Klient nie płaci 2% PCC oraz prowizji.
W ramach współpracy z Leroy Merlin Komorniki oraz OBI, każdy nasz klient otrzymuje 10% rabatu na zakupy w obu sklepach.
Zapraszamy do obejrzenia
ID: 1034172283
xxx xxx xxx
Dodane 24 października 2025
domy na sprzedaż Krosno/Mosina ok. 115 m2
799 000 zł
Lokalizacja
Krosno
Wielkopolskie