Firmowe
Opis
FIRMA Wood&Play POLECA
---
Domek Ogrodowy narzędziowy Anastazja 13m2 450x300cm 35mm z podłogą
Cena oferty jest ceną brutto
--
Domek ogrodowy Anastazja 450 x 300 jest idealne zaprojektowany w sam raz do Państwa ogródka. Obszerne dwa pomieszczenia o łącznej powierzchni 11,5 m² zaspokoi w pełni Państwa potrzeby.
Wykonany z suszonego komorowo świerku skandynawskiego domek charakteryzuje się szczególną twardością i odpornością na działania warunków atmosferycznych.
Te kryteria mają istotny wpływ i zapewniają długoterminową trwałość naszego produktu.
Zalety
Najwyższa jakość strugania
Fabrycznie kontrolowana dokładność dopasowania
Domek z podłogą z deski o grubości 16mm
Drewno suszone, charakteryzujące się wysoką twardością i odpornością na warunki atmosferyczne
Dzięki szczegółowej instrukcji i prostocie wykonania nie musisz być doświadczonym monterem by złożyć go samemu.
Solidne i grube na 35 mm ściany
Dach dwuspadowy
Konserwacja
Domek jest wykonany z suszonego nie impregnowanego drewna. W celu zapewnienia długo żywotności drewna domek należy pomalować impregnatem lub olejem zaraz po złożeniu.
Tę czynność należy powtarzać regularnie, w zależności od regionalnych warunków pogodowych może się to wahać w granicach 2-4 lat.
Montaż
Domek ogrodowy należy zawsze stawiać na dodatkowej podkonstrukcji wykonanej np. z bloczków betonowych. Dodatkowa przestrzeń zapewnia lepszą cyrkulację powietrza pod domkiem i przedłuża jego żywotność.
W zestawie znajduje się
Konstrukcja drewniana domku wykonana z suszonego komorowo świerku skandynawskiego
Dach i podłoga z desek o grubości 16mm
Dwuczęściowe pełne drzwi
Podwójne okno wykonane ze szkła
Dwa oddzielne pomieszczenia
Zamek z kluczami oraz zestawem klamek
Szczegółowa instrukcja montażu
Dane techniczne
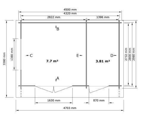
Wymiary zewnętrzne: 450 x 300 cm
Wymiar wewnętrzny większego pomieszczenia: 282 x 273 cm
Wymiar wewnętrzny mniejszego pomieszczenia: 139 x 273 cm
Powierzchnia większego pomieszczenia: 7,7 m2
Powierzchnia mniejszego pomieszczenia: 3,81 m2
Wypust dachu: 49 cm
Wysokość ściany bocznej: 213 cm
Wysokość całkowita: około 260 cm
Wymiar okna: 136 x 97,5 cm
Wymiar drzwi do większego pomieszczenia: 160 x 184 cm
Wymiar drzwi do mniejszego pomieszczenia: 84,5 x 162 cm
Grubość ścianki: 35 mm
Drewno: Świerk sandynawski
Okiennice: Brak
Podłoga: Tak
Grubość podłogi: 16 mm
Grubość dachu: 16 mm
Impregnacja: Brak
Do samodzielnego złożenia: Tak
---
» Wysyłamy po całej Polsce
---
Zamówienie, kontakt oraz dodatkowe informacje na naszej stronie www.woodandplay.pl/news/n/187/Kontaktontakt
---
Domek Ogrodowy narzędziowy Anastazja 13m2 450x300cm 35mm z podłogą
Cena oferty jest ceną brutto
--
Domek ogrodowy Anastazja 450 x 300 jest idealne zaprojektowany w sam raz do Państwa ogródka. Obszerne dwa pomieszczenia o łącznej powierzchni 11,5 m² zaspokoi w pełni Państwa potrzeby.
Wykonany z suszonego komorowo świerku skandynawskiego domek charakteryzuje się szczególną twardością i odpornością na działania warunków atmosferycznych.
Te kryteria mają istotny wpływ i zapewniają długoterminową trwałość naszego produktu.
Zalety
Najwyższa jakość strugania
Fabrycznie kontrolowana dokładność dopasowania
Domek z podłogą z deski o grubości 16mm
Drewno suszone, charakteryzujące się wysoką twardością i odpornością na warunki atmosferyczne
Dzięki szczegółowej instrukcji i prostocie wykonania nie musisz być doświadczonym monterem by złożyć go samemu.
Solidne i grube na 35 mm ściany
Dach dwuspadowy
Konserwacja
Domek jest wykonany z suszonego nie impregnowanego drewna. W celu zapewnienia długo żywotności drewna domek należy pomalować impregnatem lub olejem zaraz po złożeniu.
Tę czynność należy powtarzać regularnie, w zależności od regionalnych warunków pogodowych może się to wahać w granicach 2-4 lat.
Montaż
Domek ogrodowy należy zawsze stawiać na dodatkowej podkonstrukcji wykonanej np. z bloczków betonowych. Dodatkowa przestrzeń zapewnia lepszą cyrkulację powietrza pod domkiem i przedłuża jego żywotność.
W zestawie znajduje się
Konstrukcja drewniana domku wykonana z suszonego komorowo świerku skandynawskiego
Dach i podłoga z desek o grubości 16mm
Dwuczęściowe pełne drzwi
Podwójne okno wykonane ze szkła
Dwa oddzielne pomieszczenia
Zamek z kluczami oraz zestawem klamek
Szczegółowa instrukcja montażu
Dane techniczne
Wymiary zewnętrzne: 450 x 300 cm
Wymiar wewnętrzny większego pomieszczenia: 282 x 273 cm
Wymiar wewnętrzny mniejszego pomieszczenia: 139 x 273 cm
Powierzchnia większego pomieszczenia: 7,7 m2
Powierzchnia mniejszego pomieszczenia: 3,81 m2
Wypust dachu: 49 cm
Wysokość ściany bocznej: 213 cm
Wysokość całkowita: około 260 cm
Wymiar okna: 136 x 97,5 cm
Wymiar drzwi do większego pomieszczenia: 160 x 184 cm
Wymiar drzwi do mniejszego pomieszczenia: 84,5 x 162 cm
Grubość ścianki: 35 mm
Drewno: Świerk sandynawski
Okiennice: Brak
Podłoga: Tak
Grubość podłogi: 16 mm
Grubość dachu: 16 mm
Impregnacja: Brak
Do samodzielnego złożenia: Tak
---
» Wysyłamy po całej Polsce
---
Zamówienie, kontakt oraz dodatkowe informacje na naszej stronie www.woodandplay.pl/news/n/187/Kontaktontakt
ID: 1020005896
xxx xxx xxx


