Firmowe
Stan: Nowe
Opis
Marzysz o własnym domu mobilnym? Teraz to łatwiejsze niż myślisz .
Firma NATURE HOUSE oferuję budowę od podstaw nowoczesnych i funkcjonalnych mobilnych domów drewnianych, szkieletowych dostosowanych do Twoich potrzeb.
Co jest w standardzie wykonania:
- dom produkowany z wysokiej jakości certyfikowanego drewna C24 CE w technologii szkieletowej, system budowy przegród otwarto-dyfuzyjnie
- podłoga w pełni zabezpieczona blachą ocynkowaną / ruszt wentylacyjny elewacji zabezpieczony siatka na gryzonie
- kąt dachu 25 stopni
- izolacja podłogi, ścian i dachu z wysokiej jakości wełny mineralnej gr. 15 cm o współczynniku przewodzenia ciepła 0,035 W/mK
- kompletna instalacja wodno-kanalizacyjna z podejściami pod przyłącza / zlewozmywak, umywalka, wc, prysznic, pralka, terma
- kompletna instalacja elektryczna z rozdzielnią , na zewnątrz gniazdo do podłączenia zasilania domu już na działce
- zamontowany osprzęt elektryczny:
gniazdka / przełączniki / plafony ledowe wewnętrzne / kinkiety zewnętrzne
- instalacja RTV, wyprowadzony kabel antenowy na zewnątrz
- wentylacja grawitacyjna nawiewniki / łazienka wentylacja mechaniczna
- drzwi wewnętrzne mdf w okleinie z ościeżnicami regulowanymi
- panele podłogowe klasy AC5 ( kuchnia + salon , pokój ) + listwy drewniane zabezpieczone przeciwwilgociowo lakierem
- panele winylowe wodoodporne łazienka + listwy drewniane zabezpieczone przeciwwilgociowo lakierem
- wykończenie ścian wewnętrznych :
boazeria świerkowa skandynawska zaimpregnowana (profil softline) / beton architektoniczny / białe panele ścienne laminowane mdf / panele pcv w łazience / płyta g-k
- sufit boazeria świerkowa skandynawska zaimpregnowana (profil softline) / białe panele sufitowe laminowane mdf
- zamontowana stolarka okienna PCV 6 komorowa , dwuszybowa firmy ALUPLAST , środek biały a zewnątrz grafit / ciepły montaż
- drzwi zewnętrzne stalowe ocieplone antywłamaniowe, ciepły montaż /
drzwi wejściowe przeszklone zamykane na klucz , otwierane dwuskrzydłowe ( ruchomy słupek ) bardzo wygodne
- ściany zewnętrzne:
deska elewacyjna świerkowa (profil softline) zaimpregnowana 2x impregnatem + podkład / deska elewacyjna świerkowa (profil lamela) zaimpregnowana 2x impregnatem + podkład
/ blacha na rąbek firmy blachotrapez kolor grafit
- dach blacha na rąbek firmy blachotrapez kolor grafit , obróbki blacharskie
- ogrzewanie w standardzie klimatyzacja z funkcją grzania salon + kuchnia, panele grzewcze na podczerwień / całość sterowana z wifi
Dlaczego warto nas wybrać ?
Indywidualne podejście do każdego klienta.
Istnieje możliwość wykonania różnych wymiarów, kształtu, standardu wykończenia lub budowa na naszej sprawdzonej bazie modeli. Projekt dostosujemy do Twoich potrzeb, jesteśmy otwarci na propozycje;-) Na życzenie po wcześniejszych uzgodnieniach oczywiście możemy wyposażymy dom całkowicie do zamieszkania, pod klucz*
Zdrowe i naturalne materiały.
Do budowy naszych domów stosujemy wyłącznie naturalne materiały, które sprzyjają zdrowemu mikroklimatu wewnątrz budynku. Każdy użyty przez nas materiał posiada odpowiednie certyfikaty jakości i zgodności z normami budowlanymi. Dzięki temu w Twoim domu będzie zawsze ciepło, komfortowo i będzie on Ci służył przez wiele lat.
Solidne wykonanie.
Nasze domy powstają dzięki wieloletniemu doświadczeniu oraz zastosowaniu wysokiej jakości materiałów. Każdy etap prac jest prowadzony zgodnie z obowiązującymi normami budowlanymi , żeby każdy dom był nie tylko estetyczny ale także przede wszystkim bezpieczny i trwały.
Gwarantujemy szybki termin realizacji.
Już w 90 dni możesz cieszyć się własnym gotowym domem do zamieszkania.
Minimum formalności.
Domek jest dostarczany gotowy w wybrane miejsce w Polsce , nie potrzebuje pozwolenia na budowę. Jedyne proste zgłoszenie zamiaru postawienia domu na swojej działce do odpowiedniego Starostwa Powiatowego. Wszystkie media są gotowe i wyprowadzone. Wystarczy tylko podłączyć się na miejscu .
Bezpieczny transport.
Transport odbywa się autem niskopodwoziowym , na miejscu konieczny jest dźwig do posadowienia budynku. Współpracujemy z firmami transportowymi i udzielamy wskazówek dotyczących montażu. Jesteśmy zawsze obecni przy rozładunku na działce klienta.
Gwarancja stałej ceny.
U nas masz gwarancję stałej ceny, bez ukrytych kosztów i niespodzianek, która nie ulegnie zmianie.
Cena nie obejmuje kosztów dostawy, które ustalane są indywidualnie.
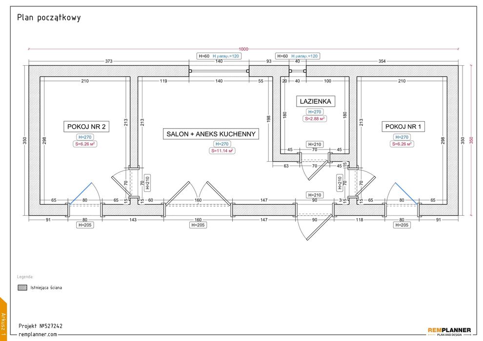
Podana cena dotyczy domu 35m2 z dwoma oddzielnymi sypialniami, łazienką i salonem z aneksem kuchennym. O wymiarach 3,5m szerokości na 10m długości a wysokość to 3,6m. Rzut parteru dostępny w ogłoszeniu. STAN DEWELOPERSKI PLUS / OGRZEWANIE DOMU W CENIE
Zdjęcia środka przedstawiają możliwy stan wykończenia POD KLUCZ ( indywidualnie ustalany z inwestorem )
Odwiedz nasza stronę internetową, gdzie zobaczysz pełną ofertę domów oraz poznasz szczegóły.
www.naturehouse-domymobilne.com.pl/
Serdecznie zapraszamy do odwiedzenia osobiście naszej firmy, aby porozmawiać bezpośrednio i zobaczyć aktualnie prowadzone prace ;)
Nasz adres:
Pecyna Stara 23
07-210 Długosiodło
#dommobilny #dombezpozwolenia #domek35m2 #domeknadziałkę #tinyhouse #domztransportem #dommodułowy #mobilnydom #nazgłoszenie #producentdomków #mobilehome #modularhome #tinyhousegermany #mobilehaus
Firma NATURE HOUSE oferuję budowę od podstaw nowoczesnych i funkcjonalnych mobilnych domów drewnianych, szkieletowych dostosowanych do Twoich potrzeb.
Co jest w standardzie wykonania:
- dom produkowany z wysokiej jakości certyfikowanego drewna C24 CE w technologii szkieletowej, system budowy przegród otwarto-dyfuzyjnie
- podłoga w pełni zabezpieczona blachą ocynkowaną / ruszt wentylacyjny elewacji zabezpieczony siatka na gryzonie
- kąt dachu 25 stopni
- izolacja podłogi, ścian i dachu z wysokiej jakości wełny mineralnej gr. 15 cm o współczynniku przewodzenia ciepła 0,035 W/mK
- kompletna instalacja wodno-kanalizacyjna z podejściami pod przyłącza / zlewozmywak, umywalka, wc, prysznic, pralka, terma
- kompletna instalacja elektryczna z rozdzielnią , na zewnątrz gniazdo do podłączenia zasilania domu już na działce
- zamontowany osprzęt elektryczny:
gniazdka / przełączniki / plafony ledowe wewnętrzne / kinkiety zewnętrzne
- instalacja RTV, wyprowadzony kabel antenowy na zewnątrz
- wentylacja grawitacyjna nawiewniki / łazienka wentylacja mechaniczna
- drzwi wewnętrzne mdf w okleinie z ościeżnicami regulowanymi
- panele podłogowe klasy AC5 ( kuchnia + salon , pokój ) + listwy drewniane zabezpieczone przeciwwilgociowo lakierem
- panele winylowe wodoodporne łazienka + listwy drewniane zabezpieczone przeciwwilgociowo lakierem
- wykończenie ścian wewnętrznych :
boazeria świerkowa skandynawska zaimpregnowana (profil softline) / beton architektoniczny / białe panele ścienne laminowane mdf / panele pcv w łazience / płyta g-k
- sufit boazeria świerkowa skandynawska zaimpregnowana (profil softline) / białe panele sufitowe laminowane mdf
- zamontowana stolarka okienna PCV 6 komorowa , dwuszybowa firmy ALUPLAST , środek biały a zewnątrz grafit / ciepły montaż
- drzwi zewnętrzne stalowe ocieplone antywłamaniowe, ciepły montaż /
drzwi wejściowe przeszklone zamykane na klucz , otwierane dwuskrzydłowe ( ruchomy słupek ) bardzo wygodne
- ściany zewnętrzne:
deska elewacyjna świerkowa (profil softline) zaimpregnowana 2x impregnatem + podkład / deska elewacyjna świerkowa (profil lamela) zaimpregnowana 2x impregnatem + podkład
/ blacha na rąbek firmy blachotrapez kolor grafit
- dach blacha na rąbek firmy blachotrapez kolor grafit , obróbki blacharskie
- ogrzewanie w standardzie klimatyzacja z funkcją grzania salon + kuchnia, panele grzewcze na podczerwień / całość sterowana z wifi
Dlaczego warto nas wybrać ?
Indywidualne podejście do każdego klienta.
Istnieje możliwość wykonania różnych wymiarów, kształtu, standardu wykończenia lub budowa na naszej sprawdzonej bazie modeli. Projekt dostosujemy do Twoich potrzeb, jesteśmy otwarci na propozycje;-) Na życzenie po wcześniejszych uzgodnieniach oczywiście możemy wyposażymy dom całkowicie do zamieszkania, pod klucz*
Zdrowe i naturalne materiały.
Do budowy naszych domów stosujemy wyłącznie naturalne materiały, które sprzyjają zdrowemu mikroklimatu wewnątrz budynku. Każdy użyty przez nas materiał posiada odpowiednie certyfikaty jakości i zgodności z normami budowlanymi. Dzięki temu w Twoim domu będzie zawsze ciepło, komfortowo i będzie on Ci służył przez wiele lat.
Solidne wykonanie.
Nasze domy powstają dzięki wieloletniemu doświadczeniu oraz zastosowaniu wysokiej jakości materiałów. Każdy etap prac jest prowadzony zgodnie z obowiązującymi normami budowlanymi , żeby każdy dom był nie tylko estetyczny ale także przede wszystkim bezpieczny i trwały.
Gwarantujemy szybki termin realizacji.
Już w 90 dni możesz cieszyć się własnym gotowym domem do zamieszkania.
Minimum formalności.
Domek jest dostarczany gotowy w wybrane miejsce w Polsce , nie potrzebuje pozwolenia na budowę. Jedyne proste zgłoszenie zamiaru postawienia domu na swojej działce do odpowiedniego Starostwa Powiatowego. Wszystkie media są gotowe i wyprowadzone. Wystarczy tylko podłączyć się na miejscu .
Bezpieczny transport.
Transport odbywa się autem niskopodwoziowym , na miejscu konieczny jest dźwig do posadowienia budynku. Współpracujemy z firmami transportowymi i udzielamy wskazówek dotyczących montażu. Jesteśmy zawsze obecni przy rozładunku na działce klienta.
Gwarancja stałej ceny.
U nas masz gwarancję stałej ceny, bez ukrytych kosztów i niespodzianek, która nie ulegnie zmianie.
Cena nie obejmuje kosztów dostawy, które ustalane są indywidualnie.
Podana cena dotyczy domu 35m2 z dwoma oddzielnymi sypialniami, łazienką i salonem z aneksem kuchennym. O wymiarach 3,5m szerokości na 10m długości a wysokość to 3,6m. Rzut parteru dostępny w ogłoszeniu. STAN DEWELOPERSKI PLUS / OGRZEWANIE DOMU W CENIE
Zdjęcia środka przedstawiają możliwy stan wykończenia POD KLUCZ ( indywidualnie ustalany z inwestorem )
Odwiedz nasza stronę internetową, gdzie zobaczysz pełną ofertę domów oraz poznasz szczegóły.
www.naturehouse-domymobilne.com.pl/
Serdecznie zapraszamy do odwiedzenia osobiście naszej firmy, aby porozmawiać bezpośrednio i zobaczyć aktualnie prowadzone prace ;)
Nasz adres:
Pecyna Stara 23
07-210 Długosiodło
#dommobilny #dombezpozwolenia #domek35m2 #domeknadziałkę #tinyhouse #domztransportem #dommodułowy #mobilnydom #nazgłoszenie #producentdomków #mobilehome #modularhome #tinyhousegermany #mobilehaus
ID: 1010564955
xxx xxx xxx

