Firmowe
Stan: Nowe
Opis
Domek letniskowy na działkę, drewniany domek na zgłoszenie 35m2.
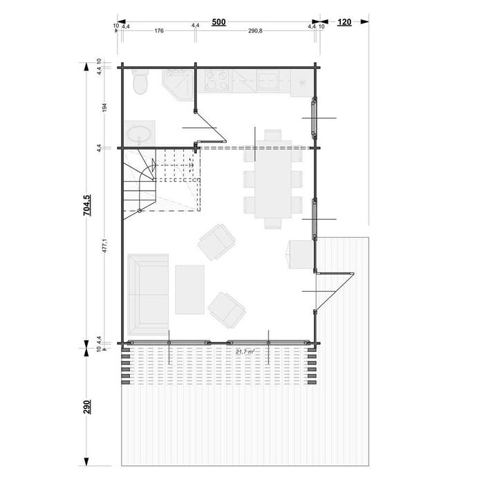
Drewniany domek letniskowy 65m2 + taras L 21,7m2
Okna PCV kolor/kolor, drzwi stalowe, duże przeszklenia.
Domek wykonany z wysokiej klasy świerku.
24 miesiące gwarancji.
Podana cena to koszt konstrukcji drewnianej (ściany, deskowanie dachu, podłogi, drzwi, okna, okucia klamki i elementy niezbędne do montażu).
Dane techniczne:
Wymiar z el. wystającymi: 500x704,4 cm
Wymiar bez el. wystających: 480x684,4 cm
Grubość ściany: 44 mm
Wysokość ściany: 250 cm
Wysokość w szczycie: 482 cm
Powierzchnia zabudowy: 65 + 21 m2
Powierzchnia dachu: 51 m2
Kąt nachylenia dachu: 30o
Wypust dachu: 40 cm
Grubość deski dachowej: 19 mm
Grubosć deski podłogowej: 28 mm
Wymiar belki podwalinowej: 45x95 mm
Ilość drzwi: 1x 900x2050 mm, 3x 800x2050 mm
Ilość okien nieotwieralnych: 2x 900x2050mm (ISO), 2x 1900x1900 mm
Ilość okien uch. rozw.: 1x 900x2050 mm (ISO)
Ilość podw. okien uch. rozw.: 2x 1900x2050 mm (ISO)
Drzwi i okna wykonane w technologii ECO-ISO, gwarantują szczelność i ograniczają wychładzanie się pomieszczeń.
Opcje dodatkowe (kalkulowane indywidualnie):
- montaż
- malowanie
- pokrycie dachu papą
- pokrycie dachu gontem
- pokrycie dachu blachodachówką
- okiennice
- rynny
- ocieplenie podłogi
- ocieplenie ścian
- ocieplenie dachu
Transport
Więcej na stronie: www. sklep. gardenplanet. pl
Szybki kontakt: 73*******70
Zapytania o Wyceny: biuro {małpa} gardenplanet. pl
Podana cena jest orientacyjna. W podstawowej cenie produktu znajduje się wyłącznie konstrukcja bez opcji dodatkowych.
Zdjęcie produktu w ofercie ma charakter poglądowy i ilustracyjny, a rzeczywisty jego wygląd i kolor zależy od zamówienia złożonego przez klienta.
Powyższa oferta ma charakter informacyjny i nie stanowi oferty handlowej w rozumieniu art.66 §1 kodeksu cywilnego oraz innych właściwych przepisów prawnych.
Drewniany domek letniskowy 65m2 + taras L 21,7m2
Okna PCV kolor/kolor, drzwi stalowe, duże przeszklenia.
Domek wykonany z wysokiej klasy świerku.
24 miesiące gwarancji.
Podana cena to koszt konstrukcji drewnianej (ściany, deskowanie dachu, podłogi, drzwi, okna, okucia klamki i elementy niezbędne do montażu).
Dane techniczne:
Wymiar z el. wystającymi: 500x704,4 cm
Wymiar bez el. wystających: 480x684,4 cm
Grubość ściany: 44 mm
Wysokość ściany: 250 cm
Wysokość w szczycie: 482 cm
Powierzchnia zabudowy: 65 + 21 m2
Powierzchnia dachu: 51 m2
Kąt nachylenia dachu: 30o
Wypust dachu: 40 cm
Grubość deski dachowej: 19 mm
Grubosć deski podłogowej: 28 mm
Wymiar belki podwalinowej: 45x95 mm
Ilość drzwi: 1x 900x2050 mm, 3x 800x2050 mm
Ilość okien nieotwieralnych: 2x 900x2050mm (ISO), 2x 1900x1900 mm
Ilość okien uch. rozw.: 1x 900x2050 mm (ISO)
Ilość podw. okien uch. rozw.: 2x 1900x2050 mm (ISO)
Drzwi i okna wykonane w technologii ECO-ISO, gwarantują szczelność i ograniczają wychładzanie się pomieszczeń.
Opcje dodatkowe (kalkulowane indywidualnie):
- montaż
- malowanie
- pokrycie dachu papą
- pokrycie dachu gontem
- pokrycie dachu blachodachówką
- okiennice
- rynny
- ocieplenie podłogi
- ocieplenie ścian
- ocieplenie dachu
Transport
Więcej na stronie: www. sklep. gardenplanet. pl
Szybki kontakt: 73*******70
Zapytania o Wyceny: biuro {małpa} gardenplanet. pl
Podana cena jest orientacyjna. W podstawowej cenie produktu znajduje się wyłącznie konstrukcja bez opcji dodatkowych.
Zdjęcie produktu w ofercie ma charakter poglądowy i ilustracyjny, a rzeczywisty jego wygląd i kolor zależy od zamówienia złożonego przez klienta.
Powyższa oferta ma charakter informacyjny i nie stanowi oferty handlowej w rozumieniu art.66 §1 kodeksu cywilnego oraz innych właściwych przepisów prawnych.
ID: 789964429
xxx xxx xxx

