Firmowe
Stan: Nowe
Opis
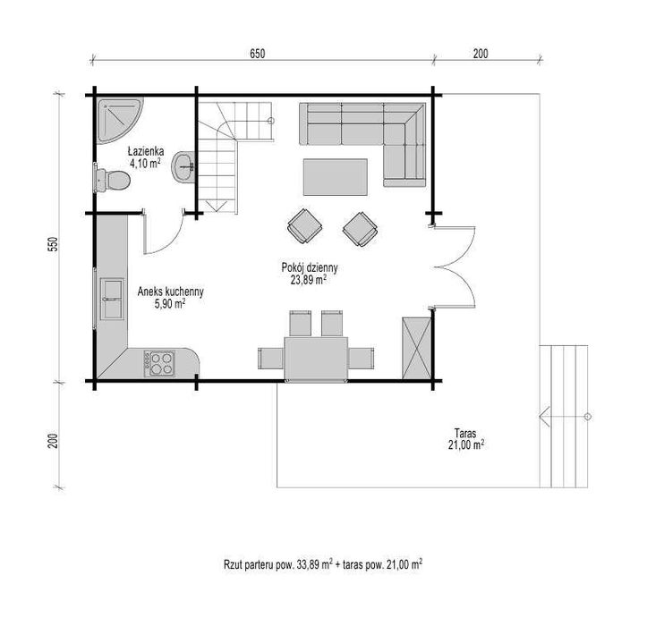
Domek drewniany letniskowy o powierzchni 65,5 m2.
Parametry techniczne domku:
Powierzchnia zabudowy: 35,8 m2
Minimalne wymiary działki: 14,5 x 13,5 m
Wysokość budynku: 5,3 m
Kąt dachu: 37 stopni
Domek wykonany jest z bala świerkowego o grubości 60mm.
Cena zawiera wszystkie elementy domu: okna, drzwi, konstrukcję dachu, pokrycie dachowe, balkony, balustradę, schody, podłogi, drzwi wewnętrzne. Domek może zostać dodatkowo ocieplony wełną mineralną od wewnątrz i wykończony drewnem lub płytami gipsowymi.
Cena zawiera koszty montażu i transportu do 30 km od Dębicy.
Cena 135 tys. zł
Parametry techniczne domku:
Powierzchnia zabudowy: 35,8 m2
Minimalne wymiary działki: 14,5 x 13,5 m
Wysokość budynku: 5,3 m
Kąt dachu: 37 stopni
Domek wykonany jest z bala świerkowego o grubości 60mm.
Cena zawiera wszystkie elementy domu: okna, drzwi, konstrukcję dachu, pokrycie dachowe, balkony, balustradę, schody, podłogi, drzwi wewnętrzne. Domek może zostać dodatkowo ocieplony wełną mineralną od wewnątrz i wykończony drewnem lub płytami gipsowymi.
Cena zawiera koszty montażu i transportu do 30 km od Dębicy.
Cena 135 tys. zł
ID: 1016000513
xxx xxx xxx
Dodane Dzisiaj o 07:53
Domek letniskowy drewniany 65,5 m2
135 000 zł
Lokalizacja