Prywatne
Cena za m²: 8994.37 zł/m²
Rynek: Wtórny
Powierzchnia: 142,20 m²
Powierzchnia działki: 739 m²
Rodzaj zabudowy: Wolnostojący
Liczba pięter: Parterowy z użytkowym poddaszem
Opis
Nowoczesny dom jednorodzinny w otoczeniu natury - Nowa Zawada (gm. Szydłowo)
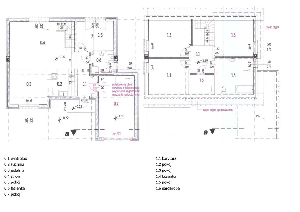
Powierzchnia: 144,2 m² (parter 89,7 m² + poddasze 54,5 m²)
Powierzchnia działki: 739 m² pełna własność
Na sprzedaż komfortowy dom wolnostojący, położony w malowniczej i cichej okolicy, graniczącej bezpośrednio z lasem. To idealna propozycja dla osób ceniących prywatność, kontakt z naturą i jednocześnie szybki dostęp do miejskich udogodnień. Dom zamieszkiwany od maja 2017 roku (oddany do użytku w grudniu 2016 roku).
Najważniejsze cechy nieruchomości:
Dom energooszczędny
• Panele fotowoltaiczne ( 5,87 kW, dwa inwertery Goodwe, co pozwala na całkowite pokrycie zużywanej energii elektrycznej z nadwyżką),
• Ogrzewanie gazowe (piec dwufunkcyjny - roczny koszt dla 6 osób 3000 zł,
• Trzyszybowe okna, kominek, przemyślane rozwiązania dla niskich kosztów eksploatacji
Parter:
• Przestronny salon z kominkiem, połączony z kuchnią i jadalnią, wyjściem na taras i ogród
• Sypialnia z garderobą i wydzielonym miejscem do pracy
• Dodatkowy pokój (pokój dziecka/gabinet/gościnny)
• Łazienka z prysznicem, WC i umywalką
• Wiatrołap
Poddasze użytkowe:
• Trzy przytulne sypialnie
• Duża łazienka z wanną, dwiema umywalkami, WC oraz miejscem na pralkę i suszarkę
• Funkcjonalna przestrzeń komunikacyjna i schowek
Dodatkowo:
• Strych z dużą przestrzenią magazynową
• Garaż dwustanowiskowy blaszany (35m2)
• Praktyczny domek ogrodnika
• Sauna infrared z drewna cedrowego (dożywotnia gwarancja na promienniki)
• Basen stelażowy 4x2 metry
Zadbana działka i komfort na zewnątrz:
• Pięknie zagospodarowany ogród z licznymi nasadzeniami
• Dwa tarasy: zadaszony z żaluzjami od północy i bardziej kameralny od południa
• Automatyczne nawadnianie ogrodu z możliwością zdalnego sterowania
• Robot koszący
Udogodnienia i technologie:
• Instalacje: prąd, gaz, woda, kanalizacja, światłowód
• Zewnętrzny monitoring, zdalne sterowanie oświetleniem oraz bramami (wjazdowa i garażowa)
• Gniazdo zasilania awaryjnego + agregat prądotwórczy Barracuda 3800 AVR (Benzyna/LPG)
• Dojazd utwardzoną drogą z polbruku, dobrze oświetlona ulica
Oferta prywatna - brak prowizji!
Możliwość przesłania zdjęć wnętrz na życzenie (kontakt mailowy)
Powierzchnia: 144,2 m² (parter 89,7 m² + poddasze 54,5 m²)
Powierzchnia działki: 739 m² pełna własność
Na sprzedaż komfortowy dom wolnostojący, położony w malowniczej i cichej okolicy, graniczącej bezpośrednio z lasem. To idealna propozycja dla osób ceniących prywatność, kontakt z naturą i jednocześnie szybki dostęp do miejskich udogodnień. Dom zamieszkiwany od maja 2017 roku (oddany do użytku w grudniu 2016 roku).
Najważniejsze cechy nieruchomości:
Dom energooszczędny
• Panele fotowoltaiczne ( 5,87 kW, dwa inwertery Goodwe, co pozwala na całkowite pokrycie zużywanej energii elektrycznej z nadwyżką),
• Ogrzewanie gazowe (piec dwufunkcyjny - roczny koszt dla 6 osób 3000 zł,
• Trzyszybowe okna, kominek, przemyślane rozwiązania dla niskich kosztów eksploatacji
Parter:
• Przestronny salon z kominkiem, połączony z kuchnią i jadalnią, wyjściem na taras i ogród
• Sypialnia z garderobą i wydzielonym miejscem do pracy
• Dodatkowy pokój (pokój dziecka/gabinet/gościnny)
• Łazienka z prysznicem, WC i umywalką
• Wiatrołap
Poddasze użytkowe:
• Trzy przytulne sypialnie
• Duża łazienka z wanną, dwiema umywalkami, WC oraz miejscem na pralkę i suszarkę
• Funkcjonalna przestrzeń komunikacyjna i schowek
Dodatkowo:
• Strych z dużą przestrzenią magazynową
• Garaż dwustanowiskowy blaszany (35m2)
• Praktyczny domek ogrodnika
• Sauna infrared z drewna cedrowego (dożywotnia gwarancja na promienniki)
• Basen stelażowy 4x2 metry
Zadbana działka i komfort na zewnątrz:
• Pięknie zagospodarowany ogród z licznymi nasadzeniami
• Dwa tarasy: zadaszony z żaluzjami od północy i bardziej kameralny od południa
• Automatyczne nawadnianie ogrodu z możliwością zdalnego sterowania
• Robot koszący
Udogodnienia i technologie:
• Instalacje: prąd, gaz, woda, kanalizacja, światłowód
• Zewnętrzny monitoring, zdalne sterowanie oświetleniem oraz bramami (wjazdowa i garażowa)
• Gniazdo zasilania awaryjnego + agregat prądotwórczy Barracuda 3800 AVR (Benzyna/LPG)
• Dojazd utwardzoną drogą z polbruku, dobrze oświetlona ulica
Oferta prywatna - brak prowizji!
Możliwość przesłania zdjęć wnętrz na życzenie (kontakt mailowy)
ID: 966997001
xxx xxx xxx
Dodane 24 września 2025
Dom z tarasem i garażem Nowa Zawada.
1 279 000 zł
Lokalizacja
Zawada
Wielkopolskie