Przejdź do głównej części
Czat

Powiadomienia

Dodaj ogłoszenie
Dom Wolnostojący Ruda Slaska Wirecka Stan Surowy zamkniety z docieplem
Dom Wolnostojący Ruda Slaska Wirecka Stan Surowy zamkniety z docieplem
Dom Wolnostojący Ruda Slaska Wirecka Stan Surowy zamkniety z docieplem
Dom Wolnostojący Ruda Slaska Wirecka Stan Surowy zamkniety z docieplem
Dom Wolnostojący Ruda Slaska Wirecka Stan Surowy zamkniety z docieplem
Dom Wolnostojący Ruda Slaska Wirecka Stan Surowy zamkniety z docieplem
Dom Wolnostojący Ruda Slaska Wirecka Stan Surowy zamkniety z docieplem
Dom Wolnostojący Ruda Slaska Wirecka Stan Surowy zamkniety z docieplem
PromujOdśwież

Prywatne

Cena za m²: 7000 zł/m²

Rynek: Pierwotny

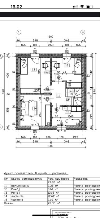
Powierzchnia: 100 m²

Powierzchnia działki: 550 m²

Rodzaj zabudowy: Wolnostojący

Liczba pięter: Parterowy z użytkowym poddaszem

Opis

Na sprzedaż wolnostojący dom o powierzchni 100 m². Posiada parter oraz użytkowe poddasze, a działka ma 550 m². Wnętrze jest dobrze zaplanowane, z osobną kuchnią i balkonem. Dom jest nowy, na rynku pierwotnym.
Ta oferta to dom w stanie surowym zamkniętym z Termomodernizacją

Nieruchomość znajduje się w spokojnej lokalizacji, blisko parków i zielonych terenów. W pobliżu znajdziesz szkoły, przedszkola oraz sklepy spożywcze. Dostęp do komunikacji miejskiej jest dogodny, co ułatwia codzienne dojazdy.

Nie czekaj, skontaktuj się i umów się na prezentację już dziś!
ID: 1051775419

Skontaktuj się

EPS Germany

Na OLX od luty 2012

Ostatnio online w dniu 17 lutego 2026

xxx xxx xxx

Odświeżono dnia 10 lutego 2026

Dom Wolnostojący Ruda Slaska Wirecka Stan Surowy zamkniety z docieplem

700 000 zł

Lokalizacja

Location

Ruda Śląska

Śląskie

Darmowa aplikacja na Twój telefon