Prywatne
Cena za m²: 3461.54 zł/m²
Rynek: Pierwotny
Powierzchnia: 104 m²
Powierzchnia działki: 900 m²
Rodzaj zabudowy: Wolnostojący
Liczba pięter: Parterowy
Opis
Na sprzedaż dom jednorodzinny w stanie surowym otwartym o powierzchni 104m2.
Charakterystyka nieruchomości:
Typ zabudowy: wolnostojący dom jednorodzinny
Stan: surowy otwarty
Powierzchnia: ok. 104m²l
Powierzchnia działki: około 9 arów
Liczba pokoi: 3 sypialnie plus salon z aneksem
Rok rozpoczęcia budowy: 2024
Zakres wykonanych prac budowlanych:
solidne fundamenty
ściany nośne oraz działowe
konstrukcja dachu - wiązary, deskowanie i papa
Dom został wzniesiony zgodnie z projektem, z zachowaniem obowiązujących norm budowlanych.
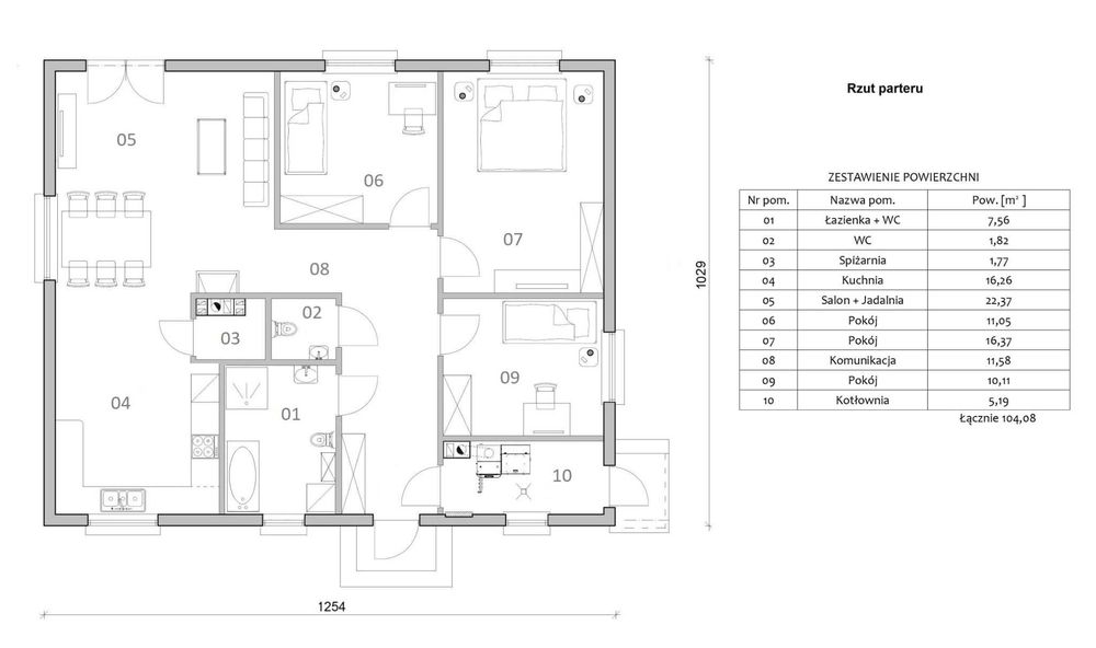
ZESTAWIENIE POWIERZCHNI
01 Łazienka + WC 7,56m²
02 WC 1,82 m²
03 Spiżarnia 1,77 m²
04 Kuchnia 16,26 m²
05 Salon + Jadalnia 22,37 m²
06 Pokój 11,05
07 Pokój 16,37 m²
08 Komunikacja 11,58 m²
09 Pokój 10,11 m²
10 Kotłownia 5,19 m²
Łącznie 104,08 m²
Media:
energia elektryczna: skrzynka na działce
woda: (wodociąg w drodze- przygotowana dokumentacja do wykonania przyłącza do budynku)
kanalizacja: ( możliwość budowy szamba/przydomowej oczyszczalni )
Lokalizacja:
Nieruchomość położona w Wybudowaniu Michałowo ul. Lidzbarska. W bliskim sąsiedztwie nowa zabudowa mieszkaniowa jednorodzinna.
Najważniejsze atuty:
sprawdzony, ekonomiczny projekt domu
atrakcyjna alternatywa dla mieszkań w zabudowie wielorodzinnej
idealny dom dla rodziny lub jako inwestycja
Świetna lokalizacja
W projekcie przewidziany strych około 11 m²
Cena: 380 000 zł – możliwość negocjacji
Zapraszam do kontaktu telefonicznego w celu uzyskania dodatkowych informacji oraz umówienia prezentacji nieruchomości. Możliwość pomocy w doprowadzeniu do stanu deweloperskiego. Na pierwszych dwóch zdjęciach przykładowe wizualizacje zewnętrzne.
Charakterystyka nieruchomości:
Typ zabudowy: wolnostojący dom jednorodzinny
Stan: surowy otwarty
Powierzchnia: ok. 104m²l
Powierzchnia działki: około 9 arów
Liczba pokoi: 3 sypialnie plus salon z aneksem
Rok rozpoczęcia budowy: 2024
Zakres wykonanych prac budowlanych:
solidne fundamenty
ściany nośne oraz działowe
konstrukcja dachu - wiązary, deskowanie i papa
Dom został wzniesiony zgodnie z projektem, z zachowaniem obowiązujących norm budowlanych.
ZESTAWIENIE POWIERZCHNI
01 Łazienka + WC 7,56m²
02 WC 1,82 m²
03 Spiżarnia 1,77 m²
04 Kuchnia 16,26 m²
05 Salon + Jadalnia 22,37 m²
06 Pokój 11,05
07 Pokój 16,37 m²
08 Komunikacja 11,58 m²
09 Pokój 10,11 m²
10 Kotłownia 5,19 m²
Łącznie 104,08 m²
Media:
energia elektryczna: skrzynka na działce
woda: (wodociąg w drodze- przygotowana dokumentacja do wykonania przyłącza do budynku)
kanalizacja: ( możliwość budowy szamba/przydomowej oczyszczalni )
Lokalizacja:
Nieruchomość położona w Wybudowaniu Michałowo ul. Lidzbarska. W bliskim sąsiedztwie nowa zabudowa mieszkaniowa jednorodzinna.
Najważniejsze atuty:
sprawdzony, ekonomiczny projekt domu
atrakcyjna alternatywa dla mieszkań w zabudowie wielorodzinnej
idealny dom dla rodziny lub jako inwestycja
Świetna lokalizacja
W projekcie przewidziany strych około 11 m²
Cena: 380 000 zł – możliwość negocjacji
Zapraszam do kontaktu telefonicznego w celu uzyskania dodatkowych informacji oraz umówienia prezentacji nieruchomości. Możliwość pomocy w doprowadzeniu do stanu deweloperskiego. Na pierwszych dwóch zdjęciach przykładowe wizualizacje zewnętrzne.
ID: 1044444371
xxx xxx xxx
Dodane 27 lutego 2026
Dom w stanie surowym otwartym Wybudowanie Michałowo
360 000 zł
do negocjacji
Lokalizacja
Brodnica
Kujawsko-pomorskie