Prywatne
Cena za m²: 6666.67 zł/m²
Rynek: Pierwotny
Powierzchnia: 75 m²
Powierzchnia działki: 148 m²
Rodzaj zabudowy: Szeregowiec
Liczba pięter: Dwupiętrowy i więcej
Opis
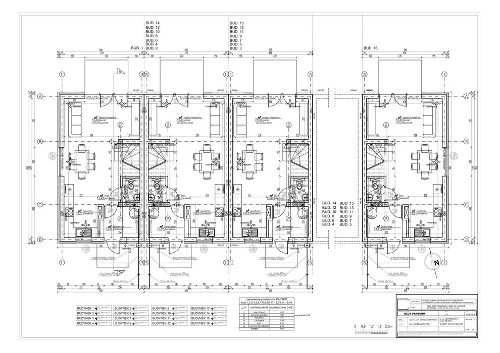
Na sprzedaż dom w zabudowie szeregowej o powierzchni 75,11m2 z działka od 148m2
Idealna nieruchomość dla rodzin!
Oferujemy na sprzedaż dom jednorodzinny w zabudowie szeregowej przy ul. Oliwkowej w Grabówce, bardzo blisko Białegostoku. To idealne miejsce dla rodzin, które cenią sobie komfort i doskonałą lokalizację.
Atuty nieruchomości:
Doskonałe rozmieszczenie pomieszczeń: Przemyślane układy wnętrz zapewniają wygodę i funkcjonalność.
Bliskość infrastruktury: W pobliżu znajdują się szkoły, sklepy, przedszkola, a także przystanki transportu miejskiego. Szybki dojazd do centrum Białegostoku to dodatkowy plus.
2 miejsce postojowe gratis plus strych
Dodatkowe atuty: Brak czynszu, pełna własność, pełne uzbrojenie terenu w tym kanalizacja, woda, prąd, gaz, światłowód.
Specyfikacja:
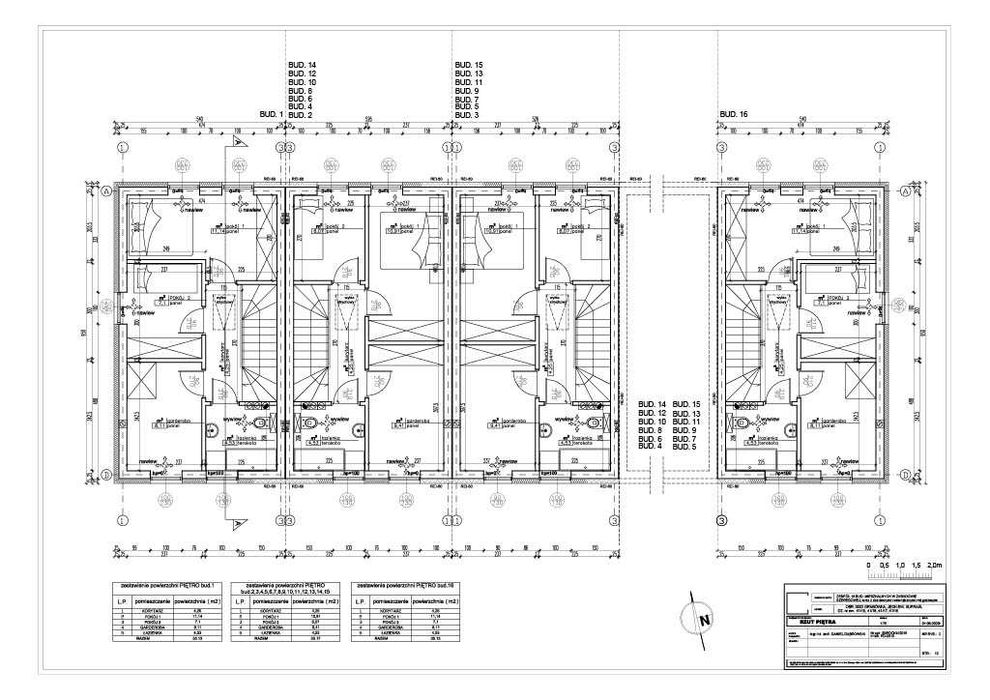
Powierzchnia domu: 75,07 m²,na parterze salon, kuchnia, wc, wiatrołap. Na piętrze, łazienka, 3 pokoje
Powierzchnia działek: od 148 m²
Piętro bez skosów: Komfortowe i przestronne wnętrza
Niskie koszty utrzymania: Dzięki nowoczesnym rozwiązaniom technicznym
Ogrzewanie gazem ziemnym: Ekonomiczne i najbardziej poszukiwane źródło ciepła
Cena: od 500.000 zł (przy podpisaniu umowy do końca roku 2025)
Przewidywalne zakończenie budowy 31.05.2026
U nas nie kupujesz dziury w ziemi.
Domy są w trakcie budowy.
Kontakt:
tel. 69*****40 lub 72*****35
Nie przegap tej wyjątkowej okazji!
Brak ukrytych dodatkowych kosztów., sprzedaż bezpośrednia.
Idealna nieruchomość dla rodzin!
Oferujemy na sprzedaż dom jednorodzinny w zabudowie szeregowej przy ul. Oliwkowej w Grabówce, bardzo blisko Białegostoku. To idealne miejsce dla rodzin, które cenią sobie komfort i doskonałą lokalizację.
Atuty nieruchomości:
Doskonałe rozmieszczenie pomieszczeń: Przemyślane układy wnętrz zapewniają wygodę i funkcjonalność.
Bliskość infrastruktury: W pobliżu znajdują się szkoły, sklepy, przedszkola, a także przystanki transportu miejskiego. Szybki dojazd do centrum Białegostoku to dodatkowy plus.
2 miejsce postojowe gratis plus strych
Dodatkowe atuty: Brak czynszu, pełna własność, pełne uzbrojenie terenu w tym kanalizacja, woda, prąd, gaz, światłowód.
Specyfikacja:
Powierzchnia domu: 75,07 m²,na parterze salon, kuchnia, wc, wiatrołap. Na piętrze, łazienka, 3 pokoje
Powierzchnia działek: od 148 m²
Piętro bez skosów: Komfortowe i przestronne wnętrza
Niskie koszty utrzymania: Dzięki nowoczesnym rozwiązaniom technicznym
Ogrzewanie gazem ziemnym: Ekonomiczne i najbardziej poszukiwane źródło ciepła
Cena: od 500.000 zł (przy podpisaniu umowy do końca roku 2025)
Przewidywalne zakończenie budowy 31.05.2026
U nas nie kupujesz dziury w ziemi.
Domy są w trakcie budowy.
Kontakt:
tel. 69*****40 lub 72*****35
Nie przegap tej wyjątkowej okazji!
Brak ukrytych dodatkowych kosztów., sprzedaż bezpośrednia.
ID: 1041137774
xxx xxx xxx
Dodane 18 grudnia 2025
Dom w cenie mieszkania - bez czynszów - parking i strych gratis -
500 000 zł
Lokalizacja
Białystok, Dojlidy
Podlaskie