Firmowe
Cena za m²: 4215.69 zł/m²
Rynek: Pierwotny
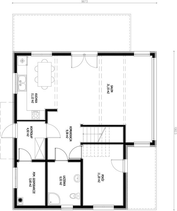
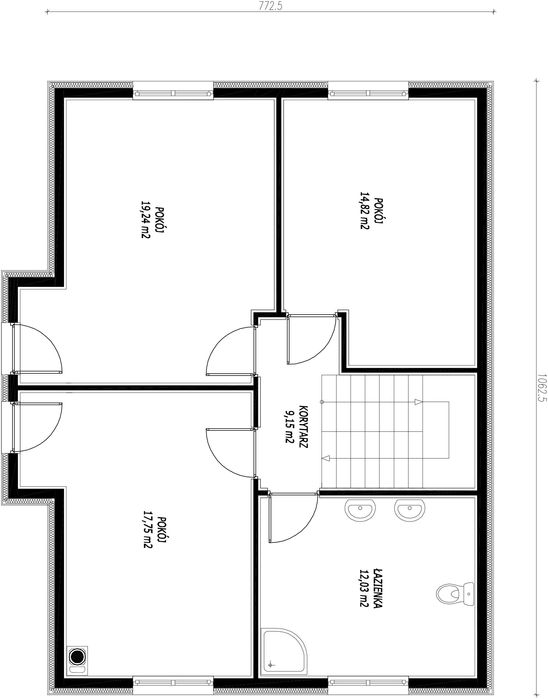
Powierzchnia: 153 m²
Powierzchnia działki: 100 m²
Rodzaj zabudowy: Wolnostojący
Liczba pięter: Jednopiętrowy
Opis
PROMOCJA DO 25 PAŹDZIERNIKA!
Producent domów szkieletowych DREV-MEX – budujemy Twój wymarzony dom!
Jesteśmy doświadczonym producentem domów w technologii szkieletowej, oferującym kompleksową
realizację inwestycji od projektu po gotowy dom. Działamy na terenie całej Polski!
Oferujemy:
* Budowę domów szkieletowych
* Realizację inwestycji **według projektów gotowych** oraz **projektów indywidualnych**
* Wsparcie na każdym etapie – od wyboru projektu, przez formalności, po oddanie kluczy
* Możliwość budowy w stanie surowym, deweloperskim lub „pod klucz”
* Profesjonalne doradztwo techniczne i materiałowe
Nasze domy to połączenie:
*Nowoczesnych rozwiązań technologicznych*
*Energooszczędności i niskich kosztów eksploatacji
* Ekologii i krótkiego czasu realizacji.
Zrealizuj z nami swój projekt życia – niezależnie, czy marzysz o małym domku letniskowym, czy
przestronnej willi całorocznej. Gwarantujemy jakość, terminowość i elastyczne podejście do każdego
klienta.
Przedstawiony projekt w metrażu 153 m2 został wyceniony w zakresie:
- konstrukcja budynku wraz z więźbą dachową,
- pokrycie dachu blachodachówka,
- komin, kominki wentylacyjne,
- elewacja styropian 10 cm + siatka + klej + tynk
- ocieplenie wewnętrzne wełna mineralna + płyty GKF na stelażu
- stolarka okienna i drzwiowa
- instalacje (elektryczna. wod-kan, co, podłogówka z wylewką).
Pomagamy przy załatwieniu pozwolenia na budowę. Firma wydaje dokumentację techniczną budynku
do załatwienia pozwolenia na budowę. Szacowany czas pozwoleń na budowę to 4-6 miesięcy.
Możemy wykonać pod budynek płytę fundamentową (zgodnie z dokumentacją i adaptacją do terenu) – koszt dodatkowy.
Producent domów szkieletowych DREV-MEX – budujemy Twój wymarzony dom!
Jesteśmy doświadczonym producentem domów w technologii szkieletowej, oferującym kompleksową
realizację inwestycji od projektu po gotowy dom. Działamy na terenie całej Polski!
Oferujemy:
* Budowę domów szkieletowych
* Realizację inwestycji **według projektów gotowych** oraz **projektów indywidualnych**
* Wsparcie na każdym etapie – od wyboru projektu, przez formalności, po oddanie kluczy
* Możliwość budowy w stanie surowym, deweloperskim lub „pod klucz”
* Profesjonalne doradztwo techniczne i materiałowe
Nasze domy to połączenie:
*Nowoczesnych rozwiązań technologicznych*
*Energooszczędności i niskich kosztów eksploatacji
* Ekologii i krótkiego czasu realizacji.
Zrealizuj z nami swój projekt życia – niezależnie, czy marzysz o małym domku letniskowym, czy
przestronnej willi całorocznej. Gwarantujemy jakość, terminowość i elastyczne podejście do każdego
klienta.
Przedstawiony projekt w metrażu 153 m2 został wyceniony w zakresie:
- konstrukcja budynku wraz z więźbą dachową,
- pokrycie dachu blachodachówka,
- komin, kominki wentylacyjne,
- elewacja styropian 10 cm + siatka + klej + tynk
- ocieplenie wewnętrzne wełna mineralna + płyty GKF na stelażu
- stolarka okienna i drzwiowa
- instalacje (elektryczna. wod-kan, co, podłogówka z wylewką).
Pomagamy przy załatwieniu pozwolenia na budowę. Firma wydaje dokumentację techniczną budynku
do załatwienia pozwolenia na budowę. Szacowany czas pozwoleń na budowę to 4-6 miesięcy.
Możemy wykonać pod budynek płytę fundamentową (zgodnie z dokumentacją i adaptacją do terenu) – koszt dodatkowy.
ID: 1032772374
xxx xxx xxx
Dodane 17 października 2025
Dom szkieletowy 153 m2
645 000 zł
Lokalizacja
Łodygowice
Śląskie