Firmowe
Stan: Nowe
Opis
Nowoczesny domek drewniany na zgłoszenie !!
Oferuję wykonanie domu drewnianego o konstrukcji szkieletowej o powierzchni zabudowy 66m2. Pozwala to postawić taki dom na zgłoszenie- bez pozwolenia na budowę i rozpocząć budowę nawet w 21dni jako budynek rekreacji indywidualnej (istnieje możliwość przekształcenia na budynek mieszkalny)
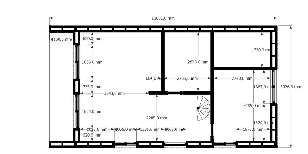
Oferowany w ogłoszeniu domek w stylu nowoczesnej stodoły o powierzchni ZABUDOWY 66m2 wymiary 6x11m
Obiekt został zaprojektowany w taki sposób żeby nadawał się do całorocznego zamieszkania. Przemyślany układ funkcjonalno-przestrzenny oraz konstrukcja pozwala uzyskać ponad 55m2 na parterze oraz antresole prawie 40m2
-Wykonanie konstrukcji nośnej budynku (ściany, dach, strop)
-Obicie usztywnienie konstrukcji płyta OSB 12mm (możliwość zastosowania płyty MFP, Steico za dopłatą)
-Ruszt wentylacyjny elewacji
-Wykonanie poszycia elewacji oraz dachu deska modrzewiowa, blacha na rąbek, obróbki blacharskie rynny, 3x okno dachowe
-Stolarka okienna
-Ocieplenie wewnątrz budynku
-Instalacja elektryczna oraz wod-kan
-Obicie w środku płytą GK (za dopłatą możliwe zastosowanie innych materiałów np boazeri)
Inne prace dodatkowe wyceniane indywidualnie możliwe wykończenie nawet pod klucz z meblami, wykończona łazienką i kuchnią.
Cena zawiera koszt montażu oraz transportu wszystkich materiałów.
Pomagamy w całym procesie inwestycji, po podpisaniu umowy dostarczamy dokumentację potrzebna do dokonania formalności związanych ze zgłoszeniem w urzędzie.
Zaprojektuję oraz wykonam taki dom również pod indywidualne preferencje klienta. Nie tylko dom w stylu stodoly.
Zapraszam do kontaktu po więcej informacji.
Arch. Przemysław Drzymała
MANUFAKTURA KSZTAŁTU
Oferuję wykonanie domu drewnianego o konstrukcji szkieletowej o powierzchni zabudowy 66m2. Pozwala to postawić taki dom na zgłoszenie- bez pozwolenia na budowę i rozpocząć budowę nawet w 21dni jako budynek rekreacji indywidualnej (istnieje możliwość przekształcenia na budynek mieszkalny)
Oferowany w ogłoszeniu domek w stylu nowoczesnej stodoły o powierzchni ZABUDOWY 66m2 wymiary 6x11m
Obiekt został zaprojektowany w taki sposób żeby nadawał się do całorocznego zamieszkania. Przemyślany układ funkcjonalno-przestrzenny oraz konstrukcja pozwala uzyskać ponad 55m2 na parterze oraz antresole prawie 40m2
-Wykonanie konstrukcji nośnej budynku (ściany, dach, strop)
-Obicie usztywnienie konstrukcji płyta OSB 12mm (możliwość zastosowania płyty MFP, Steico za dopłatą)
-Ruszt wentylacyjny elewacji
-Wykonanie poszycia elewacji oraz dachu deska modrzewiowa, blacha na rąbek, obróbki blacharskie rynny, 3x okno dachowe
-Stolarka okienna
-Ocieplenie wewnątrz budynku
-Instalacja elektryczna oraz wod-kan
-Obicie w środku płytą GK (za dopłatą możliwe zastosowanie innych materiałów np boazeri)
Inne prace dodatkowe wyceniane indywidualnie możliwe wykończenie nawet pod klucz z meblami, wykończona łazienką i kuchnią.
Cena zawiera koszt montażu oraz transportu wszystkich materiałów.
Pomagamy w całym procesie inwestycji, po podpisaniu umowy dostarczamy dokumentację potrzebna do dokonania formalności związanych ze zgłoszeniem w urzędzie.
Zaprojektuję oraz wykonam taki dom również pod indywidualne preferencje klienta. Nie tylko dom w stylu stodoly.
Zapraszam do kontaktu po więcej informacji.
Arch. Przemysław Drzymała
MANUFAKTURA KSZTAŁTU
ID: 1052315624
xxx xxx xxx

