Firmowe
Cena za m²: 2647.41 zł/m²
Rynek: Pierwotny
Powierzchnia: 169,60 m²
Powierzchnia działki: 1 034 m²
Rodzaj zabudowy: Wolnostojący
Liczba pięter: Parterowy z użytkowym poddaszem
Opis
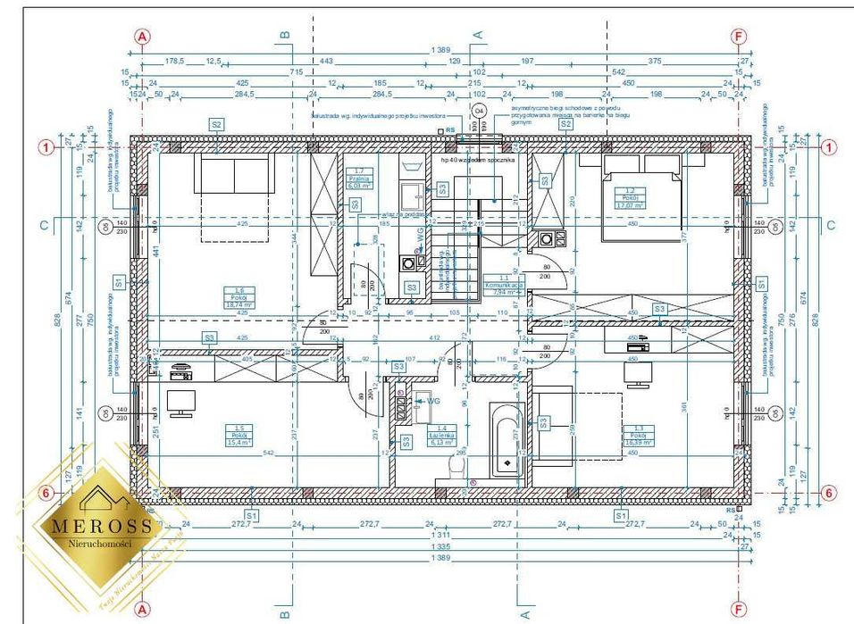
Biuro MEROSS Nieruchomości prezentuje dom wolnostojący z poddaszem użytkowym o powierzchni całkowitej 169,6 m2, znajdujący się w Brzezinach-Kolonii, gm. Poczesna. Usytuowany na działce o powierzchni 1043 m2.
SKŁAD BUDYNKU:
Parter: wiatrołap, salon z jadalnią, kuchnia, spiżarnia, łazienka, garderoba, kotłownia, garaż
Poddasze użytkowe: cztery przestronne sypialnie, łazienka, pralnia.
Media: prąd i gaz wprowadzone na działkę, woda w drodze, kanalizacja w projekcie.
Działka o wymiarach:
szerokość ok 21 m
głębokość ok 50 m
BUDYNEK:
Ściany zew.: pustak ceramiczny max
Dach: dachówka ceramiczna
STANDARD WYKOŃCZENIA:
Stan surowy otwarty.
Rok budowy: 2021
Teren objęty jest planem zagospodarowania przestrzennego UCHWAŁA NR 77/XII/15
RADY GMINY POCZESNA. Działka oznaczona symbolem 19MN - Teren zabudowy mieszkaniowej jednorodzinnej.
LOKALIZACJA:
Cicha i spokojna lokalizacja. Wokół zabudowa domów jednorodzinnych. Do centrum Częstochowy około 10 km.
Pomagamy bezpłatnie w uzyskaniu kredytu hipotecznego.
Zapraszamy
MEROSS Nieruchomości
SKŁAD BUDYNKU:
Parter: wiatrołap, salon z jadalnią, kuchnia, spiżarnia, łazienka, garderoba, kotłownia, garaż
Poddasze użytkowe: cztery przestronne sypialnie, łazienka, pralnia.
Media: prąd i gaz wprowadzone na działkę, woda w drodze, kanalizacja w projekcie.
Działka o wymiarach:
szerokość ok 21 m
głębokość ok 50 m
BUDYNEK:
Ściany zew.: pustak ceramiczny max
Dach: dachówka ceramiczna
STANDARD WYKOŃCZENIA:
Stan surowy otwarty.
Rok budowy: 2021
Teren objęty jest planem zagospodarowania przestrzennego UCHWAŁA NR 77/XII/15
RADY GMINY POCZESNA. Działka oznaczona symbolem 19MN - Teren zabudowy mieszkaniowej jednorodzinnej.
LOKALIZACJA:
Cicha i spokojna lokalizacja. Wokół zabudowa domów jednorodzinnych. Do centrum Częstochowy około 10 km.
Pomagamy bezpłatnie w uzyskaniu kredytu hipotecznego.
Zapraszamy
MEROSS Nieruchomości
ID: 1016829915
xxx xxx xxx
Dodane 11 grudnia 2025
Dom stan surowy otwarty
449 000 zł
Lokalizacja
Brzeziny Nowe
Śląskie