Prywatne
Cena za m²: 6976.74 zł/m²
Rynek: Wtórny
Powierzchnia: 172 m²
Powierzchnia działki: 8 965 m²
Rodzaj zabudowy: Wolnostojący
Liczba pięter: Parterowy z użytkowym poddaszem
Opis
W miejscowości Łozice - Cegielnia gmina Bobolice na sprzedaż DOM z potencjałem
Wśród lasów, jezior i łąk, daleko od sąsiadów,
Zjazd na drogę ekspresową S11 5 km, a nią mamy 30 km od Szczecinka, 90 km od Kołobrzegu
Dom jednorodzinny
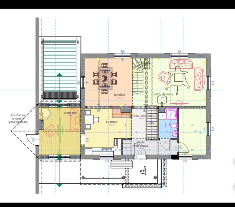
- Parter 95 m2 + dodatkowo wyodrębnione z obory pralnia 9 m2 oraz kotłownia 8 m2 w stanie deweloperskim
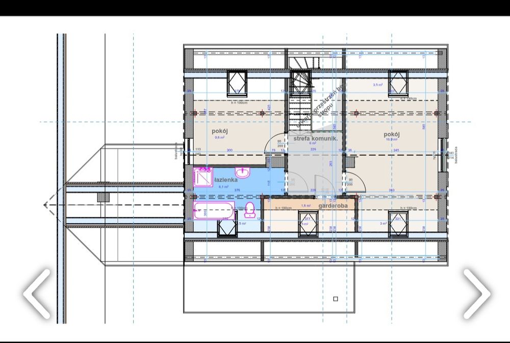
- Poddasze 60 m2 wykończone
- Piwnica 35 m2
Działka o powierzchni 0,2985 ha z budynkiem mieszkalnym oraz budynkami gospodarczymi dodatkowo działka rolna o powierzchni 0,4994 ha przylegająca bezpośrednio do niej, dojazd drogą własnościową o powierzchni 0.0986 ha
Dom po generalnym remoncie:
- wymiana pokrycia dachowego na domu jednorodzinnym oraz oborze
- wymiana instalacji elektrycznej + instalacja do kamer,
- wymiana instalacji kanalizacyjnej
- wymiana stolarki okiennej
- własna oczyszczalnia
- na działce znajduje się studnia, do której odprowadzona jest woda opadowa z dachów
- woda ze studni przyłączona do obory
- wykonano odwodnienie budynków
Obora długość 30 m szerokość 10 m
- wykonano instalację elektryczną 230/400 V
- dodatkowe szambo
Stodoła długość 12 m oraz szerokość 10 m
Dom ogrzewany piecem na pellet klasy V + kominek z płaszczem wodnym ,
Na parterze ogrzewanie podłogowe, na poddaszu grzejniki.
Brama wjazdowa przesuwna elektryczna
Wśród lasów, jezior i łąk, daleko od sąsiadów,
Zjazd na drogę ekspresową S11 5 km, a nią mamy 30 km od Szczecinka, 90 km od Kołobrzegu
Dom jednorodzinny
- Parter 95 m2 + dodatkowo wyodrębnione z obory pralnia 9 m2 oraz kotłownia 8 m2 w stanie deweloperskim
- Poddasze 60 m2 wykończone
- Piwnica 35 m2
Działka o powierzchni 0,2985 ha z budynkiem mieszkalnym oraz budynkami gospodarczymi dodatkowo działka rolna o powierzchni 0,4994 ha przylegająca bezpośrednio do niej, dojazd drogą własnościową o powierzchni 0.0986 ha
Dom po generalnym remoncie:
- wymiana pokrycia dachowego na domu jednorodzinnym oraz oborze
- wymiana instalacji elektrycznej + instalacja do kamer,
- wymiana instalacji kanalizacyjnej
- wymiana stolarki okiennej
- własna oczyszczalnia
- na działce znajduje się studnia, do której odprowadzona jest woda opadowa z dachów
- woda ze studni przyłączona do obory
- wykonano odwodnienie budynków
Obora długość 30 m szerokość 10 m
- wykonano instalację elektryczną 230/400 V
- dodatkowe szambo
Stodoła długość 12 m oraz szerokość 10 m
Dom ogrzewany piecem na pellet klasy V + kominek z płaszczem wodnym ,
Na parterze ogrzewanie podłogowe, na poddaszu grzejniki.
Brama wjazdowa przesuwna elektryczna
ID: 1032049687
xxx xxx xxx
Dodane 02 grudnia 2025
Dom / Siedlisko NA SPRZEDAŻ Łozice-Cegielnia Bobolice
1 200 000 zł
Lokalizacja
Łozice-Cegielnia
Zachodniopomorskie