Prywatne
Cena za m²: 5842.11 zł/m²
Rynek: Pierwotny
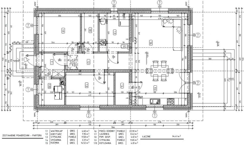
Powierzchnia: 95 m²
Powierzchnia działki: 814 m²
Rodzaj zabudowy: Wolnostojący
Liczba pięter: Parterowy
Opis
Dom z działką w cenie mieszkania.
Zaledwie 15 min od Białegostoku
w przepięknej miejscowości Królowy Most w otoczeniu lasów Puszczy Knyszyńskiej.
Lokalizacja :
- miejscowość Królowy Most
- gmina Gródek, powiat białostocki
- odległości od Grabówki, Zaścianek 13 km, od Białegostoku 16 km
tj. ok 15 min jazdy samochodem co stanowi duże udogodnienie zarówno dla osób dojeżdżających do pracy jak i ceniących popołudniowy spokój w urokliwym miejscu
* Nowy Dom parterowy, jednorodzinny
* Działka budowlana o pow. 814 m2, w kształcie prostokąta (22m x37m)
* Powierzchnia użytkowa domu: ok. 95 m2 plus poddasze.
* Technologia budowania - beton komórkowy
* przestronny salon z kuchnią z wyjściem na taras - 37,42 m2
* obok kuchni spiżarnia
* dodatkowy plus - do własnej aranżacji wnętrze
Media:
- prąd,
- studnia głębinowa,
- bezodpływowy zbiornik szczelny 9,9 m3 na nieczystości z płytą najazdową,
- dojazd drogą asfaltową.
- Budynek jest docieplony styropianem grafitowym 20 cm,
- Wykonana jest instalacja hydrauliczna (ogrzewanie podłogowe PE-RT/AL/PE-RT producent HERZ),
- Instalcja hydrauliczna wykonana do podłączenia kotła na pelet lub pompy ciepła
- Okna pakiet 3 szybowy 6 komorowe kolor antracyt na zewnątrz/ w środku białe;
- Pokrycie dachowe blacha ocynkowana trapezowa z powłoką SUPERIOR HB (30 lat gwarancji).
- Przewody elektryczne doprowadzone do sterowania bramą wjazdową i dzwonka.
- Ceramiczny system kominowy Rauch.
- Strop - belki stropowe. Wykonane są posadzki.
- Utwardzony wjazd, wyrównany teren.
- W cenie brama wjazdowa z bramką, bloczki betonowe na schody wejściowe i taras.
W pobliżu;
- Wieża widokowa na Górze św. Anny
- Zabytkowy Most nad rzeką Ploska
- Kaplica św. Anny w Królowym Moście (najstarszy zabytek w gminie Gródek zbudowana w ok. 1850r)
- Cerkiew św. Anny w Królowym Moście wybudowana w latach 1904-1928
- Zbiornik wodny i rzeczka Świniobród
- Ścieżka szlakiem Powstania Styczniowego
- Ścieżka rowerowa do Supraśla, Krynek i Jałówki (Zalew Siemianówka)
Możliwość obejrzenia nieruchomości po wcześniejszym kontakcie telefonicznym.
Oferta bezpośrednio od właściciela, bez pośredników, bez prowizji.
Nr kontaktowy : 883^555^625 lub 531^725^833
Zaledwie 15 min od Białegostoku
w przepięknej miejscowości Królowy Most w otoczeniu lasów Puszczy Knyszyńskiej.
Lokalizacja :
- miejscowość Królowy Most
- gmina Gródek, powiat białostocki
- odległości od Grabówki, Zaścianek 13 km, od Białegostoku 16 km
tj. ok 15 min jazdy samochodem co stanowi duże udogodnienie zarówno dla osób dojeżdżających do pracy jak i ceniących popołudniowy spokój w urokliwym miejscu
* Nowy Dom parterowy, jednorodzinny
* Działka budowlana o pow. 814 m2, w kształcie prostokąta (22m x37m)
* Powierzchnia użytkowa domu: ok. 95 m2 plus poddasze.
* Technologia budowania - beton komórkowy
* przestronny salon z kuchnią z wyjściem na taras - 37,42 m2
* obok kuchni spiżarnia
* dodatkowy plus - do własnej aranżacji wnętrze
Media:
- prąd,
- studnia głębinowa,
- bezodpływowy zbiornik szczelny 9,9 m3 na nieczystości z płytą najazdową,
- dojazd drogą asfaltową.
- Budynek jest docieplony styropianem grafitowym 20 cm,
- Wykonana jest instalacja hydrauliczna (ogrzewanie podłogowe PE-RT/AL/PE-RT producent HERZ),
- Instalcja hydrauliczna wykonana do podłączenia kotła na pelet lub pompy ciepła
- Okna pakiet 3 szybowy 6 komorowe kolor antracyt na zewnątrz/ w środku białe;
- Pokrycie dachowe blacha ocynkowana trapezowa z powłoką SUPERIOR HB (30 lat gwarancji).
- Przewody elektryczne doprowadzone do sterowania bramą wjazdową i dzwonka.
- Ceramiczny system kominowy Rauch.
- Strop - belki stropowe. Wykonane są posadzki.
- Utwardzony wjazd, wyrównany teren.
- W cenie brama wjazdowa z bramką, bloczki betonowe na schody wejściowe i taras.
W pobliżu;
- Wieża widokowa na Górze św. Anny
- Zabytkowy Most nad rzeką Ploska
- Kaplica św. Anny w Królowym Moście (najstarszy zabytek w gminie Gródek zbudowana w ok. 1850r)
- Cerkiew św. Anny w Królowym Moście wybudowana w latach 1904-1928
- Zbiornik wodny i rzeczka Świniobród
- Ścieżka szlakiem Powstania Styczniowego
- Ścieżka rowerowa do Supraśla, Krynek i Jałówki (Zalew Siemianówka)
Możliwość obejrzenia nieruchomości po wcześniejszym kontakcie telefonicznym.
Oferta bezpośrednio od właściciela, bez pośredników, bez prowizji.
Nr kontaktowy : 883^555^625 lub 531^725^833
ID: 1023073218
xxx xxx xxx
Dodane 30 września 2025
Dom parterowy w m. Królowy Most - 15 min od Białegostoku
555 000 zł
do negocjacji
Lokalizacja
Królowy Most
Podlaskie