Prywatne
Cena za m²: 5842.11 zł/m²
Rynek: Pierwotny
Powierzchnia: 95 m²
Powierzchnia działki: 814 m²
Rodzaj zabudowy: Wolnostojący
Liczba pięter: Parterowy
Opis
Dom z działką w cenie mieszkania | 15 min od Białegostoku | Królowy Most
Na sprzedaż nowy dom jednorodzinny parterowy położony w malowniczej miejscowości Królowy Most, w bezpośrednim sąsiedztwie lasów Puszczy Knyszyńskiej.
Idealne miejsce dla osób, które chcą mieszkać blisko natury, a jednocześnie szybko dojechać do miasta.
Lokalizacja:
Królowy Most – gmina Gródek, powiat białostocki
13 km od Grabówki i Zaścianka
16 km od Białegostoku
ok. 15 minut jazdy samochodem
Cisza, spokój, czyste powietrze – a po pracy wracasz do domu w urokliwym miejscu, nie na kolejne osiedle.
Działka:
- Powierzchnia: 814 m²
- Kształt: prostokąt (22 m x 37 m)
- utwardzony wjazd, wyrównany teren
- w cenie: brama wjazdowa z furtką, bloczki betonowe na schody i taras
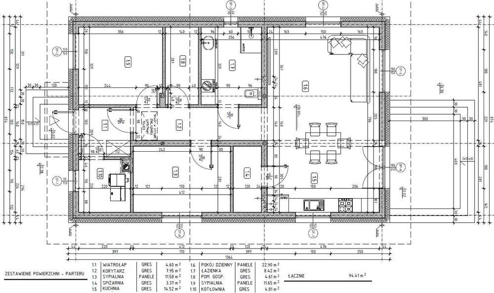
Dom:
- Powierzchnia użytkowa 95 m2 + poddasze
- Technologia budowania beton komórkowy
- przestronny salon z kuchnią z wyjściem na taras - 37,42 m2
- obok kuchni spiżarnia
- wnętrze do własnej aranżacji (dodatkowy plus)
Media:
- prąd,
- studnia głębinowa,
- bezodpływowy zbiornik szczelny 9,9 m3 na nieczystości z płytą najazdową,
- dojazd drogą asfaltową.
Standard i wykonanie:
- Budynek jest docieplony styropianem grafitowym 20 cm,
- Wykonana jest instalacja hydrauliczna (ogrzewanie podłogowe PE-RT/AL/PE-RT producent HERZ),
- Instalacja hydrauliczna wykonana do podłączenia kotła na pelet lub pompy ciepła
- Okna Sonarol pakiet 3 szybowy 6 komorowe kolor antracyt na zewnątrz/ w środku białe;
- Pokrycie dachowe blacha ocynkowana trapezowa z powłoką SUPERIOR HB (30 lat gwarancji).
- Przewody elektryczne doprowadzone do sterowania bramą wjazdową, dzwonka i domofonu
- Ceramiczny system kominowy Rauch.
- Strop - belki stropowe.
- Wykonane są posadzki.
Okolica - prawdziwy atut:
- wieża widokowa na Górze św. Anny
- zabytkowy most nad rzeką Płoska
- kaplica i cerkiew św. Anny
- zbiornik wodny i rzeczka Świniobród
- szlaki piesze i rowerowe (Supraśl – Krynki – Jałówka – Zalew Siemianówka)
- Kaplica św. Anny w Królowym Moście (najstarszy zabytek w gminie Gródek zbudowana w ok. 1850r)
- Cerkiew św. Anny w Królowym Moście wybudowana w latach 1904-1928
- Ścieżka szlakiem Powstania Styczniowego
Możliwość obejrzenia nieruchomości po wcześniejszym kontakcie telefonicznym.
Oferta bezpośrednio od właściciela, bez pośredników, bez prowizji.
Biurom pośrednictwa nieruchomości - dziękuję.
Nr kontaktowy : 883^555^625 lub 531^725^833
Na sprzedaż nowy dom jednorodzinny parterowy położony w malowniczej miejscowości Królowy Most, w bezpośrednim sąsiedztwie lasów Puszczy Knyszyńskiej.
Idealne miejsce dla osób, które chcą mieszkać blisko natury, a jednocześnie szybko dojechać do miasta.
Lokalizacja:
Królowy Most – gmina Gródek, powiat białostocki
13 km od Grabówki i Zaścianka
16 km od Białegostoku
ok. 15 minut jazdy samochodem
Cisza, spokój, czyste powietrze – a po pracy wracasz do domu w urokliwym miejscu, nie na kolejne osiedle.
Działka:
- Powierzchnia: 814 m²
- Kształt: prostokąt (22 m x 37 m)
- utwardzony wjazd, wyrównany teren
- w cenie: brama wjazdowa z furtką, bloczki betonowe na schody i taras
Dom:
- Powierzchnia użytkowa 95 m2 + poddasze
- Technologia budowania beton komórkowy
- przestronny salon z kuchnią z wyjściem na taras - 37,42 m2
- obok kuchni spiżarnia
- wnętrze do własnej aranżacji (dodatkowy plus)
Media:
- prąd,
- studnia głębinowa,
- bezodpływowy zbiornik szczelny 9,9 m3 na nieczystości z płytą najazdową,
- dojazd drogą asfaltową.
Standard i wykonanie:
- Budynek jest docieplony styropianem grafitowym 20 cm,
- Wykonana jest instalacja hydrauliczna (ogrzewanie podłogowe PE-RT/AL/PE-RT producent HERZ),
- Instalacja hydrauliczna wykonana do podłączenia kotła na pelet lub pompy ciepła
- Okna Sonarol pakiet 3 szybowy 6 komorowe kolor antracyt na zewnątrz/ w środku białe;
- Pokrycie dachowe blacha ocynkowana trapezowa z powłoką SUPERIOR HB (30 lat gwarancji).
- Przewody elektryczne doprowadzone do sterowania bramą wjazdową, dzwonka i domofonu
- Ceramiczny system kominowy Rauch.
- Strop - belki stropowe.
- Wykonane są posadzki.
Okolica - prawdziwy atut:
- wieża widokowa na Górze św. Anny
- zabytkowy most nad rzeką Płoska
- kaplica i cerkiew św. Anny
- zbiornik wodny i rzeczka Świniobród
- szlaki piesze i rowerowe (Supraśl – Krynki – Jałówka – Zalew Siemianówka)
- Kaplica św. Anny w Królowym Moście (najstarszy zabytek w gminie Gródek zbudowana w ok. 1850r)
- Cerkiew św. Anny w Królowym Moście wybudowana w latach 1904-1928
- Ścieżka szlakiem Powstania Styczniowego
Możliwość obejrzenia nieruchomości po wcześniejszym kontakcie telefonicznym.
Oferta bezpośrednio od właściciela, bez pośredników, bez prowizji.
Biurom pośrednictwa nieruchomości - dziękuję.
Nr kontaktowy : 883^555^625 lub 531^725^833
ID: 1023073218
xxx xxx xxx
Dodane 24 lutego 2026
Dom parterowy w m. Królowy Most - 15 min od Białegostoku
555 000 zł
Lokalizacja
Królowy Most
Podlaskie