Firmowe
Cena za m²: 3444.44 zł/m²
Rynek: Pierwotny
Powierzchnia: 135 m²
Powierzchnia działki: 1 000 m²
Rodzaj zabudowy: Wolnostojący
Liczba pięter: Parterowy
Opis
Dom w Słońsku k/ Inowrocławia w stanie surowym zamkniętym
Dom zbudowany z pustaków CERAMICZNYCH
Dach na wiązarach
Dach wzmocniony pod panele fotowoltaiczne przez co można wykorzystać całą połać dachu do paneli.
Dach przykryty czarną dachówką CREATON TITANIA
Rynny czarne metalowe
Okna 3 szybowe - Na zewnątrz kolor antracyt w środku białe
Rolety zewnętrzne elektryczne w kolorze antracytowym
Ocieplenie - styropian 20cm grafitowy
Tynk zewnętrzny biały baranek
W środku ścianki działowe.
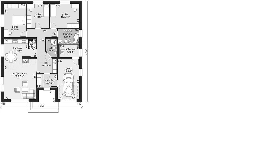
Do dyspozycji jest duży salon połączony z otwartą kuchnią . Znajdują się tu ponadto 3 pokoje, łazienka, wc oraz garaż.
Dom stanowi cześć powstającego nowego osiedla.
Projekt wg. Przy Słonecznej 6
W projekcie można nanosić zmiany w rozmieszczeniu ścian działowych
Budynek przygotowany do sprzedaży IV KW. 2025/ I 2026
Isnieje możliwość wykończenia domu do stanu dew. - odrebna wycena
( posadzki, tynki, CO, WOD- KAN, izolacja stropu, sufity itp)
Kupujący nie płaci opłaty PCC 2% .
Wszelkie informacje 5 0 8 3 4 6 1 4 6
Powyższa oferta nie stanowi oferty handlowej w rozumieniu Kodeksu Cywilnego
Dom zbudowany z pustaków CERAMICZNYCH
Dach na wiązarach
Dach wzmocniony pod panele fotowoltaiczne przez co można wykorzystać całą połać dachu do paneli.
Dach przykryty czarną dachówką CREATON TITANIA
Rynny czarne metalowe
Okna 3 szybowe - Na zewnątrz kolor antracyt w środku białe
Rolety zewnętrzne elektryczne w kolorze antracytowym
Ocieplenie - styropian 20cm grafitowy
Tynk zewnętrzny biały baranek
W środku ścianki działowe.
Do dyspozycji jest duży salon połączony z otwartą kuchnią . Znajdują się tu ponadto 3 pokoje, łazienka, wc oraz garaż.
Dom stanowi cześć powstającego nowego osiedla.
Projekt wg. Przy Słonecznej 6
W projekcie można nanosić zmiany w rozmieszczeniu ścian działowych
Budynek przygotowany do sprzedaży IV KW. 2025/ I 2026
Isnieje możliwość wykończenia domu do stanu dew. - odrebna wycena
( posadzki, tynki, CO, WOD- KAN, izolacja stropu, sufity itp)
Kupujący nie płaci opłaty PCC 2% .
Wszelkie informacje 5 0 8 3 4 6 1 4 6
Powyższa oferta nie stanowi oferty handlowej w rozumieniu Kodeksu Cywilnego
ID: 1033598013
xxx xxx xxx
Dodane 15 stycznia 2026
Dom parterowy SŁOŃSKO
465 000 zł
do negocjacji
Lokalizacja
Słońsko
Kujawsko-pomorskie