Firmowe
Cena za m²: 5029.94 zł/m²
Rynek: Pierwotny
Powierzchnia: 167 m²
Powierzchnia działki: 1 194 m²
Rodzaj zabudowy: Wolnostojący
Liczba pięter: Parterowy z użytkowym poddaszem
Opis
Ciężko znaleźć piękną działkę blisko Centrum handlowego w Mrągowie ?
Nie chcesz czekać na pozwolenia i użerać się z papierologia oraz szukaniem profesjonalnej ekipy do budowy domu ?
To ta oferta jest idealna dla Ciebie i zaoszczędzi przynajmniej kilkunastu miesięcy aby mieć na takim etapie budynek i zdrowia ,)
BEZ PROWIZJI OD KUPUJACEGO,
BEZ PODATKU PCC
MOŻLIWA ZAMIANA NA INNĄ NIERUCHOMOŚĆ
Pozwolenie na budowę budynku mieszkalnego oraz wolnostojącego garażu ,)
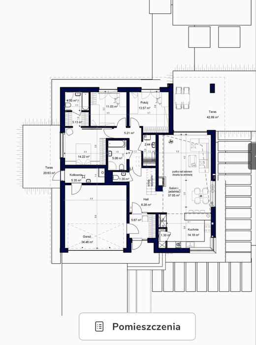
Budynek Wolnostojący parterowy w stanie surowym otwartym z bardzo dobrym układem pomieszczeń położony w cichym miejscu z dala od głównej ulicy przy samej granicy z Mrągowem na działce o pow. około 1194m2.
(Projekt domu - DOMIDEA 3 LUSTRO)
Wnętrza budynku w stanie surowym bez ścian działowych pozwalają na dowolną aranżację i dostosowanie do indywidualnych potrzeb.
PARTER o powierzchni 167 m2 - można wyodrębnić spokojnie 5-6 pokoi i garaż dwustanowiskowy, dodatkowo nad parterem znajduję się poddasze o pow. 60,69m2.
Media: woda miejska, kanalizacja, prąd, światłowód w drodze.
Bez podatku PCC.
Inwestycja położona w sąsiedztwie nowej zabudowy domów jednorodzinnych . W odległości 500 m znajduje się przystanek autobusowy, sklepy, szkoła, pełna infrastruktura.
Możliwość przerobienia garażu na pokoje itp.
Jest możliwość wykończenia mieszkania pod klucz
Powyższy opis ma charakter informacyjny i nie stanowi oferty w rozumieniu przepisów Kodeksu Cywilnego.
Nie chcesz czekać na pozwolenia i użerać się z papierologia oraz szukaniem profesjonalnej ekipy do budowy domu ?
To ta oferta jest idealna dla Ciebie i zaoszczędzi przynajmniej kilkunastu miesięcy aby mieć na takim etapie budynek i zdrowia ,)
BEZ PROWIZJI OD KUPUJACEGO,
BEZ PODATKU PCC
MOŻLIWA ZAMIANA NA INNĄ NIERUCHOMOŚĆ
Pozwolenie na budowę budynku mieszkalnego oraz wolnostojącego garażu ,)
Budynek Wolnostojący parterowy w stanie surowym otwartym z bardzo dobrym układem pomieszczeń położony w cichym miejscu z dala od głównej ulicy przy samej granicy z Mrągowem na działce o pow. około 1194m2.
(Projekt domu - DOMIDEA 3 LUSTRO)
Wnętrza budynku w stanie surowym bez ścian działowych pozwalają na dowolną aranżację i dostosowanie do indywidualnych potrzeb.
PARTER o powierzchni 167 m2 - można wyodrębnić spokojnie 5-6 pokoi i garaż dwustanowiskowy, dodatkowo nad parterem znajduję się poddasze o pow. 60,69m2.
Media: woda miejska, kanalizacja, prąd, światłowód w drodze.
Bez podatku PCC.
Inwestycja położona w sąsiedztwie nowej zabudowy domów jednorodzinnych . W odległości 500 m znajduje się przystanek autobusowy, sklepy, szkoła, pełna infrastruktura.
Możliwość przerobienia garażu na pokoje itp.
Jest możliwość wykończenia mieszkania pod klucz
Powyższy opis ma charakter informacyjny i nie stanowi oferty w rozumieniu przepisów Kodeksu Cywilnego.
ID: 981791618
xxx xxx xxx
Dodane 13 listopada 2025
Dom parterowy - 167m2 - stan surowy
840 000 zł
do negocjacji
Lokalizacja
Mrągowo
Warmińsko-mazurskie