Prywatne
Cena za m²: 3284.31 zł/m²
Rynek: Pierwotny
Powierzchnia: 102 m²
Powierzchnia działki: 713 m²
Rodzaj zabudowy: Wolnostojący
Liczba pięter: Parterowy
Opis
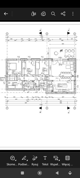
Na sprzedaż dom ,działka 713m2
Powierzchnia mieszkalna 102 m2 Lokalizacja Radziwiłów .
Możliwość sprzedaży w stanie surowym otwartym .
Dom budowany z pustaka szlifowanego Leier Thermopor który wykazuje bdb parametry izolacyjności termicznej Świetny układ pomieszczeń z wysokim sufitem w salonie . Dom posadowiony w bliskiej okolicy lasów cisza i spokój a tylko 50 m od drogi gminnej asfaltowej .Wybudowany przy granicy działki więc pozostaje dużo miejsca na zagospodarowanie działki.Stan surowy otwarty obejmuje mury wraz ze ścianami działowymi ,izolacja fundamentu styrodurem ,wiązary wraz z deskowaniem oraz membraną.Bedzie doprowadzona woda jak i prąd na dniach ,w warunkach zabudowy szambo .Będzie też utwardzona droga ,materiał już czeka na działce Zapraszam do kontaktu 69*****07.
Powierzchnia mieszkalna 102 m2 Lokalizacja Radziwiłów .
Możliwość sprzedaży w stanie surowym otwartym .
Dom budowany z pustaka szlifowanego Leier Thermopor który wykazuje bdb parametry izolacyjności termicznej Świetny układ pomieszczeń z wysokim sufitem w salonie . Dom posadowiony w bliskiej okolicy lasów cisza i spokój a tylko 50 m od drogi gminnej asfaltowej .Wybudowany przy granicy działki więc pozostaje dużo miejsca na zagospodarowanie działki.Stan surowy otwarty obejmuje mury wraz ze ścianami działowymi ,izolacja fundamentu styrodurem ,wiązary wraz z deskowaniem oraz membraną.Bedzie doprowadzona woda jak i prąd na dniach ,w warunkach zabudowy szambo .Będzie też utwardzona droga ,materiał już czeka na działce Zapraszam do kontaktu 69*****07.
ID: 1023932566
xxx xxx xxx
Dodane 05 października 2025
Dom na sprzedaż w stanie surowym otwartym
335 000 zł
do negocjacji
Lokalizacja
Radziwiłłów
Wielkopolskie