Prywatne
Cena za m²: 7682.69 zł/m²
Rynek: Pierwotny
Powierzchnia: 104 m²
Powierzchnia działki: 950 m²
Rodzaj zabudowy: Wolnostojący
Liczba pięter: Parterowy
Opis
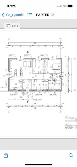
Dzień dobry, mam do zaoferowania wyjątkowy, nowoczesny dom parterowy o przemyślanym układzie i wysokim standardzie wykonania. Nieruchomość składa się z czterech pokoi, łazienki oraz pomieszczenia technicznego (kotłowni). Jest to dom murowany o powierzchni zabudowy 130 m² oraz powierzchni użytkowej 104 m², wykonany w technologii energooszczędnej, zapewniającej komfort i niskie koszty utrzymania.
Budynek z zewnątrz został solidnie ocieplony 20 cm styropianu i wykończony eleganckim białym tynkiem, natomiast wnętrze docieplono celulozą, co przekłada się na bardzo dobrą izolację termiczną oraz przyjemny klimat wewnątrz przez cały rok.
Jednym z największych atutów tej nieruchomości są dwa przestronne tarasy wykonane z kostki brukowej Visio w kolorze antracyt. To idealna przestrzeń do odpoczynku, ustawienia mebli ogrodowych i spędzania czasu na świeżym powietrzu. Dodatkowo wokół domu wykonano estetyczną opaskę z tej samej kostki, co nadaje całości spójny, nowoczesny i bardzo elegancki wygląd.
Dodatkowo w cenie nieruchomości: na głównym tarasie zostanie zamontowana nowoczesna, bioklimatyczna pergola tarasowa w kolorze antracyt, która zapewni komfort wypoczynku niezależnie od pogody.
Dom usytuowany jest na dużej działce o powierzchni około 1000 m², w otoczeniu nowych domów jednorodzinnych. Okolica jest spokojna i cicha, a jednocześnie świetnie zorganizowana. Ogromnym atutem jest bliskość lasu, która daje możliwość spacerów, aktywności na świeżym powietrzu oraz codziennego odpoczynku w naturalnym otoczeniu. W niedalekiej odległości znajduje się również pełna infrastruktura miasta – sklepy, usługi, szkoły, przedszkola i pozostałe udogodnienia, które znacząco ułatwiają codzienne funkcjonowanie. Sąsiedztwo jest przyjazne i pomocne, co dodatkowo podkreśla komfort życia w tym miejscu.
Nieruchomość zostanie sprzedana jako w pełni przygotowana i dopracowana przestrzeń zewnętrzna – na działce powstanie w pełni urządzony ogród, obejmujący rabaty z nasadzeniami oraz ok. 100 sztuk tui, które zapewnią wysoki poziom prywatności i stworzą zieloną, estetyczną osłonę. Wszystko będzie gotowe w momencie sprzedaży domu, co oznacza, że kupujący otrzyma kompletną, dopracowaną nieruchomość bez konieczności organizowania dodatkowych prac.
Dom wyposażony jest w okna trzyszybowe oraz solidne drzwi wejściowe marki KMT, a całość spełnia wymogi programu „Czyste Powietrze”. W budynku przygotowano instalację rekuperacji, która pozwala na odzysk ciepła i realne oszczędności w skali roku na poziomie około 30%. W całym domu rozprowadzono ogrzewanie podłogowe, zapewniające równomierne, komfortowe i ekonomiczne ogrzewanie.
Na terenie działki znajduje się również wkopana butla gazowa o pojemności 2700 litrów, zatankowana do pełna, co gwarantuje wygodę i brak dodatkowych kosztów ogrzewania przez długi czas. Wnętrze domu posiada kompletną instalację elektryczną z gniazdkami i włącznikami oraz wykonane tynki gipsowe, dzięki czemu budynek jest gotowy do dalszych prac wykończeniowych według własnego gustu.
Lokalizacja to kolejny mocny punkt: bardzo bliska odległość od stacji PKP – około 1 km, a do Łodzi około 20 km, co zapewnia szybki i wygodny dojazd zarówno do pracy, jak i do miasta.
To oferta dla osób, które szukają domu innego niż wszystkie – dopracowanego, energooszczędnego, z dużą działką i gotową, urządzoną przestrzenią zewnętrzną. Domów takich jak ten po prostu nie ma – tu wszystko zostało zaplanowane tak, aby wprowadzić się i cieszyć komfortem od pierwszego dnia.
Budynek z zewnątrz został solidnie ocieplony 20 cm styropianu i wykończony eleganckim białym tynkiem, natomiast wnętrze docieplono celulozą, co przekłada się na bardzo dobrą izolację termiczną oraz przyjemny klimat wewnątrz przez cały rok.
Jednym z największych atutów tej nieruchomości są dwa przestronne tarasy wykonane z kostki brukowej Visio w kolorze antracyt. To idealna przestrzeń do odpoczynku, ustawienia mebli ogrodowych i spędzania czasu na świeżym powietrzu. Dodatkowo wokół domu wykonano estetyczną opaskę z tej samej kostki, co nadaje całości spójny, nowoczesny i bardzo elegancki wygląd.
Dodatkowo w cenie nieruchomości: na głównym tarasie zostanie zamontowana nowoczesna, bioklimatyczna pergola tarasowa w kolorze antracyt, która zapewni komfort wypoczynku niezależnie od pogody.
Dom usytuowany jest na dużej działce o powierzchni około 1000 m², w otoczeniu nowych domów jednorodzinnych. Okolica jest spokojna i cicha, a jednocześnie świetnie zorganizowana. Ogromnym atutem jest bliskość lasu, która daje możliwość spacerów, aktywności na świeżym powietrzu oraz codziennego odpoczynku w naturalnym otoczeniu. W niedalekiej odległości znajduje się również pełna infrastruktura miasta – sklepy, usługi, szkoły, przedszkola i pozostałe udogodnienia, które znacząco ułatwiają codzienne funkcjonowanie. Sąsiedztwo jest przyjazne i pomocne, co dodatkowo podkreśla komfort życia w tym miejscu.
Nieruchomość zostanie sprzedana jako w pełni przygotowana i dopracowana przestrzeń zewnętrzna – na działce powstanie w pełni urządzony ogród, obejmujący rabaty z nasadzeniami oraz ok. 100 sztuk tui, które zapewnią wysoki poziom prywatności i stworzą zieloną, estetyczną osłonę. Wszystko będzie gotowe w momencie sprzedaży domu, co oznacza, że kupujący otrzyma kompletną, dopracowaną nieruchomość bez konieczności organizowania dodatkowych prac.
Dom wyposażony jest w okna trzyszybowe oraz solidne drzwi wejściowe marki KMT, a całość spełnia wymogi programu „Czyste Powietrze”. W budynku przygotowano instalację rekuperacji, która pozwala na odzysk ciepła i realne oszczędności w skali roku na poziomie około 30%. W całym domu rozprowadzono ogrzewanie podłogowe, zapewniające równomierne, komfortowe i ekonomiczne ogrzewanie.
Na terenie działki znajduje się również wkopana butla gazowa o pojemności 2700 litrów, zatankowana do pełna, co gwarantuje wygodę i brak dodatkowych kosztów ogrzewania przez długi czas. Wnętrze domu posiada kompletną instalację elektryczną z gniazdkami i włącznikami oraz wykonane tynki gipsowe, dzięki czemu budynek jest gotowy do dalszych prac wykończeniowych według własnego gustu.
Lokalizacja to kolejny mocny punkt: bardzo bliska odległość od stacji PKP – około 1 km, a do Łodzi około 20 km, co zapewnia szybki i wygodny dojazd zarówno do pracy, jak i do miasta.
To oferta dla osób, które szukają domu innego niż wszystkie – dopracowanego, energooszczędnego, z dużą działką i gotową, urządzoną przestrzenią zewnętrzną. Domów takich jak ten po prostu nie ma – tu wszystko zostało zaplanowane tak, aby wprowadzić się i cieszyć komfortem od pierwszego dnia.
ID: 1055743263
xxx xxx xxx
Dodane 17 lutego 2026
Dom na sprzedaż Gałków Mały
799 000 zł
Lokalizacja
Koluszki
Łódzkie