Prywatne
Cena za m²: 2275.64 zł/m²
Rynek: Pierwotny
Powierzchnia: 156 m²
Powierzchnia działki: 726 m²
Rodzaj zabudowy: Wolnostojący
Liczba pięter: Parterowy z użytkowym poddaszem
Opis
Sprzedam dom jednorodzinny wolnostojący, położony przy ulicy Wojciecha Jankowskiego w Kotlinie.
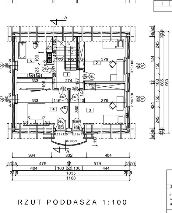
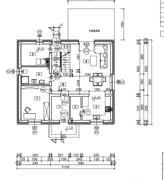
Powierzchnia domu parter-78,34m², poddasze - 77,89m² ( mierzonych po podłodze, w tym 65.13 m² użytkowych.) Bardzo kompaktowe ułożenie pomieszczeń. Parter - Salon z aneksem kuchennym oraz spizarką, pokój, łazienka oraz kotłownia. Poddasze - 3 sypialnie oraz łazienka.
Dom w trakcie budowy, zakończenie prac planowane na październik 2025. Dom w stanie surowym otwartym, wybudowany w tradycyjnej technologii. Fundamenty z bloczka betonowego, zaizolowane oraz ocieplone. Wylana chuda posadzka. Ściany wykonane z cegły ceramicznej. Schody żelbetowe Strop wykonany w technologi teriva. Dach pokryty membrana oraz dachówka ceramiczna Roben Monza antracyt.
Działka o powierzchni 726m², bardzo spokojna okolica, w pobliżu liczne sklepy m.in biedronka, urząd gminy oraz bank. Po więcej informacji zapraszam w wiadomości olx lub pod podanym numerem telefonu.
Powierzchnia domu parter-78,34m², poddasze - 77,89m² ( mierzonych po podłodze, w tym 65.13 m² użytkowych.) Bardzo kompaktowe ułożenie pomieszczeń. Parter - Salon z aneksem kuchennym oraz spizarką, pokój, łazienka oraz kotłownia. Poddasze - 3 sypialnie oraz łazienka.
Dom w trakcie budowy, zakończenie prac planowane na październik 2025. Dom w stanie surowym otwartym, wybudowany w tradycyjnej technologii. Fundamenty z bloczka betonowego, zaizolowane oraz ocieplone. Wylana chuda posadzka. Ściany wykonane z cegły ceramicznej. Schody żelbetowe Strop wykonany w technologi teriva. Dach pokryty membrana oraz dachówka ceramiczna Roben Monza antracyt.
Działka o powierzchni 726m², bardzo spokojna okolica, w pobliżu liczne sklepy m.in biedronka, urząd gminy oraz bank. Po więcej informacji zapraszam w wiadomości olx lub pod podanym numerem telefonu.
ID: 1005723121
xxx xxx xxx
Dodane 12 października 2025
Dom jednorodzinny, wolnostojący, stan surowy otwarty.
355 000 zł
Lokalizacja
Kotlin
Wielkopolskie