Prywatne
Cena za m²: 4577.58 zł/m²
Rynek: Pierwotny
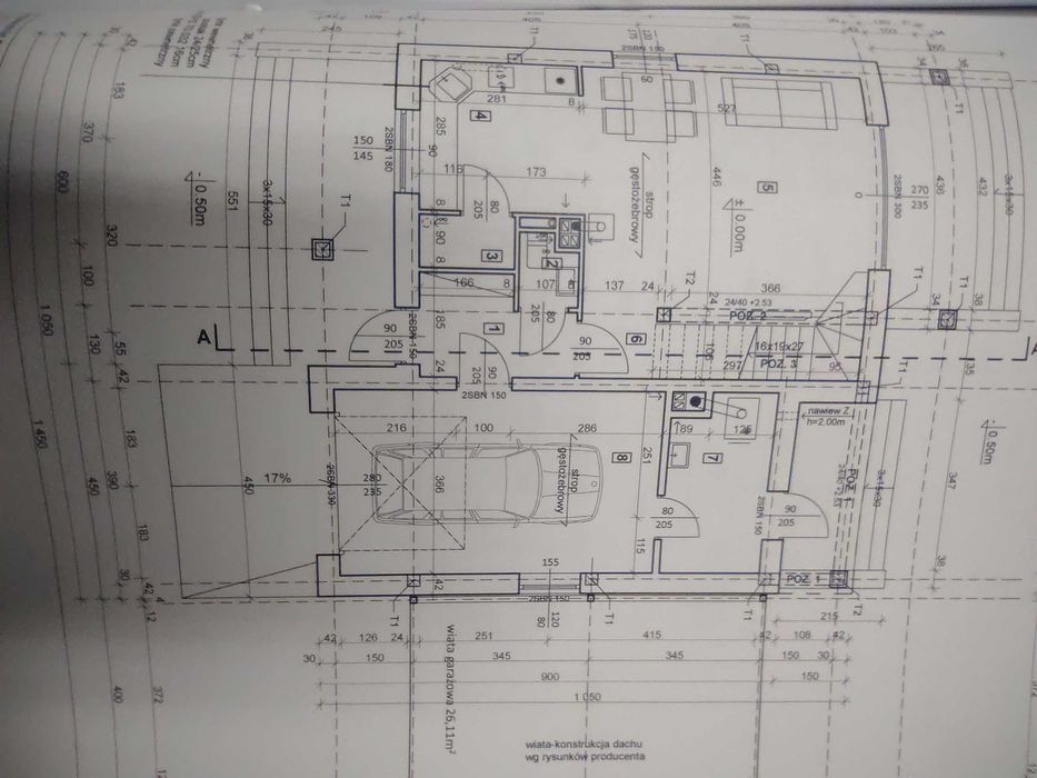
Powierzchnia: 124,52 m²
Powierzchnia działki: 524 m²
Rodzaj zabudowy: Wolnostojący
Liczba pięter: Parterowy z użytkowym poddaszem
Opis
Oferta Sprzedaży Domu Jednorodzinnego w Stanie Surowym Zamkniętym
Z przyjemnością prezentuje Państwu ofertę sprzedaży nowo wybudowanego domu jednorodzinnego w stanie surowym zamkniętym. Ta wyjątkowa nieruchomość oferuje możliwość własnej aranżacji, umożliwiając dostosowanie wnętrz do indywidualnych preferencji i potrzeb przyszłych właścicieli.
**Lokalizacja:**
Nieruchomość znajduje się w Makowcu k. Radomia, zapewniając jednocześnie bliskość do terenów zielonych oraz dogodną komunikację z centrum miasta. Spokojna okolica oraz sąsiedztwo innych nowoczesnych domów jednorodzinnych sprawiają, że jest to idealne miejsce dla rodzin i osób ceniących sielski charakter.
**Parametry Techniczne:**
- Powierzchnia działki: 524m2
- Powierzchnia użytkowa domu: 124,52m2
- Liczba kondygnacji: 1
- Rodzaj konstrukcji: budynek wykonany z solidnych materiałów, z zastosowaniem nowoczesnych rozwiązań budowlanych.
**Stan Surowy Zamknięty:**
Dom został wybudowany w stanie surowym zamkniętym, co oznacza kompletną konstrukcję z dachem, otwory okienne i drzwiowe.
. Nieruchomość jest gotowa do dalszych prac wykończeniowych, pozostawiając przyszłym właścicielom pełną swobodę w kształtowaniu wnętrza według własnych gustów.
**Media i Wyposażenie:**
Nieruchomość została podłączona do istniejących mediów, a także przygotowana pod instalację systemów ogrzewania, wentylacji i klimatyzacji. Nowi właściciele mogą dostosować dom do swoich indywidualnych preferencji pod względem technologii i wygody.
**Cena:**
Za tę atrakcyjną nieruchomość w stanie surowym zamkniętym, proponuję cenę 570000 złotych.
Zapraszam do kontaktu w celu uzyskania dodatkowych informacji oraz umówienia się na prezentację. To doskonała okazja, aby stać się właścicielem wymarzonego domu i wprowadzić się do nowoczesnej przestrzeni dostosowanej do własnych potrzeb. Istnieje możliwość wykończenia domu do stanu deweloperskiego.
Z przyjemnością prezentuje Państwu ofertę sprzedaży nowo wybudowanego domu jednorodzinnego w stanie surowym zamkniętym. Ta wyjątkowa nieruchomość oferuje możliwość własnej aranżacji, umożliwiając dostosowanie wnętrz do indywidualnych preferencji i potrzeb przyszłych właścicieli.
**Lokalizacja:**
Nieruchomość znajduje się w Makowcu k. Radomia, zapewniając jednocześnie bliskość do terenów zielonych oraz dogodną komunikację z centrum miasta. Spokojna okolica oraz sąsiedztwo innych nowoczesnych domów jednorodzinnych sprawiają, że jest to idealne miejsce dla rodzin i osób ceniących sielski charakter.
**Parametry Techniczne:**
- Powierzchnia działki: 524m2
- Powierzchnia użytkowa domu: 124,52m2
- Liczba kondygnacji: 1
- Rodzaj konstrukcji: budynek wykonany z solidnych materiałów, z zastosowaniem nowoczesnych rozwiązań budowlanych.
**Stan Surowy Zamknięty:**
Dom został wybudowany w stanie surowym zamkniętym, co oznacza kompletną konstrukcję z dachem, otwory okienne i drzwiowe.
. Nieruchomość jest gotowa do dalszych prac wykończeniowych, pozostawiając przyszłym właścicielom pełną swobodę w kształtowaniu wnętrza według własnych gustów.
**Media i Wyposażenie:**
Nieruchomość została podłączona do istniejących mediów, a także przygotowana pod instalację systemów ogrzewania, wentylacji i klimatyzacji. Nowi właściciele mogą dostosować dom do swoich indywidualnych preferencji pod względem technologii i wygody.
**Cena:**
Za tę atrakcyjną nieruchomość w stanie surowym zamkniętym, proponuję cenę 570000 złotych.
Zapraszam do kontaktu w celu uzyskania dodatkowych informacji oraz umówienia się na prezentację. To doskonała okazja, aby stać się właścicielem wymarzonego domu i wprowadzić się do nowoczesnej przestrzeni dostosowanej do własnych potrzeb. Istnieje możliwość wykończenia domu do stanu deweloperskiego.
ID: 891819575
xxx xxx xxx
Dodane 17 października 2025
Dom jednorodzinny Radom Makowiec
570 000 zł
Lokalizacja
Makowiec
Mazowieckie