Prywatne
Cena za m²: 2753.68 zł/m²
Rynek: Pierwotny
Powierzchnia: 272 m²
Powierzchnia działki: 1 900 m²
Rodzaj zabudowy: Wolnostojący
Liczba pięter: Parterowy z użytkowym poddaszem
Opis
Nieruchomość położona w zielonej, spokojnej części Jezierni (gm. Tomaszów Lubelski), wśród zabudowy domów jednorodzinnych. Budynek w stanie surowym zamkniętym, z dachem z blachodachówki i oknami trzyszybowymi. Realizacja zgodna z zatwierdzonym projektem budowlanym; zastosowano materiały wysokiej jakości.
Szybkie informacje
Lokalizacja Jeziernia, gm. Tomaszów Lubelski
Pow. działki ok. 19 arów (teren płaski, wyrównany)
Pow. całkowita budynku ok. 241,7 m² (parter + poddasze)
Pow. mieszkalna ok. 180,7 m² (bez garażu i kotłowni)
Status:
Stan surowy zamknięty (dach + stolarka okienna)
Dojazd bezpośrednio z drogi publicznej; spokojne sąsiedztwo
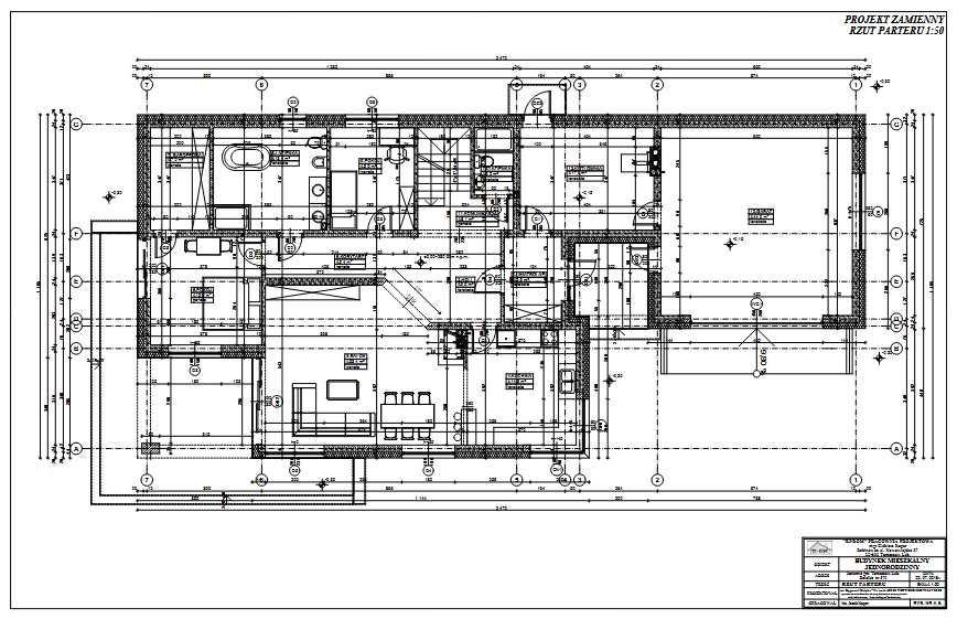
Parter (całkowita): 176,1 m²
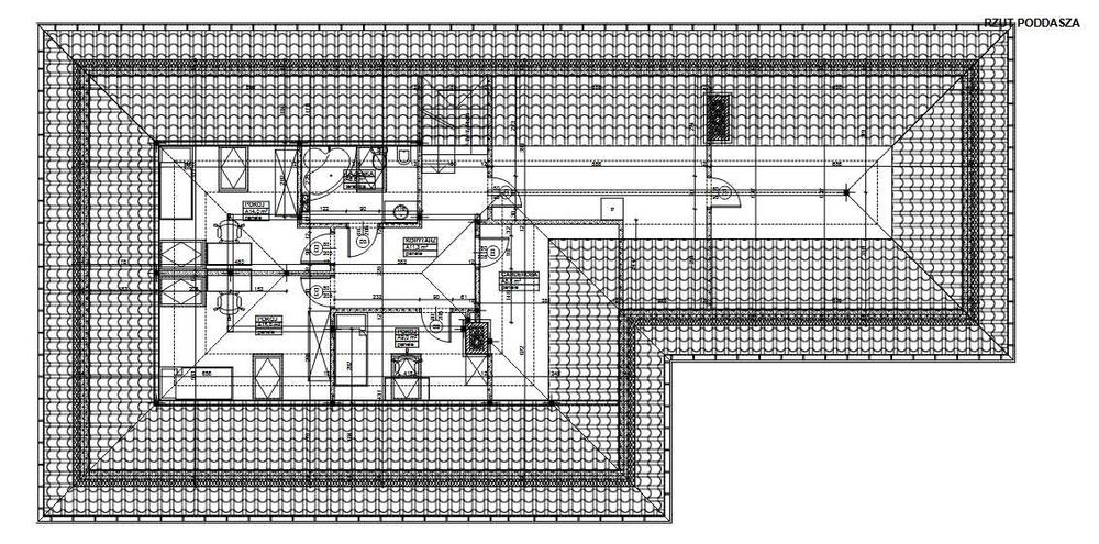
Poddasze: 65,6 m²
Razem: 241,7 m²
Technologia: tradycyjna + strop Technobeton
Powierzchnie zgodnie z rzutami projektowymi (mogą nieznacznie różnić się po inwentaryzacji powykonawczej).
Opis i atuty lokalizacji
Działka: ok. 19 a – ustawna, zielona, wśród domów jednorodzinnych.
Otoczenie: cicha ulica, szybki dojazd do Tomaszowa Lubelskiego.
Linia zabudowy: zgodnie z decyzją – min. 5,0 m od krawędzi drogi publicznej dla budynków przeznaczonych na stały pobyt ludzi.
Specyfikacja techniczna (z projektu)
Ściany: murowane z bloczków (gr. 24 cm) na zaprawie cem.-wap.; technologia tradycyjna.
Strop: Technobeton (na zamówienie)
Dach: konstrukcja drewniana jętkowa, pokrycie blachodachówką.
Stan: surowy zamknięty – budynek przykryty, wstawione okna.
Media i instalacje (zgodnie z projektem)
Woda: przyłącze wodociągowe (złącze/uzbrojenie projektowane).
Kanalizacja: szambo – szczelny zbiornik na ścieki (projektowany).
Prąd: projektowane przyłącze energetyczne (złącznik/rozdzielnia).
Gaz: przyłącze gazowe + instalacja wewnętrzna projektowana.
Instalacje wewnętrzne: elektryczna, wod.-kan., sanitarna, gazowa – przewidziane w projekcie.
Parter – zestawienie pomieszczeń
Nr Pomieszczenie Pow. (m²) Posadzka (proj.)
1 Wiatrołap 5,6 terakota
2 Hol 9,5 terakota
3 Salon 33,4 panele
4 Kuchnia 14,8 terakota
5 Korytarz 6,4 panele
6 Pokój 13,8 panele
7 Garderoba 7,0 panele
8 Łazienka 13,4 terakota
9 Pokój 9,9 panele
10 Łazienka (mała) 3,2 terakota
11 Komunikacja 8,1 panele
12 Kotłownia 17,0 terakota
13 Garaż 44,0 terakota
Suma – parter (całkowita) 176,1
Suma – część mieszkalna (bez garażu i kotłowni) ≈ 115,1
Poddasze – zestawienie pomieszczeń
Nr Pomieszczenie Pow. (m²) Posadzka (proj.)
1 Pokój 14,0 panele
2 Pokój 15,9 panele
3 Pokój 9,0 panele
4 Łazienka 6,6 terakota
5 Korytarz 11,3 panele
6 Garderoba 8,8 panele
7 Strych
Suma – poddasze 65 + strych
Szybkie informacje
Lokalizacja Jeziernia, gm. Tomaszów Lubelski
Pow. działki ok. 19 arów (teren płaski, wyrównany)
Pow. całkowita budynku ok. 241,7 m² (parter + poddasze)
Pow. mieszkalna ok. 180,7 m² (bez garażu i kotłowni)
Status:
Stan surowy zamknięty (dach + stolarka okienna)
Dojazd bezpośrednio z drogi publicznej; spokojne sąsiedztwo
Parter (całkowita): 176,1 m²
Poddasze: 65,6 m²
Razem: 241,7 m²
Technologia: tradycyjna + strop Technobeton
Powierzchnie zgodnie z rzutami projektowymi (mogą nieznacznie różnić się po inwentaryzacji powykonawczej).
Opis i atuty lokalizacji
Działka: ok. 19 a – ustawna, zielona, wśród domów jednorodzinnych.
Otoczenie: cicha ulica, szybki dojazd do Tomaszowa Lubelskiego.
Linia zabudowy: zgodnie z decyzją – min. 5,0 m od krawędzi drogi publicznej dla budynków przeznaczonych na stały pobyt ludzi.
Specyfikacja techniczna (z projektu)
Ściany: murowane z bloczków (gr. 24 cm) na zaprawie cem.-wap.; technologia tradycyjna.
Strop: Technobeton (na zamówienie)
Dach: konstrukcja drewniana jętkowa, pokrycie blachodachówką.
Stan: surowy zamknięty – budynek przykryty, wstawione okna.
Media i instalacje (zgodnie z projektem)
Woda: przyłącze wodociągowe (złącze/uzbrojenie projektowane).
Kanalizacja: szambo – szczelny zbiornik na ścieki (projektowany).
Prąd: projektowane przyłącze energetyczne (złącznik/rozdzielnia).
Gaz: przyłącze gazowe + instalacja wewnętrzna projektowana.
Instalacje wewnętrzne: elektryczna, wod.-kan., sanitarna, gazowa – przewidziane w projekcie.
Parter – zestawienie pomieszczeń
Nr Pomieszczenie Pow. (m²) Posadzka (proj.)
1 Wiatrołap 5,6 terakota
2 Hol 9,5 terakota
3 Salon 33,4 panele
4 Kuchnia 14,8 terakota
5 Korytarz 6,4 panele
6 Pokój 13,8 panele
7 Garderoba 7,0 panele
8 Łazienka 13,4 terakota
9 Pokój 9,9 panele
10 Łazienka (mała) 3,2 terakota
11 Komunikacja 8,1 panele
12 Kotłownia 17,0 terakota
13 Garaż 44,0 terakota
Suma – parter (całkowita) 176,1
Suma – część mieszkalna (bez garażu i kotłowni) ≈ 115,1
Poddasze – zestawienie pomieszczeń
Nr Pomieszczenie Pow. (m²) Posadzka (proj.)
1 Pokój 14,0 panele
2 Pokój 15,9 panele
3 Pokój 9,0 panele
4 Łazienka 6,6 terakota
5 Korytarz 11,3 panele
6 Garderoba 8,8 panele
7 Strych
Suma – poddasze 65 + strych
ID: 1034818077
xxx xxx xxx
Dodane 28 października 2025
Dom jednorodzinny parterowy + poddasze 272m2 19ar Jeziernia ROZTOCZE
749 000 zł
Lokalizacja
Tomaszów Lubelski
Lubelskie