Prywatne
Cena za m²: 6504.81 zł/m²
Rynek: Pierwotny
Powierzchnia: 106,06 m²
Powierzchnia działki: 1 100 m²
Rodzaj zabudowy: Wolnostojący
Liczba pięter: Parterowy
Opis
WWW.DOMYGORZOW.PL
Dom w cenie mieszkania
FIRMA OFERUJĘ 2 WARIANTY:
Stan surowy zamknięty z działką 480 000zł BRUTTO
Stan deweloperski z działką 689 900 zl BRUTTO
PREZENTOWANE DOMY SĄ OFERTAMI AKTUALNYMI
GŁÓWNYM WYKONAWCĄ JEST FIRMA DOMY GORZÓW DANIEL ŚWIĄTKOWSKI
-KUPUJĄC U NAS DOM KUPUJĄCY ZWOLNIONY JEST Z PODATKU PCC 2 %
-WYSTAWIAMY FAKTURĘ VAT
-ZAPEWNIAMY 2 LETNIĄ GWARANCJĘ I SŁUŻYMY DOBRĄ RADĄ
- DOM ENERGOOSZCZĘDNY
- DUŻE DZIAŁKI
- GWARANCJA DOMU
-JAKOŚĆ WYKONANIA
-ZADOWOLONY KLIENT
-DUŻE DZIAŁKI
TO GŁÓWNE ATUTY NASZEJ FIRMY ZAUFAJ SPECJALISTĄ
DOMY W ZABUDOWIE WOLNOSTOJĄCEJ w m. Gorzów Wielkopolski /BACZYNA-RACŁAW
Opis:
STAN DEWELOPERSKI :
-OGRZEWANIE PODŁOGOWE WYLEWKA JASTRYCH
-TYNKI MASZYNOWE
-PODWIESZANE SUFITY WRAZ Z ŁĄCZENIAMI I SZPACHLEM
-ELEWACJA PLUS STRUKTURA NATRYSKOWA
-PODBITKA
-OKNA 3 SZYBOWE Z CIEPŁĄ RAMKĄ
-DRZWI WEJŚCIOWE
-NADMUCHANA CELULOZA NA STROPIE
-BIAŁY MONTAŻ (KONTAKTY PLUS WŁĄCZNIKI)
-SZAMBO
- DRABINKA Z WŁAZEM NA STRYCH
- INSTSLACJA SANITARNA
- INSTALACJA ELEKTRYCZNA
USŁUGI DODOATKOWE :
- NA ŻYCZENIE KLIENTA, MOŻLIWOŚĆ POSZPACHLOWANIA I POMALOWANIA ŚCIANY NATRYSKOWO W KOLORZE BIAŁYM . CENA DO UZGODNIENIA
OPIS DOMU :
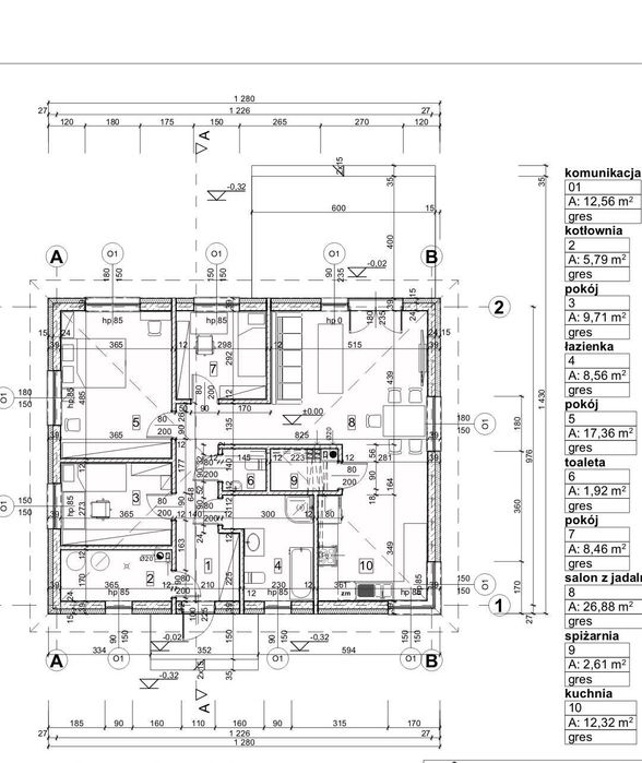
Do dyspozycji mieszkańców jest duży salon połączony z otwartą kuchnią, w sąsiedztwie której znalazła się praktyczna spiżarnia. Znajdują się tu ponadto 3 ustawne pokoje, łazienka, wc oraz kotłownia
01.Wiatrołap
02.Łazienka + wc
03.Wc
04.Spiżarnia
05.Kuchnia
06.Salon + jadalnia
07.Pokój
08.Pokój
09.Komunikacja
10.Pokój
11.Kotłownia lub suszarnia w zależności od rodzaju ogrzewania domu
SUMA POWIERZCHNI UŻYTKOWYCH: 106,06m²
Dodatkowo strych ok 20m2
SPECYFIKACJA
Dom energooszczędny:
-fundament tradycyjny wybudowany z bloczków betonowych
(odizolowany papą, zabezpieczony dysperbitem i docieplony styropianem XPS )
-ściany nośne i wewnętrzne wybudowane z solbetu
(zewnętrzne 24 cm wewnętrzne 12 cm)
-wiązary prefabrykowane
-dachówka benders
-podwieszony sufit na profilach cd wraz z płytami gipsowo-kartonowymi
-posadzka - ocieplona styropian
-docieplony sufit 35 cm celuloza
-wentylacja
-elewacja 20 cm styropian
-okna z dwoma komorami ciepła, 3 szybowe, plus ciepła ramka
WIECEJ INFORMACJI
TEL 50*******38
DOMY GORZÓW DANIEL ŚWIĄTKOWSKI
Dom w cenie mieszkania
FIRMA OFERUJĘ 2 WARIANTY:
Stan surowy zamknięty z działką 480 000zł BRUTTO
Stan deweloperski z działką 689 900 zl BRUTTO
PREZENTOWANE DOMY SĄ OFERTAMI AKTUALNYMI
GŁÓWNYM WYKONAWCĄ JEST FIRMA DOMY GORZÓW DANIEL ŚWIĄTKOWSKI
-KUPUJĄC U NAS DOM KUPUJĄCY ZWOLNIONY JEST Z PODATKU PCC 2 %
-WYSTAWIAMY FAKTURĘ VAT
-ZAPEWNIAMY 2 LETNIĄ GWARANCJĘ I SŁUŻYMY DOBRĄ RADĄ
- DOM ENERGOOSZCZĘDNY
- DUŻE DZIAŁKI
- GWARANCJA DOMU
-JAKOŚĆ WYKONANIA
-ZADOWOLONY KLIENT
-DUŻE DZIAŁKI
TO GŁÓWNE ATUTY NASZEJ FIRMY ZAUFAJ SPECJALISTĄ
DOMY W ZABUDOWIE WOLNOSTOJĄCEJ w m. Gorzów Wielkopolski /BACZYNA-RACŁAW
Opis:
STAN DEWELOPERSKI :
-OGRZEWANIE PODŁOGOWE WYLEWKA JASTRYCH
-TYNKI MASZYNOWE
-PODWIESZANE SUFITY WRAZ Z ŁĄCZENIAMI I SZPACHLEM
-ELEWACJA PLUS STRUKTURA NATRYSKOWA
-PODBITKA
-OKNA 3 SZYBOWE Z CIEPŁĄ RAMKĄ
-DRZWI WEJŚCIOWE
-NADMUCHANA CELULOZA NA STROPIE
-BIAŁY MONTAŻ (KONTAKTY PLUS WŁĄCZNIKI)
-SZAMBO
- DRABINKA Z WŁAZEM NA STRYCH
- INSTSLACJA SANITARNA
- INSTALACJA ELEKTRYCZNA
USŁUGI DODOATKOWE :
- NA ŻYCZENIE KLIENTA, MOŻLIWOŚĆ POSZPACHLOWANIA I POMALOWANIA ŚCIANY NATRYSKOWO W KOLORZE BIAŁYM . CENA DO UZGODNIENIA
OPIS DOMU :
Do dyspozycji mieszkańców jest duży salon połączony z otwartą kuchnią, w sąsiedztwie której znalazła się praktyczna spiżarnia. Znajdują się tu ponadto 3 ustawne pokoje, łazienka, wc oraz kotłownia
01.Wiatrołap
02.Łazienka + wc
03.Wc
04.Spiżarnia
05.Kuchnia
06.Salon + jadalnia
07.Pokój
08.Pokój
09.Komunikacja
10.Pokój
11.Kotłownia lub suszarnia w zależności od rodzaju ogrzewania domu
SUMA POWIERZCHNI UŻYTKOWYCH: 106,06m²
Dodatkowo strych ok 20m2
SPECYFIKACJA
Dom energooszczędny:
-fundament tradycyjny wybudowany z bloczków betonowych
(odizolowany papą, zabezpieczony dysperbitem i docieplony styropianem XPS )
-ściany nośne i wewnętrzne wybudowane z solbetu
(zewnętrzne 24 cm wewnętrzne 12 cm)
-wiązary prefabrykowane
-dachówka benders
-podwieszony sufit na profilach cd wraz z płytami gipsowo-kartonowymi
-posadzka - ocieplona styropian
-docieplony sufit 35 cm celuloza
-wentylacja
-elewacja 20 cm styropian
-okna z dwoma komorami ciepła, 3 szybowe, plus ciepła ramka
WIECEJ INFORMACJI
TEL 50*******38
DOMY GORZÓW DANIEL ŚWIĄTKOWSKI
ID: 784074615
xxx xxx xxx
Odświeżono dnia 25 lutego 2026
Dom jednorodzinny dom w cenie mieszkania Baczyna/Racław
689 900 zł
Lokalizacja
Gorzów Wielkopolski
Lubuskie